
Architektka Markéta Bromová vdechla apartmánu atmosféru horské chalupy
Na první pohled může interiér působit jako citlivě provedená rekonstrukce venkovského stavení, nenechte se však zmást – jedná se o apartmán v novostavbě, u kterého architekta Markéta Bromová vsadila na celkovou střídmost a kvalitní materiály.
EARCH.CZ , 28. 2. 2023
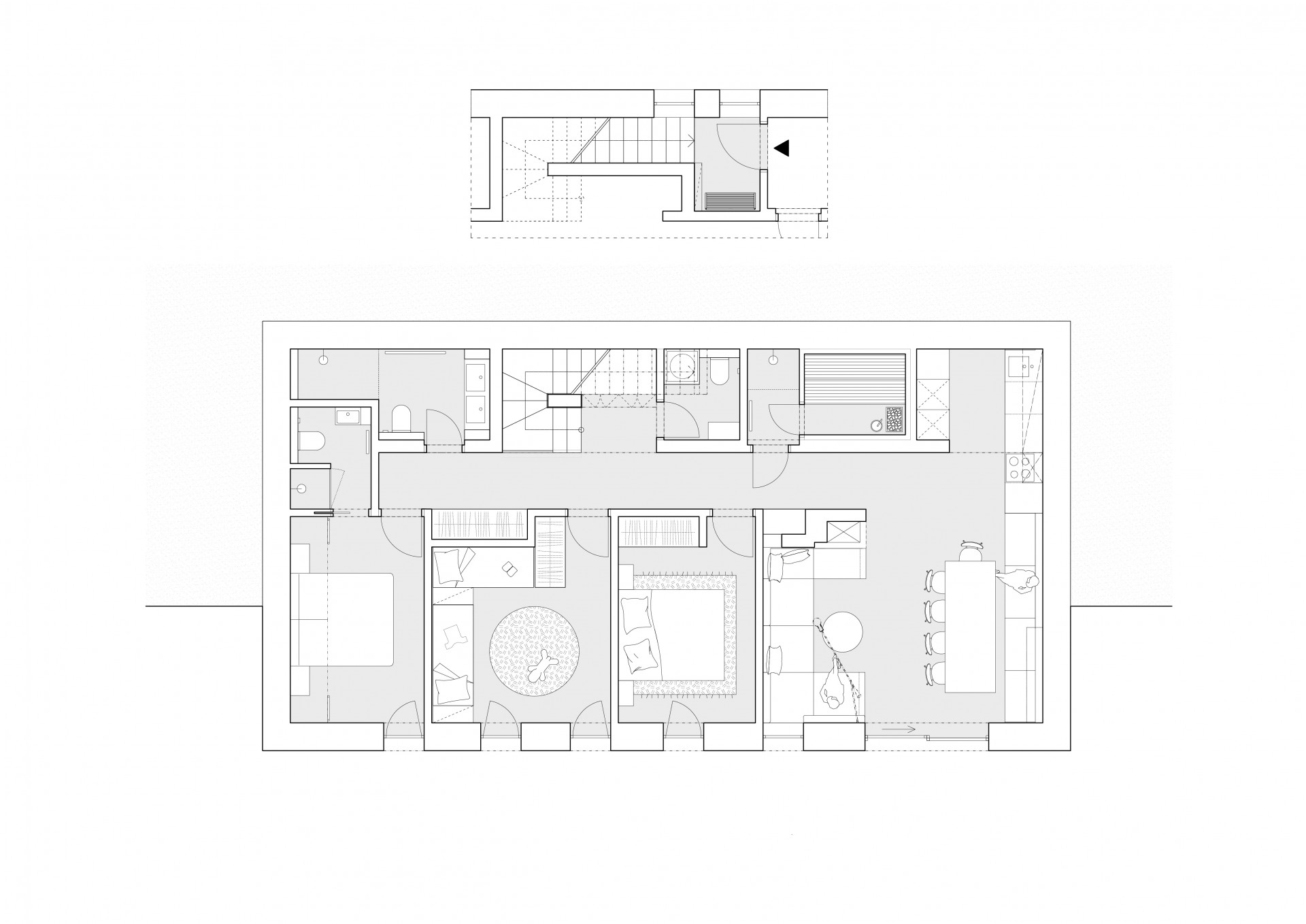
Byt se nachází v přízemí nového apartmánového domu v Jizerských horách, díky čemuž mají majitelé přímé propojení interiéru s okolní horskou krajinou. „Do apartmánu se vstupuje z druhého patra malou předsíní, která navazuje na dvouramenné schodiště. Tuto cestu přes předsíň a sestoupení po schodech do nižšího patra přímo do nitra bytu lze chápat jako jakýsi filtr,“ popisuje architektka Markéta Bromová.
Více k tématu
Po sestoupání po schodech se dostáváme do dlouhé chodby, ze které jsou přístupné všechny místnosti. Dispozice je navržena tak, aby byly odděleny dvě funkční části – technické zázemí (koupelny, toalety, sauna a kuchyně) a obytné prostory (ložnice, obývací prostor a jídelna), čemuž opět napomáhá tato chodba.
Jasnou dominantou hlavního obytného prostoru je krásné krbové těleso. Mezi krb a stěnu navrhla architektka sezení do tvaru písmene U, které působí velmi útulně. Naproti němu se nachází jídelní stůl s lavicí, která navazuje na kuchyňskou linku.

Při návrhu byly použity dva hlavní principy. První princip sleduje interiéry chalup a venkovských domů. Materiálové řešení, kuchyně, vestavné skříně i krbové těleso odkazují na tradiční české řemeslo, které je ovšem provedeno moderně. Tyto prvky bytu si tak zachovávají svou estetiku a snadno se udržují. Druhým principem je aplikování nadčasové a odolné betonové stěrky na podlahy. Výběr tohoto materiálu byl vzhledem k uvažované vytíženosti objektu nutností.

Práce s přírodními materiály a jemnými barvami je pro architektky ze studia Markéty Bromové typická. Jejich interiéry se vyznačují vzdušností, pracují s průhledy a nebojí se atypických řešení. Příkladem může být nízkonákladová dřevěná chata na Šumavě.
- Autoři: Markéta Bromová
- Ateliér: Markéta Bromová architekti
- Země: Česká republika
- Realizace: 2021
- Užitná plocha: 83 m²