Útulný montovaný domek poskytuje majitelům útočistě ve vysokohorské krajině
Černý montovaný dvojdům s tmavou plechovou fasádou poskytuje útočiště před shonem města v dramatické krajině kolumbijského národního parku. Díky modulární konstrukci mohla výstavba proběhnout hladce i v nepříznivých horských podmínkách.
Kristýna Korčáková , 18. 8. 2022
Na kopci nad vesnicí La Calera ve středu Kolumbie nedaleko města Bogotá stojí dvojdům od místního architekta jménem Rubén Gómez Gañán. Slovo ,,calera“ je lehce transformované označení vápence, který je charakteristickou horninou pro tento kraj. Místo se nachází zhruba 3000 metrů nad mořem v národním parku Chingaza, díky čemuž nabízí mimořádné výhledy na okolní krajinu s vodní nádrží San Rafael.
Snadno smontovatelná konstrukce rekreačního objektu je kryta fasádou z černého plechového opláštění, takže dům splývá s tmavým pozadím vřesovišť a lesů. V noci pak září do okolí podobně jako světlo majáku, což jen zdůrazňuje odlehlost lokality.
Více k tématu
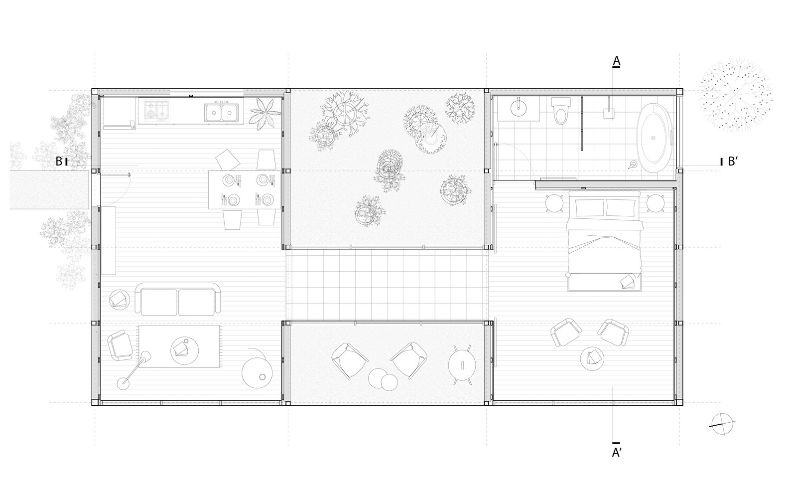
Dům tvoří dvě symetrické části, které jsou propojené proskleným krčkem akumulujícím teplo. Rozměrné prosklené plochy najdeme také v průčelích obou obytných hmot, tak aby hosté neztráceli kontakt s přírodním okolím.
Výhodou jednoduché modulární konstrukce je uživatelsky snadno přizpůsobitelný interiér. Dispoziční dělení na poloviny se projevuje i ve využití jednotlivých prostorů. Jeden zahrnuje kuchyni s jídelním koutem volně přecházející v obývací pokoj, druhá část objektu slouží jako prostorná ložnice propojená s koupelnou.

Modulární charakter objektu zároveň umožňuje dispozice relativně snadno upravit. Plocha celého objektu čítá 80 metrů čtverečních. Jedním z architektonických záměrů byla provázanost interiéru s exteriérem tak, aby člověk trávil podstatnou část času venku. Montovaná prefabrikovaná konstrukce zároveň zajistila snadnou výstavbu domu i v takto složitých horských podmínkách.
V interiéru našlo své uplatnění především piniové dřevo, které propojuje podlahy, stěny a dokonce i strop v jeden plynulý celek, což jen podporuje pocit bezpečí v případě nepříznivého počasí. Textura dřeva je sama o sobě výrazná a poutavá, a proto je zbývající vybavení vizuálně potlačeno. Útulnou atmosféru dotváří černá plechová kamna.
- Autoři: Rubén Gómez Gañán
- Země: Kolumbie
- Město: La Calera
- Realizace: 2020
- Zastavěná plocha: 80 m²