
Bydlení na světlem zalitých 35 metrech čtverečních – a na dobré adrese
Skromná plocha, radikální přístup. Ateliér Plus One Architects proměnil malý byt v pražských Holešovicích v kompaktní domov pro malířku. Vybouraly se všechny příčky a dovnitř vpustilo světlo.
Adéla Vaculíková , 15. 5. 2025
Byt v domě z konce dvacátých let a nefunkční dispozice s tmavými zákoutími. Takový byl výchozí stav třicet pět metrů čtverečních velkého bytu v pražských Holešovicích. Architektky Petra Ciencialová a Kateřina Průchová z Plus One Architects navrhly překážky v podobě příček vybourat a dostaly tak volný prostor a více možností. „Klientka byla otevřená nekonvenčnímu řešení, díky čemuž bylo možné pracovat se zcela novým rozložením místností,“ shrnují situaci architektky.

Z původního 1+1 se tak stala de facto garsonka, ovšem zalitá světlem „do každého koutu“ – jak to popisují architektky. Vznikl tím příjemnější a také kvalitnější prostor pro bydlení v oblíbené pražské čtvrti.
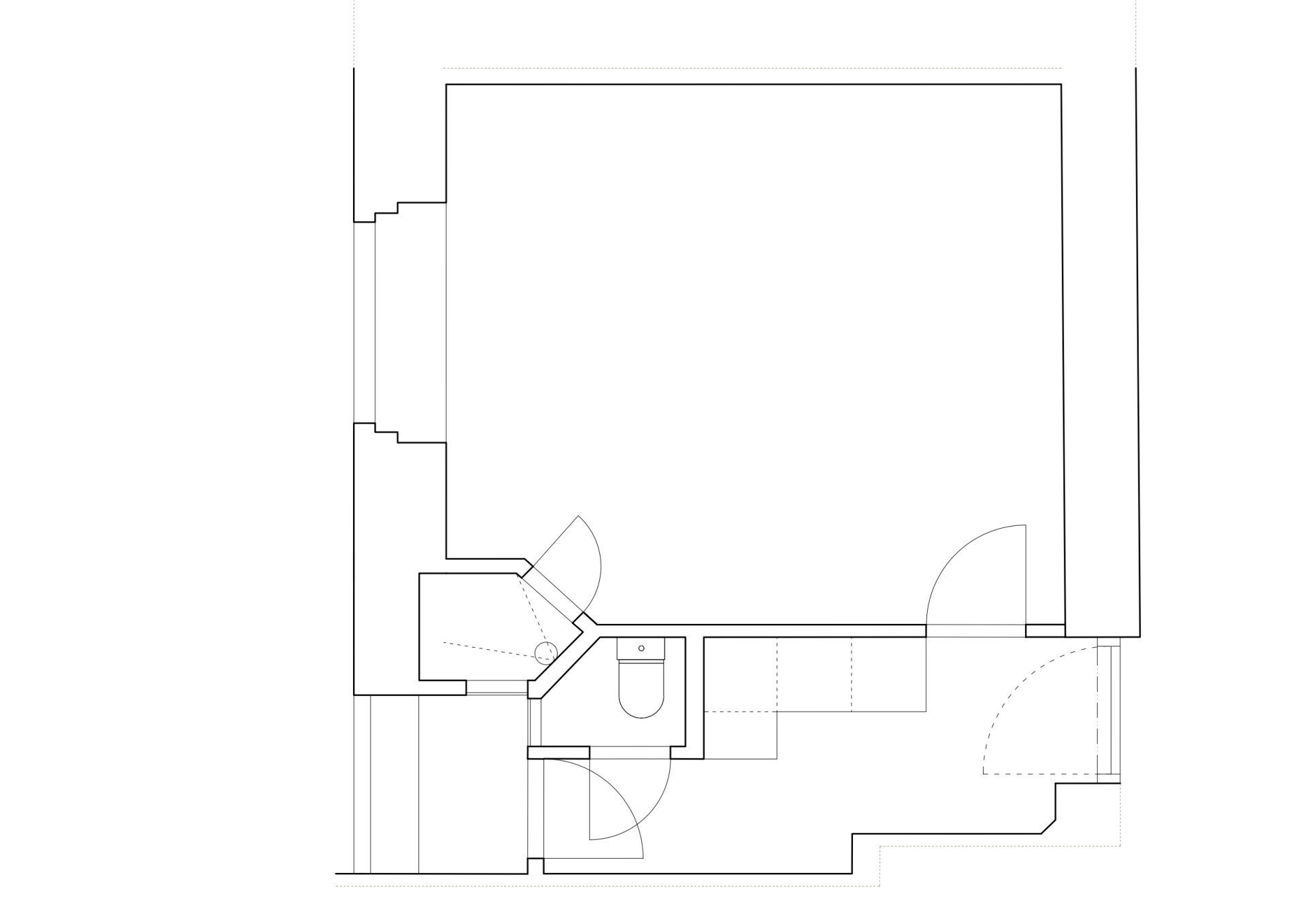
Nová dispozice klade důraz na prostupnost a funkční členění. Vstupuje se do chodby s prostornými skříněmi a botníkem potaženým zrcadlovou fólií, která malý prostor opticky zvětšuje a násobí jižní světlo, které do bytu proudí okny z ulice.
Na originálně zpracovaný botník plynule navazuje barový stůl, který šikovně sousedí s drobnou kuchyňskou linkou. Z barových stoliček se současně otevírá pohled ven vysokými balkonovými dveřmi.

V největším prostoru bytu je postel, nejvíce pozornosti ovšem upoutává obraz – dílo majitelky bytu a malířky Lucie Michnové. Další vybavení si do bytu už donese jeho obyvatel či obyvatelka, bude se totiž pronajímat. „Kompletní proměna měla za cíl vytvořit s omezeným rozpočtem plně funkční a vizuálně atraktivní městské bydlení. Důraz byl proto kladen na trvanlivost a dostupnost materiálů splňující estetickou i uživatelskou hodnotu,“ komentují realizaci architektky.

Aspekt trvanlivosti splňuje také koupelna, jako jediný prostor v bytě totiž byla nově vyzděná. Nachází se za kuchyňskou linkou a oproti zbytku prostoru bytu je vyvýšená na soklu. Při vstupu je tak potřeba zdolat schůdek. Architektky takové řešení zvolily, aby koupelnu oddělily ale nemusely ji uzavírat interiérovými dveřmi. Ty jsou v bytě pouze u WC.
Více k tématu
Přirozené světlo do koupelny propouští dva světlíky – jeden přímo tvoří čelní stěnu sprchy. Jedná se o další praktické a současně estetické řešení. Na první pohled jednoduchý světlý byt ozvláštňují právě neotřelé detaily. Včetně žlutých obkladů v koupelně a kuchyni, které schválně nedochází až do rohů a tvoří tak hravou mozaiku. Dále to jsou reliéfně pojaté stěny nad linkou a barem, které celku dodávají aspekt hrubosti. Jde o subtilní gesto, které interiér rytmizuje, uvolňuje a přitom si v malém prostoru nebere příliš pozornosti. Výsledek působí jako světlé, vzdušně a pohodlné městské bydlení.
- Autoři: Petra Ciencialová, Kateřina Průchová
- Ateliér: Plus One Architects
- Spolupráce: Kristýna Sedláková
- Země: Česká republika
- Projekt: 2024
- Realizace: 2025
- Užitná plocha: 35 m2
- Adresa:: Tusarova, Praha 7 – Holešovice, 170 00
- Fotograf: Radek Úlehla