Byt s rodinným dědictvím ve vile na kopci
Na Malvazinkách se mezi válkami stavěly honosné vily. V jedné z nich se nachází také tento byt – prošel kompletní rekonstrukcí, která zanechala stopy rodinné historie.
Adéla Vaculíková , 2. 4. 2025
Byt ve vile na Malvazinkách byl rodinným dědictvím včetně jeho obsahu. Prateta současných obyvatel měla ráda krásné věci, a tak nashromáždila řadu sběratelských kousků – stolky, křesla, svítidla, koberce, dekorace… Spoustu z toho si navíc přivezla z cest.
Když teď interiér prošel kompletní rekonstrukcí, na kousky se nezanevřelo. Právě naopak, pracovat s nimi si přáli sami klienti a s architektkou Kateřinou Hroudovou proto probírali, jaké konkrétní se do nového interiéru budou hodit. Vybavení od pratety tak v začátku poskytlo příjemné omezení, které se navíc hodí k charakteru domu.

Vila pochází konkrétně ze 40. let 20. století a v bytě dodnes zůstaly některé prvky z této doby. „Zachovala se původní špaletová okna, dveře s originálním kováním i portál s prosklenými posuvnými dveřmi,“ vyjmenovává Kateřina Hroudová. Navázat na staré vrstvy bylo tedy něco jako povinnost.
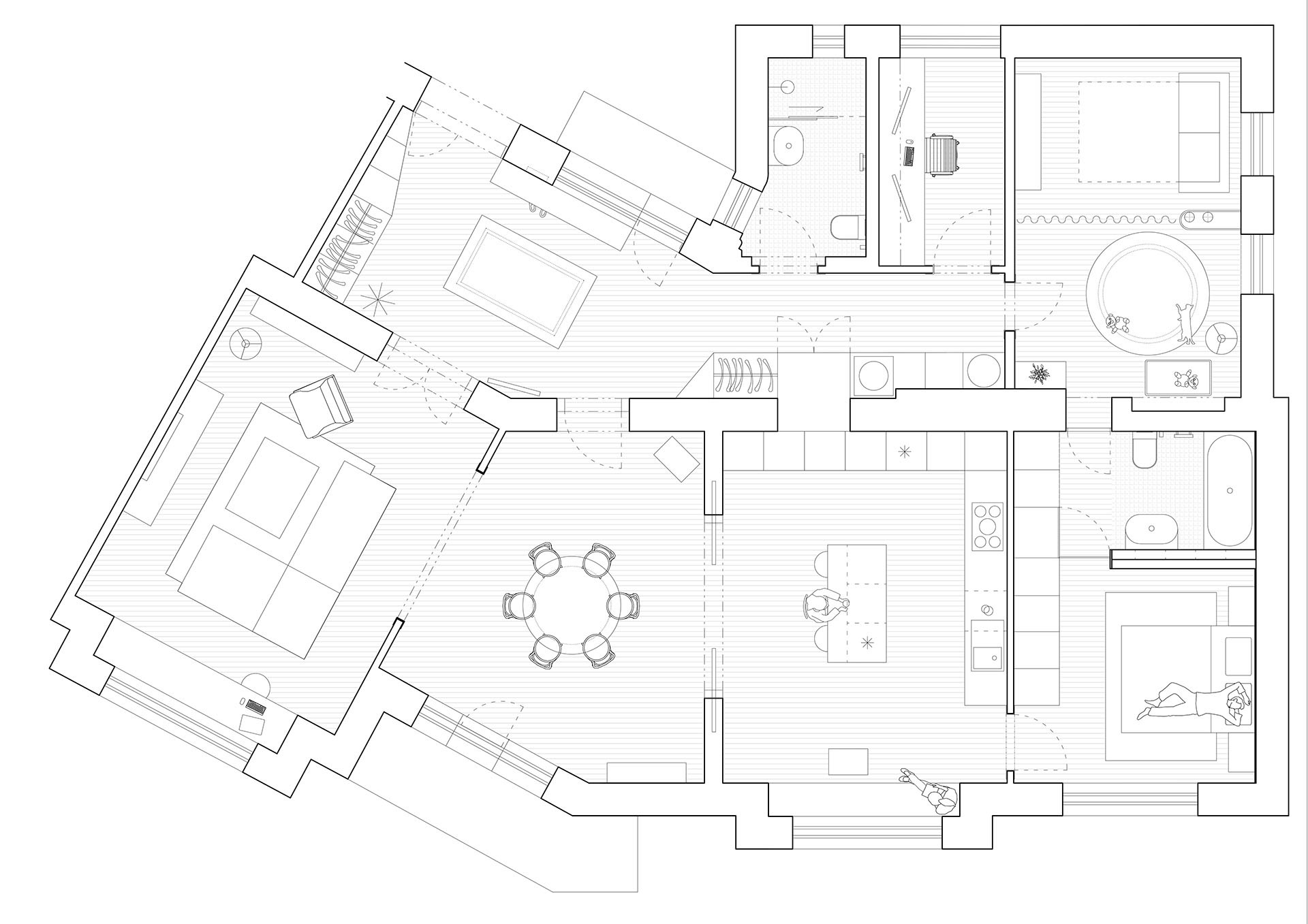
I tak byt prošel rozsáhlými stavebními úpravami, měnila se dispozice, aby prostor lépe vyhovoval současným nárokům na bydlení. Původně z hlavního obytného prostoru úplně vyčleněná kuchyně je nyní jeho součástí. A rodina tedy může trávit čas společně, i když zrovna někdo vaří.
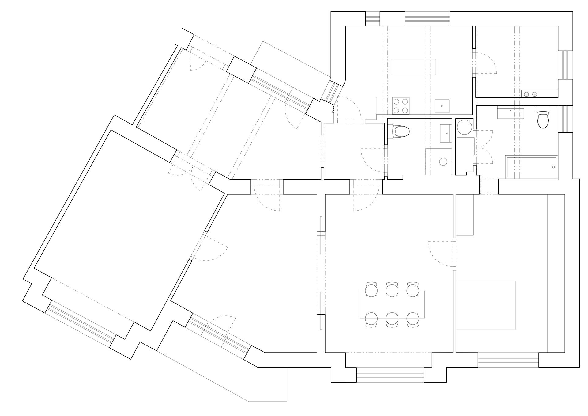
„Hlavní předností bytu jsou čtyři na sebe navazující místnosti, které ze smíchovského svahu vyhlíží až na Národní divadlo,“ popisuje dispozici bytu po rekonstrukci architektka. Jedná se konkrétně o obývací pokoj, jídelnu, kuchyni a nakonec ložnici. Všechny tyto místnosti mohou být propojené, ale také se od sebe izolovat. Mezi kuchyní a jídelnou jsou zmiňované původní posuvné dveře. A ložnice se dá zavřít samozřejmě také.
Původní dispozice byla také průchozí, ovšem poněkud neprakticky. Do jednotlivých pokojů se vcházelo dveřmi umístěnými doprostřed příček, což třeba konkrétně pro ložnici znamenalo, že se do ní vstupovalo středem jídelny. Nyní jsou dveře šikovně odsunuté na stranu vedle zeleno-modré kuchyňské linky, nad kterou je pověšené jedno ze zděděných svítidel.

Stejné se dostalo ještě do vstupní haly nebo do koupelny. Společně s dalšími solitérními kusy nábytku (novými i starými) do jinak světle laděného bytu přinášejí barvy. V nenápadné bílé se řešily také hlavní úložné prostory. Ve vstupní hale architektka navrhla velkou skříň, která se do půlky zalamuje, aby se daly pohodlně otevřít vstupní dveře. Druhá podobná stojí dál v chodbě, a kromě úložných prostor v sobě schovává také pračku, sušičku a komoru, která šikovně využívá hloubku při rekonstrukci zrušených dveří.
Více k tématu
A originálně se pracovalo také s hlubokými nikami okolo oken. Do té v obývacím pokoji je zapasovaný pracovní stůl, z něhož je okouzlující výhled na Prahu. Do více jak stometrového bytu se kromě dvou koupelen vešla ještě jedna menší pracovna a pokoj pro malé děti – teď prakticky přístupný z ložnice jedněmi z původních dveří. Až odrostou, dá se do něj chodit také z chodby.
„Byt se dá oběhnout kolem dokola, všichni jsou tak ještě více pospolu,“ shrnuje popis dispozice Kateřina Hroudová. Výsledkem rekonstrukce se stal příjemně světlý a prostupný byt, který pamatuje na historii svého domu a rodiny, ovšem nenásilně a současně. Je to přátelská kombinace.
- Ateliér: Kateřina Hroudová architektka
- Autoři: Kateřina Hroudová
- Země: Česká republika
- Město: Praha - Malvazinky
- Projekt: 2022
- Realizace: 2023
- Užitná plocha: 110 m²
- Fotograf: Radek Úlehla