Rodinný projekt na Vysočině. V domě na náměstí se cvičí jóga, pije káva i bydlí
V centru Kamenice nad Lipou stojí klasický řadový dům, ke kterému kdysi patřil ještě hospodářský dvůr ve dvoře. Tam je dnes místo stájí dům jógy a bydlení.
Adéla Vaculíková , 6. 11. 2025
Na Husově náměstí v Kamenici nad Lipou stojí řadový dům s průjezdem do dvora, který prošel kompletní rekonstrukcí podle návrhu ateliéru matěj šebek architekti. Projekt stojí na úzké spolupráci majitelů, celé rodiny Zahradníkových. „Mužská část organizuje realizaci v rámci vlastní stavební firmy, zatímco dámy jsou duší provozu – kavárny a jógového studia,“ popisuje to architekt Matěj Šebek.
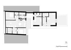
Stavba se skládá ze dvou propojených částí – rekonstruovaného historického domu směrem do náměstí a nové přístavby ve dvoře.

V přízemí původního domu se nachází kavárna, orientovaná do náměstí, takže se přirozeně vztahuje k centru města. Uvnitř se zase projevuje historie domu, prostor definuje obnažené zdivo a povalový strop. Nové vstupy architektury jsou kontrastní, provedené z nerezu, ze kterého je třeba kavárenský pult, technické zázemí a WC.
Atmosféru útulné kavárny podtrhuje ještě posezení: dlouhá jasanová lavice doplněná modrými židlemi. „Vzniká tak pestrá povrchová koláž složená z autentických a přirozených materiálů – ať už původních nebo zcela nových,“ říká k interiéru Matěj Šebek.
Kavárna zasahuje i do dvora, kde návštěvníci mohou posedět na betonové lavici. Výhled přitom mají na novu přístavbu, která vyrostla na stopě původních stájí. „Její architektura nezastírá soudobost, ale reaguje na principy původních domů,“ komentuje to autor projektu. Parter nové části je vyzděn ze starých cihel „z bouračky“, patro dostalo obklad ze dřeva, který materiálově navazuje na pavlač propojující původní dům s novým.

V přízemí přístavby se nachází jógové studio s velkou prosklenou stěnou, která ho otevírá do dvora. V patře jsou pak dvě nájemní jednotky – jedna tzv. „terapeutovna“, druhá klasický byt.
Další byt se nachází v podkroví původního domu. Říká se mu „byt nad kavárnou“ a je určený pro jednoho ze synů manželů Zahradníkových. Bydlení se tady otevírá do nového krovu, který zachovává původní tvar střechy, a tak se vzhled domu na náměstí nezměnil. Novým prvkem je pouze velký vikýř obrácený do dvora, který do interiéru přivádí více denního světla, ale z centra města vidět není.
Dům na Husově náměstí je po rekonstrukci stavbou mnoha funkcí – a to jak veřejných, tak soukromých. Rekonstrukce byla složitá, ale výsledek je užitečný na mnoho způsobů. „Rodinné úsilí dalo vzniknout živému městskému domu, který pomáhá oživit malé městečko na Vysočině,“ shrnuje Matěj Šebek.
- Ateliér: matěj šebek architekti
- Autoři: Matěj Šebek
- Spolupráce: Matěj Bělohlávek
- Země: Česká republika
- Adresa: Husovo namesti 66, Kamenice nad Lipou
- Projekt: 2021
- Realizace: 2025
- Zastavěná plocha: 200 m²
- Užitná plocha: 262 m²
- Náklady: 8 mil. Kč
- Fotograf: Radek Úlehla, Vladimír Běhoun
- Grafické řešení kavárny: Hana Houšková, Vladimír Běhoun
- Hlavní dodavatel: I. Kamenická stavební
- Nábytek na míru: Panab
- Truhlářská okna a dveře: HP27
- Zámečnické konstrukce: Radek Liška
- Nerezové prvky: Neza
- Židle: La Zitta — TON
- Světla: Shadows — Brokis
- Pouzdrové bezobložkové dveře: JAP
- Omítka a patinovaný nátěr: KEIM