
Architektura
/
interiér
Byt s barevnými akcenty
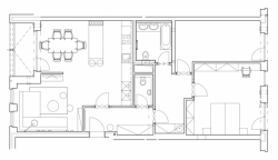
Nevyhovující dispozice může být dobrým důvodem pro radikální změnu, i když jde o novostavbu. Dobře to ukazuje tento žižkovský byt – sice odsud „zmizel“ jeden pokoj, co se označení týče, jenže jako celek získal novou, svěží podobu. V interiéru teď hrají prim klidné barvy, mezi nimiž vyniká jemný odstín modré.
DESIGNIST , 26. 7. 2016
Více k tématu
- Autoři: Ivana Šustrová
- Ateliér: DESIGNIST, Hezkey s. r. o.
- Země: Česká republika
- Subdodavatel: DEVOTO
- Město: Praha 3 - Žižkov
- Datum projektu: 2015
- Realizace: 2015
- Užitná plocha: 83.00m2
- Poznámka: Foto © Tomáš Dittrich