Chátrající dům z 20. let doplnila po rekonstrukci betonová přístavba
Bulharské studio I/O architects zrekonstruovalo skomírající ruinu ve starověkém městě Stara Zagora a navrátilo tak stavbě její původní eleganci. Původní hmotu doplnili architekti o jednoduchou přístavbu z bílého betonu, která doplňuje původní vzhled domu. V interiéru architekti uplatnili hru několika výrazných materiálů, jako jsou beton, původní režné zdivo nebo například černý kov.
EARCH.CZ , 12. 7. 2018
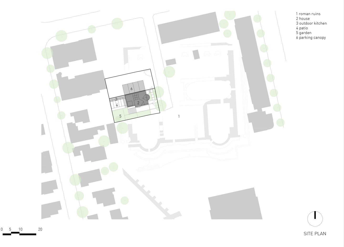
Dům ze 20. let minulého století působil před rekonstrukcí jako romantická ruina, kterou obklopuje nová zástavba i původní prvky starověkého města Stara Zagora v Bulharsku. Navzdory své poloze v centru města byla budova od svého okolí poměrně izolována. Nová přístavba, která dům při celkové rekonstrukci doplnila, odkazuje k době vzniku stavby a nese v sobě interpretaci tehdejší modernistické avantgardy.
Více k tématu
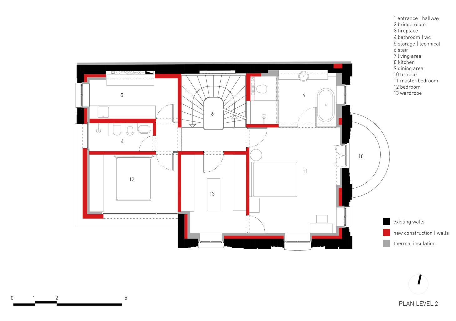
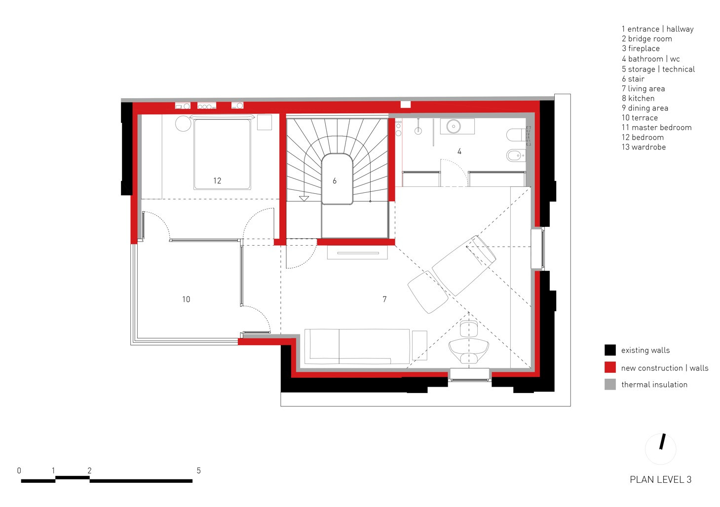
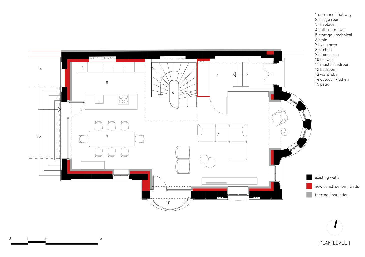
Použitý bílý beton jemně doplňuje strukturu i původní dispozici stavby. Pod deskami z bílého lesklého betonu se ukrývá také současná technologie domu. Díky materiálům, kompozici otvorů i přidání na první pohled protichůdných prvků spolu obě charakteristické části domu (původní a přístavba) komunikují a vzájemně se doplňují. V interiéru domu se nachází nové schodiště, které svým velkorysým zpracováním umožňuje přístup dostatku slunečního světla do centrální části celého domu.
Tento článek vznikl za podpory společnosti Českomoravský beton v rámci popularizace tématu "Beton v architektuře".
Českomoravský beton, a. s., je holdingovou společností, která prostřednictvím vlastních betonáren a dceřiných společností dodává transportbeton v široké škále pevnostních tříd a druhů na území České republiky a Slovenska. Skupina, jejíž vznik spadá do počátku 90. let minulého století, v současné době provozuje 85 nově postavených nebo zrekonstruovaných betonáren, které mají zavedený systém managementu kvality, systém managementu hospodaření s energií a splňují nejpřísnější ekologická kritéria. Celá skupina – holdingová společnost a její dceřiné společnosti, historicky označované ve svém názvu TBG – vystupuje na trhu ČR pod jednou společnou obchodní značkou Českomoravský beton.
- Spolupráce: NeoDesk, Petar Chernev, Georgi Katov, Viara Jeliazkova, Rositsa Hristova
- Země: Bulharsko
- Město: Stara Zagora
- Datum projektu: 2013
- Realizace: 2017
- Užitná plocha: 425.00m2



