Domov architekta a umělkyně, kde mají nedokonalosti své místo
Přiznané vodovodní potrubí, skříň z galvanicky pozinkovaného plechu nebo celá příčka z luxfer – pražský byt architekta a umělkyně je plný překvapení, která se v bytech často nevidí. Studio Collarch proto o své realizaci mluví jako o experimentu, který přinesl zábavný, ale i praktický výsledek.
Adéla Vaculíková , 19. 4. 2023
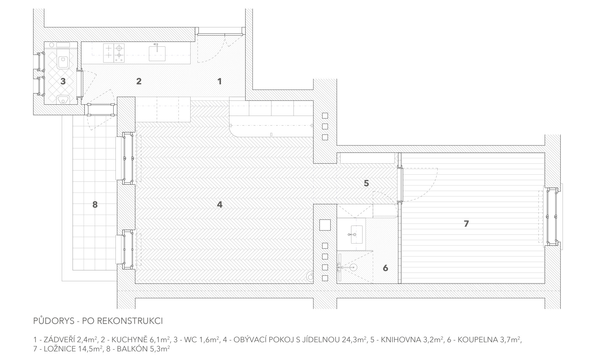
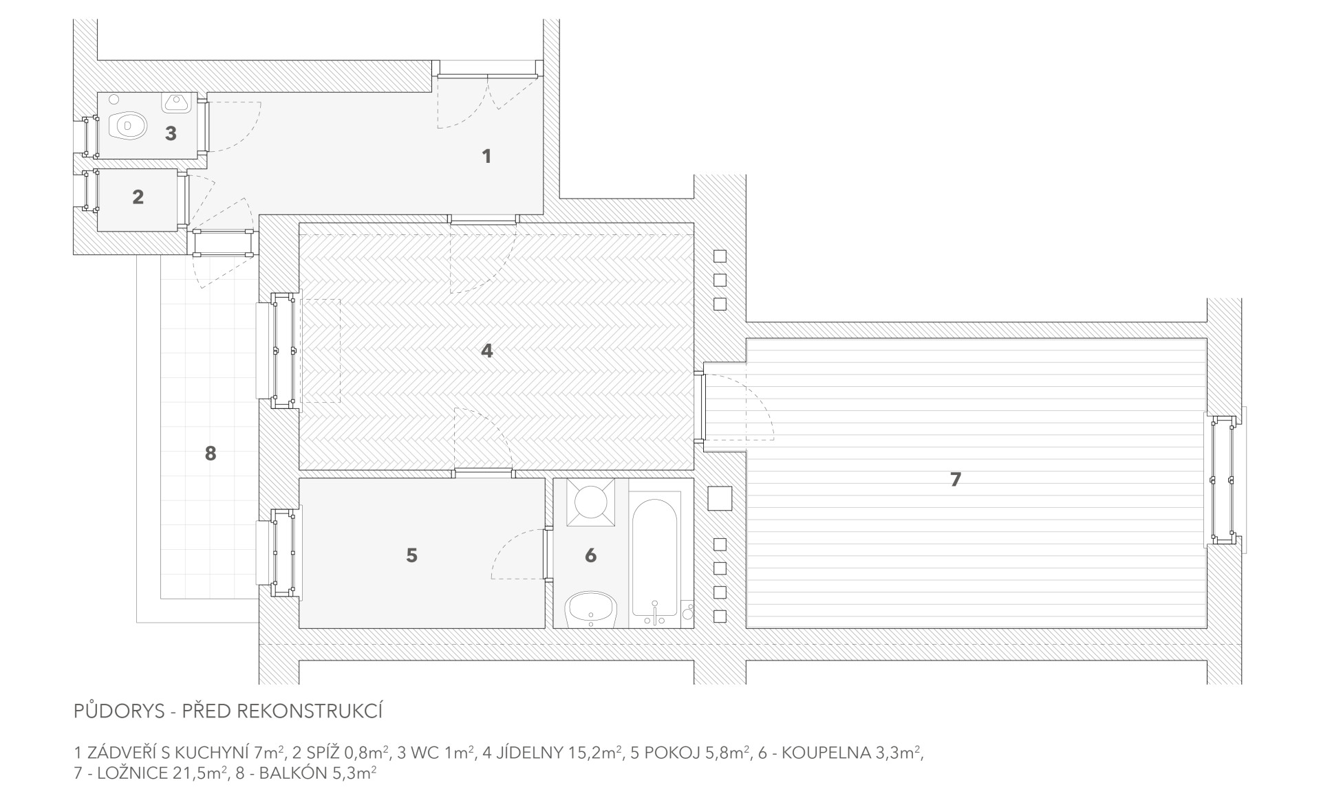
Ve zrekonstruovaném bytě v Nuslích se přirozené světlo dostane úplně všude. Dřívější dispoziční řešení, které to neumožňovalo, bylo zásadně změněno. Původně několik menších pokojů se proměnilo v jeden velký, který obsahuje obývací pokoj, kuchyň, jídelnu ale třeba i prostornou šatní skříň. Další místnosti jsou pak odděleny tak, aby do nich paprsky proniky třeba přes stěnu ze skleněných tvárnic.
Za současným vzhledem bytu stojí architekti a architekty ze studia Collarch, podle jejichž návrhu vyrostla třeba už kavárna z lodních kontejnerů v Holešovicích nebo vznikl interiér vinárny, který do sebe nechává propsat historické vrstvy domu. Nuselský byt v sobě kombinuje něco z přístupů k oběma těmto realizacím – opět se v něm pracovalo s tím, co už na místě bylo a zároveň v něm našly prostor recyklované prvky.
Více k tématu
„Originální kazetové dřevěné dveře se v bytě bohužel nedochovaly. Získali jsme ale obdobné staré dveře i s obložkami z jedné demolice v Brně a osadili je přímo do skleněné příčky mezi knihovnou a ložnicí a dále i na WC,“ říkají autoři. Původní je pak třeba prkenná podlaha v ložnici nebo dlažba na WC, která je seskládaná z fragmentů dlaždic, která v bytě už také byly.

„V celku se tak byt jeví jako citlivá kombinace původního historického interiéru se současným a lehce experimentálním charakterem nově vložených prvků,“ pokračují architekti a architektky. Vedle klasických nových příček do bytu umístili jednu z luxfer, která odděluje ložnici od koupelny, do té se tak i přesto, že je ve středu dispozice, dostává denní světlo.
Výtvarným experimentem je řešení dvířek šatní skříně v obývacím pokoji, která jsou z galvanicky pozinkovaného plechu. „Zdálo by se, že po čase tato paráda omrzí a bude působit spíše rušivým dojmem. Opak je ale pravdou. Pohled na plechovou stěnu je velmi uklidňující. Barevně ladí s dřevěnou podlahou a odrazivost plechů prosvětluje jinak tmavý roh bytu,“ vysvětlují svou volbu autoři.

Plech šatní skříně na sobě nese viditelné nedokonalosti, práce s nimi se pro rekonstrukci stala také typickou. V rohu obývacího pokoje například zůstalo přiznané potrubí z koupelny. „Rozhodli jsme se jej nezazdít do šachty, ale zakrýt na míru ušitou a umělecky provedenou turnýrou. Nejen že zabírá méně místa v obýváku než klasicky vyzděná nebo sádrokartonová šachta, ale mění jinak rušivý prvek dispozice v originální umělecké dílo,“ dodávají autoři.
Vzdušný byt s řadou experimentálních a netradičních prvků vytvořilo studio Collarch na míru mladému páru architekta a umělkyně. V bytě tak našly místo třeba úchytky, které si vyrobili sami majitelé nebo záclony se „šmírovacím pruhem“ od české značky Lappa.
- Ateliér: Collarch
- Země: Česká republika
- Město: Praha
- Realizace: 2022
- Užitná plocha: 62 m²