
Dostupné a udržitelné bydlení na míru. Výstavbu terasového domu iniciovali sami architekti
V okrajové čtvrti Sydney najdeme jeden pozoruhodný bytový dům, který překvapuje svým vzhledem, provozem i příběhem realizace. Za návrhem i financováním domu, který se inspiruje tradičními terasovými domy, stojí lokální architektonické studio, jehož cílem bylo reagovat na tržní poptávku.
Matěj Beránek , 30. 9. 2022
Austin Maynard Architects je oceňované studio sídlící v australském Sydney, které se zaměřuje primárně na rezidenční projekty. Jak bývá u práce architektů zvykem, projekty zpracovávají pro své klienty, před pár lety se ale rozhodli vyjít jinou cestou a vlastními silami iniciovat výstavbu bytového domu, který přinese alternativu bydlení lidem, kteří by se jinak přestěhovali z města na předměstí.
Více k tématu
„Terasový dům vyplňuje očividnou díru na trhu s bydlením,“ tvrdí studio Austin Maynard Architects, které se projektem zabývá už od roku 2016. Tehdy začali architekti shánět potenciální zájemce o koupi bytu v tomto domě. Na samém začátku zjišťovali, jaké jsou jejich představy o budoucím bydlení, jak má budova vypadat a hlavně co vše nabízet.
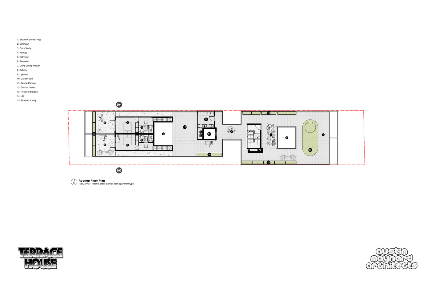
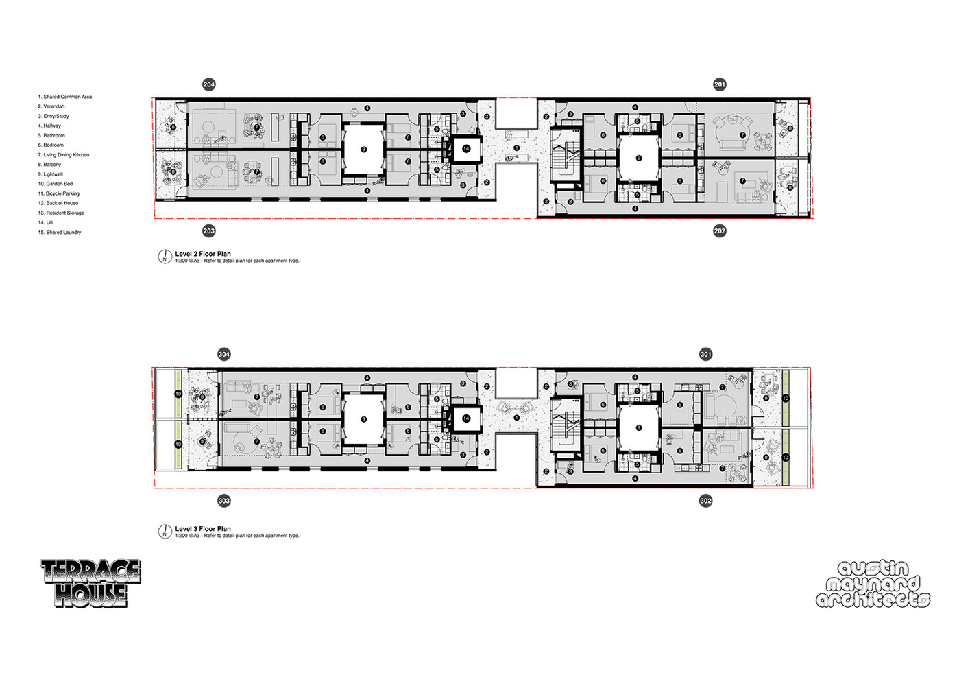
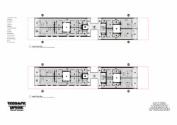
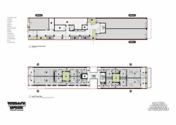
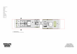
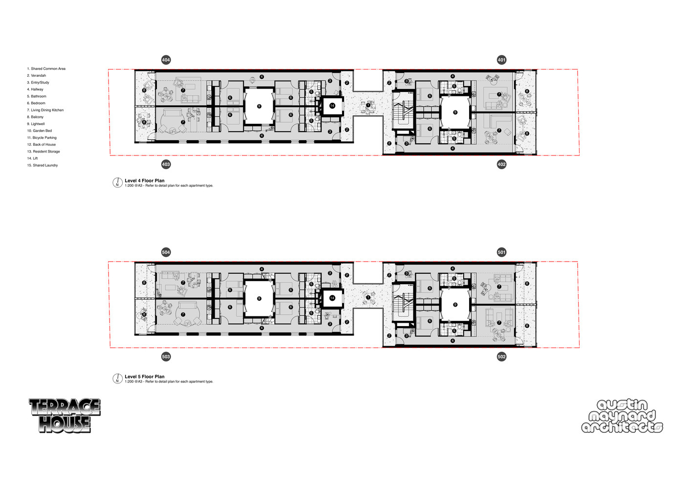
Všechny byty mají vlastní balkon, sdílená střecha slouží k potkávání obyvatel, v domě se našel také prostor pro parkování kol nebo společnou prádelnu. Byty jsou dobře prosvětlené díky velkým oknům a mají také vlastní prostory vhodné pro výkon home-officu.

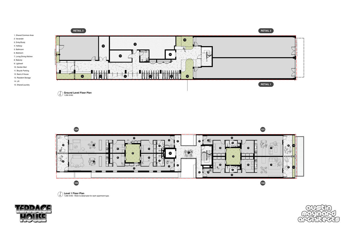
"Budova přináší bydlení, které novým způsobem interpretuje někdejší život na předměstí, kde řady dělnických domků vytvářely a podporovaly úzkou komunitu obyvatel,“ podotýkají architekti. Dům se přitom nachází na komplikované podlouhlé parcele o rozměrech 10 x 57 metrů. Nabízí celkem 20 bytů od jednopokojových po třípokojové s rozlohou až 130 metrů čtverečních. Všechny jednotky jsou v soukromém vlastnictví obyvatel.

Architekti usilovali o to, aby řešení domu pomohlo zajistit nízkou cenu bytů a mohli si je tak dovolit primárně mladé rodiny. Dům má odhalenou železobetonovou konstrukci, která určuje jeho charakter. Zvenku ji rozzařují markýzy v barvách duhy a obloukové kovové prvky, které dodávají budově na hravosti. Uliční průčelí pak získalo obklad z pálených cihel, čímž se dům přibližuje tradiční zástavbě živé čtvrti Brunswick.
„Nikdy bychom si nemohli dovolit bydlet v novostavbě navržené architekty, natož pak v Brunswicku. Terasový dům nás ujistil, že můžeme žít i bez auta ve čtvrti, kde se za 20 minut dostaneme pěšky ke všem službám, které potřebujeme,“ říká jedna z obyvatelek domu Paula.
- Autoři: Andrew Maynard, Mark Austin, Mark Stranan
- Ateliér: Austin Maynard Architects
- Země: Austrálie
- Město: Sydney
- Plocha pozemku: 597 m²
- Investor: Austin Maynard Architects