Architektura / rodinné domy

Dřevostavba od studia MODULORA se přizpůsobuje svažitému pozemku pod hradem Hněvín

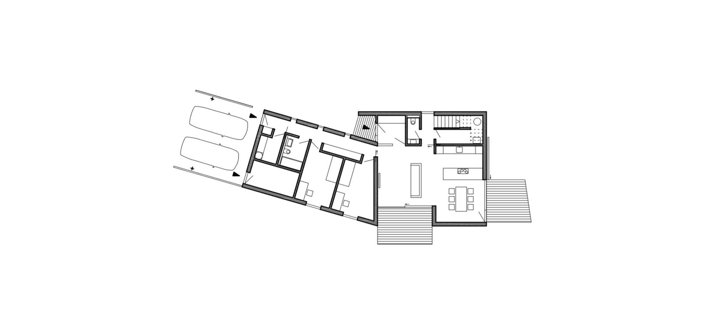
Prudký svah, náročný přístup i nepravidelný tvar pozemku nabízejícího daleké výhledy do krušnohorské krajiny patřily mezi hlavní specifika místa, která ovlivnily koncept rodinného domu v severočeském Mostě. Dům navržený studiem MODULORA se nachází v lokalitě zahrádkářské kolonie přímo pod místní dominantou - hradem Hněvín. Kompaktní dřevostavba hmotově graduje v dvoupodlažní část připomínající věž, velká okna pak rámují panoramatické výhledy na povrchové doly i masiv Krušných hor.

Modulora , 24. 4. 2019

  • Autoři: Jan Alex Řezáč
  • Ateliér: Modulora
  • Země: Česká republika
  • Realizace: 2013
  • Město: Most
  • Datum projektu: 2012
  • Realizace: 2013
  • Zastavěná plocha: 195.00m2
  • Poznámka: 1.cena v soutěži Dřevěná stavba roku 2013, kategorie “moderní dřevostavby”.
  • autor: Modulora *
  • publikováno: * 24. 4. 2019
  • zdroj: * Autorská zpráva

Klíčová slova:

modulora dřevostavby most

Mohlo by vás zajímat

Generální partner
Hlavní partneři