
Druhý dech pro sídelní kaši
V kategorii bytových domů letošním finalistům ceny Miese van der Rohe jednoznačně dominují témata renovace a revitalizace. Zatímco holandský deFlat Kleiburg ukazoval, jak se postavit k dědictví modernismu, londýnský Ely Court odpovídá na odlišnou výzvu: nedobrou kvalitu městského prostoru tzv. sídelních kaší. Ely Court navíc reaguje na další velice aktuální otázku, skloňovanou poslední době hlavně v Brně a v Praze, totiž problém sociálního bydlení. Londýnský obytný soubor ukazuje, že sociální aspekt městského plánování může jít ruku v ruce s prvotřídním architektonickým provedením.
Alison Brooks Architects , 21. 2. 2017
Soubor Ely Court je developmentem o 44 bytových jednotkách, představuje součást obecného plánu na obnovu oblasti South Kilburn Estate a nachází se v londýnském obvodě Brent. Samotný soubor je potom první fází celého regeneračního programu. Skládá se z mixu jedno a dvoupodlažních bytových jednotek, z nichž hned 40% je k dispozici stávajícím nájemníkům sociálních bytů v oblasti South Kilburn Estate.
Architekti z Alyson Brooks Architects obnovují blokový a uliční urbanismus typický pro londýnská předměstí 19. století, než byla během poválečné obnovy přebudována. Nový vnitřní blok přivádí chodce i vozidla do míst, jež předtím sloužila jako sporadicky využívaný trávník mezi monobloky bytových domů, a tvoří páteř mezi novými a staršími stavbami. Záměrem regeneračního programu je znovu zapojit pozemky do širšího sousedství, vytvořit pocit místní identity a vypořádat se s dosavadní špatnou kvalitou veřejných prostorů, danou hlavně monobloky z 60. let. Oblast by nově měla obsahovat smíšenou zástavbu, pyšnit se architektonickými kvalitami a rozmanitostí komunit.
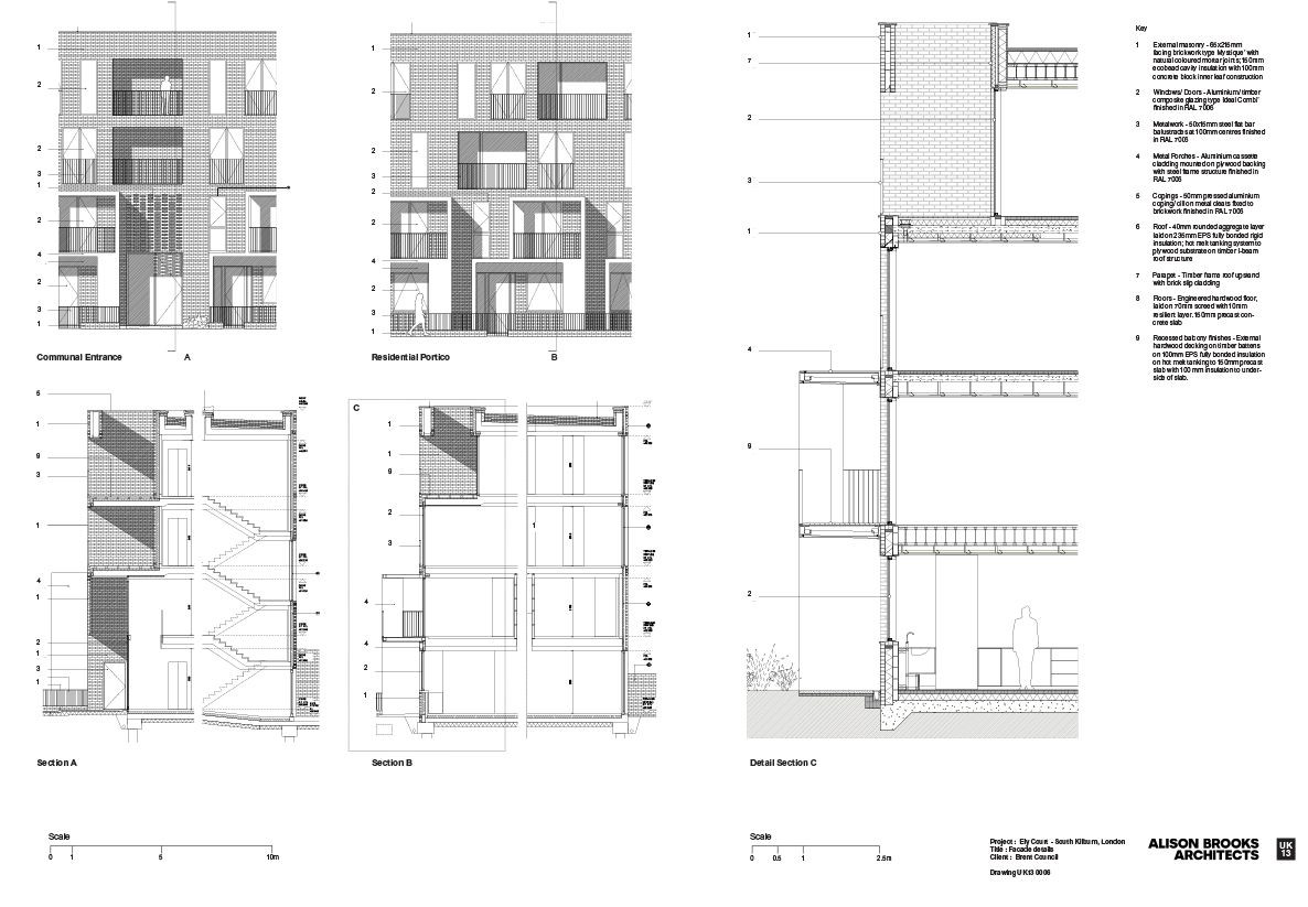
Ely Court se jako takový skládá ze čtyř typů budov, z nichž každá má v závislosti na svém umístění jiné měřítko a vnitřní organizaci. Čtyřpatrové Terrace a Flatiron se svými průčelími směle staví do hlavní ulice a společně s domem Mews rámují novou veřejnou zahradu, ustupující od hlavní ulice směrem ke stávajícím stavbám. Ve všech čtyřech typech domů jsou navrženy světlé a prostorné byty s na Londýn nadstandardní výměrou: mají výšku 2,6 m, okna vedoucí od podlahy ke stropu a francouzské dveře.
Jak bylo řečeno, obytný soubor navazuje na styl výstavby řadových domků z 19. století, ale přináší několik pozoruhodných inovací. V přízemí, resp. prvních dvou podlažích bytových domů, se nachází tzv. „maisonettes“ – typicky patrové byty s vlastním přístupem do ulice –, které slouží jako samostatné jednotky, de facto vestavené domy, a které se střídají se vstupy do apartmánů, jež stojí nad nimi. Funkční rozdělení oživuje fasádu: vchody a balkony vestavěných domků jsou zvýrazněné portiky, vstup do apartmánů je dvoupodlažní s cihlovou clonou a jejich balkony zase ustupují do fasády. Podlouhlá a monolitická stavba je tak svými různými funkcemi rytmizována.
Soubor Ely Court je zhotoven za pomoci tradičních konstrukčních technik se snadnou a levnou údržbou a velkou trvanlivostí. Konstrukce z dutinových betonových panelů je vyplněna zděním, fasáda pokryta režným zdivem. Kombinovaná okna se do interiérů obracejí vřelým provedením v přírodním dřevěném materiálu. Zábradlí balkonů a ohrádek v přízemí je kované. Dvoupatrové portiky vestavěných domků jsou ocelové a pokryté tmavým hliníkovým povrchem, kontrastujícím s písečnou zděnou fasádou domů.
Dodejme závěrem, že cena projektu se vyšplhala na 13.75 milionů liber. Výdělek z prodeje soukromých bytů byl částečně využit k úhradě stavby bytů sociálních. Soukromý subjekt zakoupil projekt obytného soubor od městské čtvrti v roce 2012 a tato platba umožnila zastupitelstvu další výkupy pozemků a pokračování celého revitalizačního projektu.
Více k tématu
- Autoři: Alison Brooks
- Ateliér: Alison Brooks Architects, Alison Brooks Architects
- Země: Velká Británie
- Město: Londýn
- Užitná plocha: 4 643.00m2
- Plocha pozemku: 6 509.00m2