 
					
                                            Oceněná hybridní budova v Londýně ukazuje, jak stavět dostupné městské bydlení
Budova z cihel a betonu v severovýchodní části Londýna dnes slouží jak žákům základní školy, tak pracovníků takzvaných klíčových zaměstnání. Budova, kterou pro místní charitativní organizaci navrhlo lokální studio, dostala nyní ocenění od Královského institutu britských architektů za dostupné bydlení.
Adéla Vaculíková , 24. 10. 2022
Nový kus města
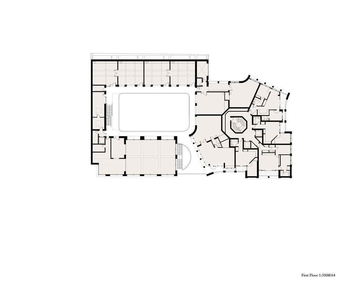
Budova na adrese 333 Kingsland Road v Londýně je jednou ze šesti staveb, které se objevily na letošním shortlistu Stirlingovy ceny 2022. Prestižní ocenění udílené Královským institutem britských architektů nakonec získala nová univerzitní knihovna v Cambridge. Takzvaná „hybridní budova“ 333 Kingsland Road ale nepřišla zkrátka – stala se totiž nejlepší britskou realizací v oblastí dostupného bydlení.
Obytná budova 333 Kingsland Road je přímo napojená na novou budovu základní školy, která byla přímou součástí projektu. Za počinem, který v sobě spojuje tři funkce – obytnou, obchodní a vzdělávací – stojí lokální londýnské studio Henley Halebrown. Když realizace zvítězila v ceně Neave Brown Award for Housing, udělovanou taktéž Královským institutem britských architektů, porota o ní prohlásila, že namísto jedné budovy, se architektům povedlo navrhnout kousek města.
Více k tématu
Hradby proti hluku
„Představuje příkladný přístup k hybridní architektuře kombinující různé funkce, aniž by se ztratily přednosti původní typologie vzdělávacích nebo obytných budov,“ popisují svou realizaci architekti ze studia Henley Halebrown. Objekt složený z jedenáctipatrové věže a třípodlažní hmoty školy vstoupil na nárožní parcelu při velmi dopravně vytížené Kingsland Road. Snaha přinést do obytné i školní budovy klid se proto stala jedním z hlavních aspektů projektu.
 
Plasticky tvarována obytná věž je pro školní areál účinnou ochranou před hlukem i smogem z ulice. Aby architekti tento účinek ještě posílili, nechali všechny místnosti a učebny uspořádat do nízkých hmot obestupujících centrální dvůr, který slouží jako hřiště. Důraz přitom kladli i na rozrůznění venkovních pobytových ploch, dvůr proto na úrovni druhého podlaží obíhá terasa. Stejné parametry poté aplikovali i na obytný dům. V přízemí nechali vybudovat obchodní parter, který přirozeně komunikuje s ulicí, záměrně ho ale vtáhli dovnitř stavby, takže vzniklo praktické podloubí. Hluboko do pláště stavby jsou zasazeny i celé lodžie jednotlivých bytů. Plášť stavby tak dostal velmi plastický rastr, obyvatelům domů se otevírá velkorysejší výhled a zároveň jsou takto byty lépe chráněné právě před hlučným okolím. Všichni obyvatelé domu mohou navíc využívat velkou pobytovou střechu, která slouží jako společná zahrada.
Terakotová barva i materiály budovy zase navázaly na tradici cihlových viktoriánských domků, které jsou pro severovýchodní obvod Londýna Hackney typické. Kousek od nové budovy 333 Kingsland Road navíc končí i památková zóna. „Beton budov obarvený červeným pískem a červeným žulovým kamenivem spolu s jeho červeným zdivem dvojici sjednocuje, spojuje jejich nesouvisející využití a zároveň zdůrazňuje design obou budov jako ucelených prvků urbanistického designu,“ komentují materiálové řešení stavby architekti.
 
Odpovědnost vůči obyvatelům i okolí
Obytná věž s 68 byty je ve vlastnictví charitativní organizace zabývající se dostupným bydlením pro takzvané klíčové pracovníky. Momentálně funguje v režimu, který drží u 50 % bytů nájemné až o polovinu níže, než je v lokalitě průměrné.
„Jedná se o pozoruhodný architektonický počin, který ukazuje, jak efektivně spojit více funkcí, aniž by se snížila síla vzdělávacího nebo obytného aspektu. Studio Henley Halebrown dodalo vysoce kvalitní a cenově dostupné bydlení, které podněcuje a těší obyvatele, návštěvníky i kolemjdoucí. Robustní design je promyšleně propracovaný do všech detailů. Nejenže přináší sociální hodnotu této městské čtvrti, ale také reaguje na komplexní zadání s architektonickými ambicemi a nastavuje mimořádně vysoký standard městského designu, okomentovala stavbu Kaye Stout, předsedkyně poroty Neave Brown Award for Housing.
- Ateliér: Henley Halebrown architects
- Země: Velká Británie
- Zastavěná plocha: 8500 m²
- Realizace: 2020
- Město: Londýn
 
                             
                             
                             
                             
                             
                                 
            		 
            		 
                             
                             
                             
                             
                             
                             
                             
                             
                             
                             
                             
                             
                             
                             
                             
                             
                             
                             
                             
                                                     
    
	 
            		 
            		 
            		 
            		 
            		 
            		 
            		 
            		 
                     
                     
            		 
            		 
            		 
            		 
            		 
                     
					 
                                                         
                                                         
                                                         
                                                         
				 
				 
				 
				 
				 
				 
				 
				 
				 
				 
				 
				 
				 
				 
				 
				 
				 
				 
				 
				 
				 
				