
Architektura
/
rodinné domy
Dům s šálou z okenic
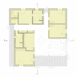
Ačkoliv je tomuto přízemnímu rodinnému domu od ov-a již pár let, stále působí velmi svěže. Zatímco zdálky jde o kompaktní hmotu, zblízka, za uzavíratelnými okenicemi, najdete vlastní svět – 3 soukromé bloky, propojené společným prostorem.
OVA , 25. 8. 2016
Více k tématu
- Autoři: Jiří Opočenský, Štěpán Valouch
- Ateliér: OVA
- Země: Česká republika
- Město: Králův Dvůr
- Ulice, číslo: Počaply
- PSČ: 267 01
- Datum projektu: 2007
- Realizace: 2009
- Užitná plocha: 188.00m2
- Zastavěná plocha: 225.00m2
- Plocha pozemku: 1 212.00m2
- Foto ©: Tomáš Souček