Bydlení jako ve včelím úlu. Čtyři nové dřevostavby na Vysočině
Původně na místě ležela struska ze slévárny. Dnes tu stojí malé dřevěné ateliéry pro dlouhodobý pronájem. Jejich interiéry zdobí větvičky a listy z krajiny Vysočiny.
Adéla Vaculíková , 23. 4. 2026
Čtyři dřevěné domky pro svůj tvar a použité dřevo připomínají včelí úly. Jsou zasazené vedle sebe do prostorné zahrady ve Ždírci nad Doubravou na Vysočině. A sloužit budou dlouhodobému pronájmu.
Za návrhem i realizací stojí Petr Novák, majitel a vedoucí dvou ždíreckých firem – Modelárny Novák a značky Zlesart. První se věnuje modelování a konstrukci forem, druhá pracuje s designovými odlitky kovů a masivním dřevem. Právě tyto prvky je možné v nových domcích vidět doslova na každém kroku. Bee House – což je oficiální název projektu – jsou tedy jakési vzorové domy, na nichž se know-how obou firem prezentuje v praxi.

Zlesart pro Bee House navrhoval a vyráběl většinu konstrukčních i interiérových prvků – od fasádních lamel přes nábytek až po drobné detaily. Madla, kliky nebo další kovové komponenty vznikaly odlitím v místní slévárně, při jejichž návrhu si Zlesart bere inspiraci z větviček, lístků a dalších přírodnin.
Domky stojí na pozemku, který má sám o sobě průmyslovou minulost. Zahrada vznikla postupnou kultivací místa, kde se dříve nacházela struska z oné dodnes ve městě fungující slévárny.

Na ploše se dnes nacházejí vzrostlé stromy, keře a úhledně zastřižená tráva. Domky jsou zde volně rozesazené a ačkoliv je zahrada jako celek společná, každý z nich má svůj vlastní vymezený kus, oddělený výsadbou nebo nízkými ploty z opalovaného dřeva. Zároveň ale sdílejí společné ohniště a do budoucna i další zázemí.
Více k tématu
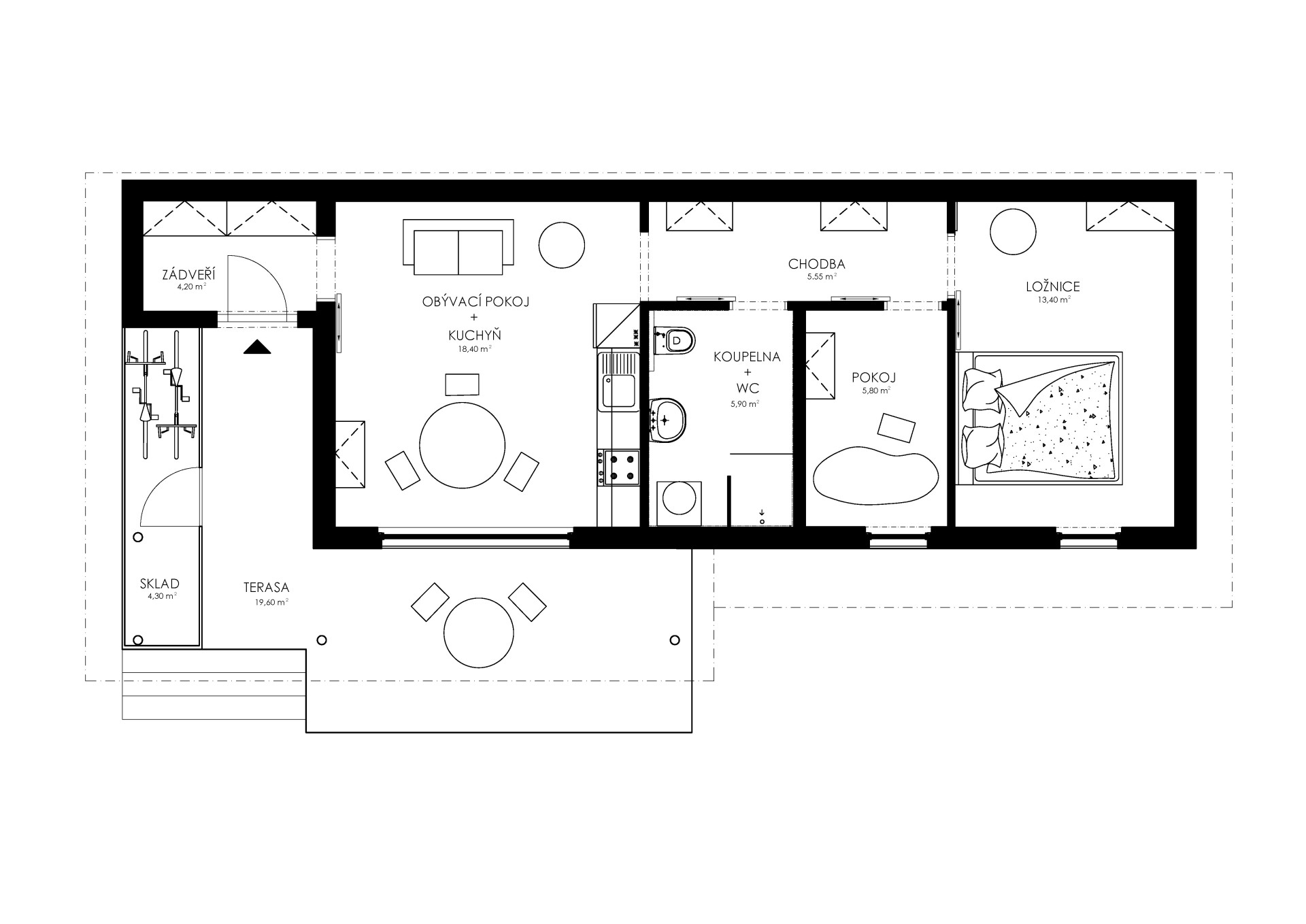
Každý z ateliérů má přibližně 58 metrů čtverečních a otevřenou dispozici. Hlavní obytný prostor doplňuje velké okno, které zároveň funguje jako vstup do zahrady a navazuje na něj terasa. Dále se dovnitř vešla ložnice, menší pokoj, koupelna i zádveří a malý sklad – třeba na kola. V malých domcích je tedy vše, co je běžně k životu potřeba.
- Autoři: Petr Novák, Petr Myslivec
- Spolupráce: Modelárna Novák, Zlesart
- Země: Česká republika
- Město: Ždírec nad Doubravou
- Realizace: 2025
- Fotograf: BoysPlayNice
- Užitná plocha: 58 m²
- Hrubá podlahová plocha: 80 m²
- Zahradní architekt: Jan Kocourek
- Konstrukce, nábytek: Modelárna Novák
- Dřevěné konstrukce, nábytek: Truhlárna Michal Starý
- Značky: Zlesart, IKEA, mminterier