Architektura / interiér

Dvojitá půdní vestavba na bytovém domě v Brně

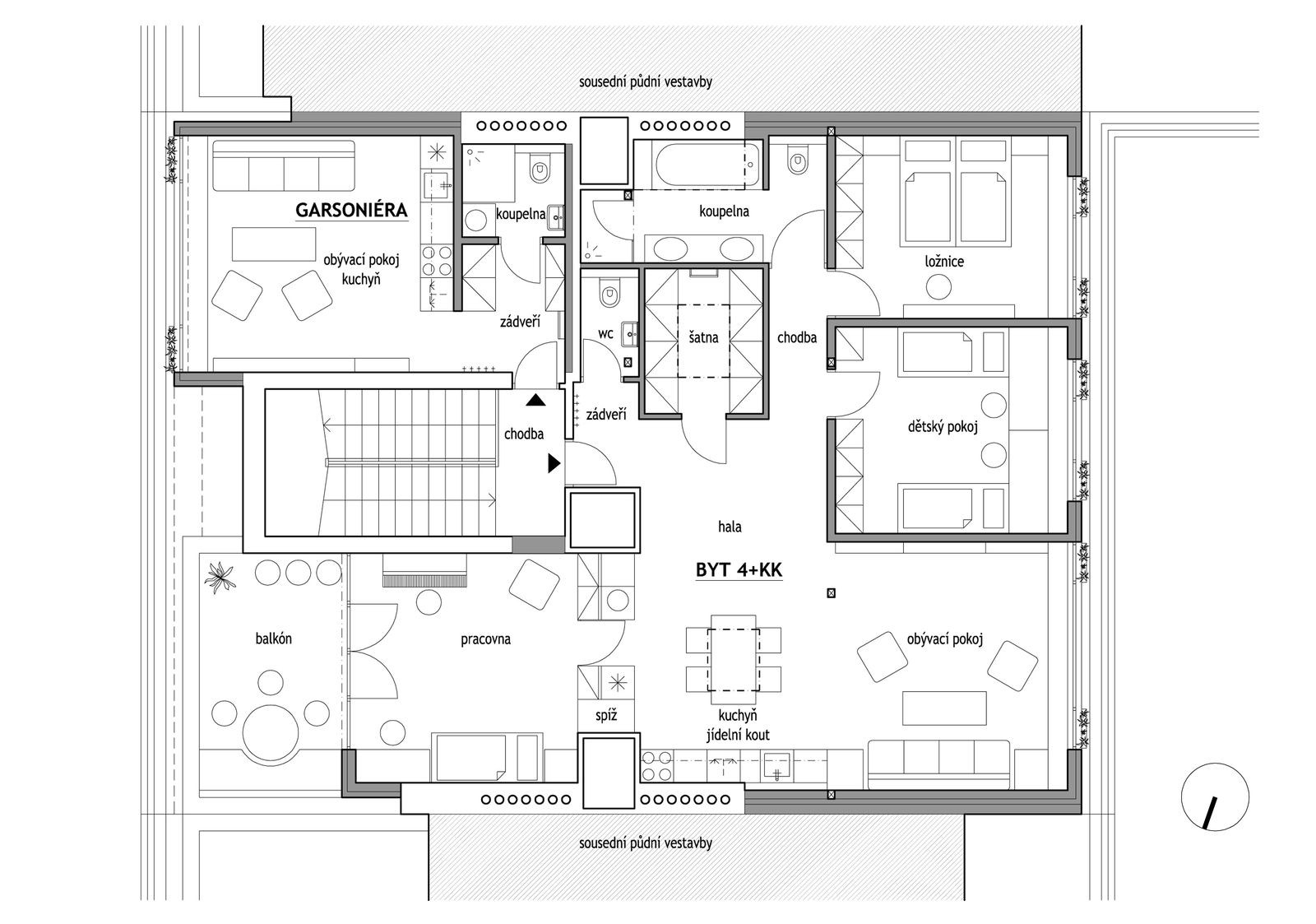
Půdní vestavby představují efektivní využití často zbytkových a zanedbaných ploch. Jejich potenciál odhaluje projekt nových půdních bytů na střeše brněnského bytového domu od mladých domácích architektů AEIOU. Vznikly dvě jednotky pracující především s výhledy na město.

EARCH.CZ , 29. 5. 2017

  • Ateliér: studio AEIOU
  • Země: Česká republika
  • Realizace: 2014
  • Město: Brno
  • Ulice, číslo: Cihlářská
  • PSČ: 602 02
  • Realizace: 2014
  • Užitná plocha: 152.00m2
  • autor: EARCH.CZ *
  • publikováno: * 29. 5. 2017
  • zdroj: * Autorská zpráva

Klíčová slova:

vestavba studio AEIOU Brno

Mohlo by vás zajímat

Generální partner
Hlavní partneři