Flirt moderního s tradičním. Starou farmu v portugalských horách rozšířila minimalistická novostavba
Na terasovitém pozemku uprostřed Portugalska vyrostla betonová novostavba rodinného domu, ve kterém hraje hlavní roli čistá plocha.
Adéla Vaculíková , 25. 7. 2022
Oddělení starého od nového
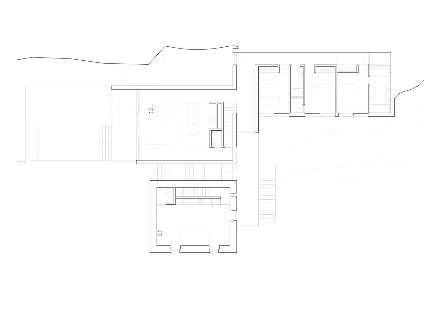
Casa NaMora je kaskáda jednoduchých až archetypálních hmot, tří „domků“ se sedlovými střechami, které dohromady tvoří jeden kompaktní celek. Tradiční se zde potkává s moderním a původní s novým.
Poblíž obce Goncalo vystavěné v kopcích pohoří Serra da Estrela ve středu Portugalska se nachází od poloviny minulého století velké hospodářství. Na pozemku o 18 hektarech stál a dosud stojí domek se zdmi z žulových kamenů – a právě ten nedávno portugalští architekti David Bilo a Filipe Pina rozšířili o betonovou novostavbu.
„Pozemek se v průběhu let díky zemědělské činnosti dobře zachoval. V jeho středu stojí skromná žulová stavba postavená v polovině 20. století. Od ní se také odvíjí nový projekt. Abychom nenarušili zemědělskou činnost, rozhodli jsme se při návrhu domu oddělit staré od nového,“ říkají architekti.
Více k tématu
Archetypální kaskáda
Dům Casa NaMora stojí na terasovitém pozemku v obklopení hustých borovicových lesů. Její kouzlo se skrývá především v lapidární siluetě. Architekti se vydali cestou přísného opakování obrysu původního domu. Betonová novostavba tvořená dvěma propojenými hmotami dostala dvě sedlové střechy, výsledek tak vypadá, jako by šlo o dva samostatné domy.
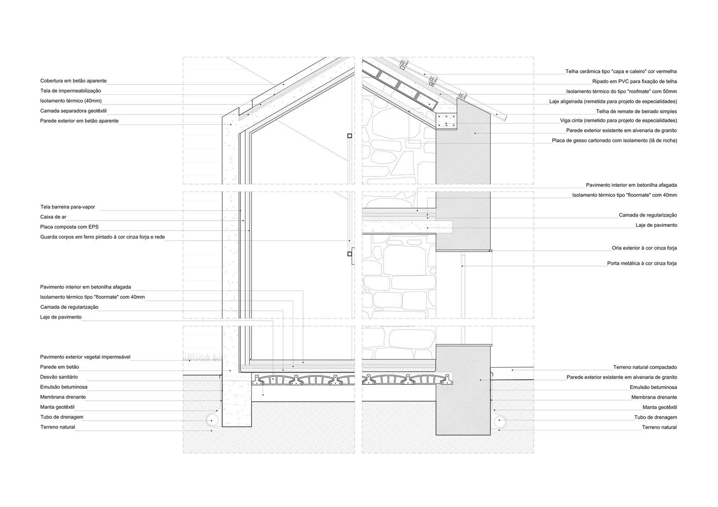
K vytvoření kaskádovitého dojmu přispěl i nerovný pozemek. Novostavby stojí na terase, která je oproti původnímu domu o něco vyvýšená. Vzájemně jsou všechny hmoty v úrovni terénu propojeny betonovou plochou, která v přední části uvozuje vstup do žulového domu a v zadní pokračuje v zapuštěný bazén. Beton je v exteriéru všudypřítomný, je z něj i střešní krytina, která je položena tak, aby nevytvářela žádnou vrstvu navíc. Strohost je dovedena do krajnosti.

Podobnost v rozdílnostech
Původní žulový domek nemá mnoho oken. A z nejexponovanějších pohledů to vypadá, že ani interiéry novostavby nebudou příliš prosvětlené – opak je nicméně pravdou. Celá štítová stěna směrem k bazénu je totiž ze skla. Jako slunolam zde funguje přesah střechy a bočních stěn.
Materiály – stará žula a nový beton – společně na první pohled kontrastují. Přesto se architekti snažili stavby i v tomto ohledu provázat. Na litých betonech je zvenčí patrný rastr bednění, které bylo seskládáno z dřevěných latí podobně, jako byl původní dům sestaven z žulových kamenů.

Surově jemný
Motiv odlišení se propisuje i do funkcí jednotlivých hmot. V původním žulovém domku se nachází zázemí pro provoz farmy, jsou zde sklady, technické prostory a sanitární zařízení. Novostavba slouží bydlení. V krajním křídle jsou umístěny ložnice, pohledu na původní domek se otevírá obytný prostor s kuchyní a zavěšeným patrem.
Stejně jako v exteriéru převažují i uvnitř novostavby čisté plochy. Architekti sami říkají, že z realizace chtěli vyloučit detail. Beton do interiéru přenesli už jen v omezené míře, zůstal pouze na stropech. Stěny naopak dostaly bílou omítku. Nábytek je především dřevěný, přírodní materiály totiž podle architektů nejlépe korespondují s charakterem místa. Barevné akcenty byste pak našli pouze v koupelnách – zvítězily zde modré obklady.

David Bilo i Filipe Pina mají s rozšiřováním starších staveb už početné zkušenosti. Ačkoliv každý vede svůj vlastní ateliér, není Casa NaMora jejich první společnou realizací. Výrazné odlišení původního od nového hraje v tvorbě obou architektů ústřední roli. V tomto konkrétním případě našli oporu i v samotném názvu místa.
„Jméno NaMora má v portugalštině dvojí význam. Odkazuje na umístění projektu, kdy ‚NaMora‘ by se dalo přeložit jako ‚v Mora‘ (Mora je místo, kde pozemek leží), ‚namora‘ však v portugalštině znamená doslova ‚flirt‘ nebo ‚rande‘. V místě jménem Mora se tak zrodil dům NaMora, kde betonové objemy tvořící novou část domu formálně ‚flirtují‘ se stávajícím žulovým tělesem, v naprostém souladu s okolím,“ zakončují architekti své povídání o realizaci.
- Autoři: David Bilo, Filipe Pina
- Země: Portugalsko
- Realizace: 2022
- Město: Guarda
- Zastavěná plocha: 320 m2