Chalupa, která šeptá s krajinou. Rekonstrukce historického stavení na Šumavě
Chalupa na okraji Borových Lad znovu ožila. Studio Plyš ji zbavilo nevhodných zásahů z minulosti a přidalo citlivou soudobou vrstvu.
EARCH.CZ , 21. 11. 2025
Za vsí, kde louky přecházejí v hluboké šumavské lesy, stojí chalupa z konce 19. století. Z dálky působí nenápadně – jako dům, který tu byl odjakživa. To je záměr. Architekti Lenka a Petr Vávrovi ze Studia Plyš k její rekonstrukci přistoupili s respektem k vrstvám, jež historická stavba nashromáždila během více než sta let: k hmotě, času i okolní krajině.
Zároveň ale nešlo o kosmetickou úpravu. Původní hospodářská část domu se bortila a nevhodné zásahy z 80. a 90. let způsobily fatální stavební poruchy. Architekti je proměnili v příležitost – a právě tady začíná nová kapitola chalupy.
Nový střed domu
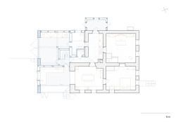
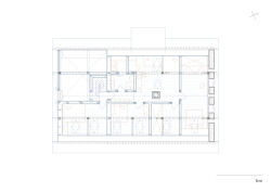
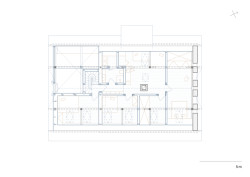
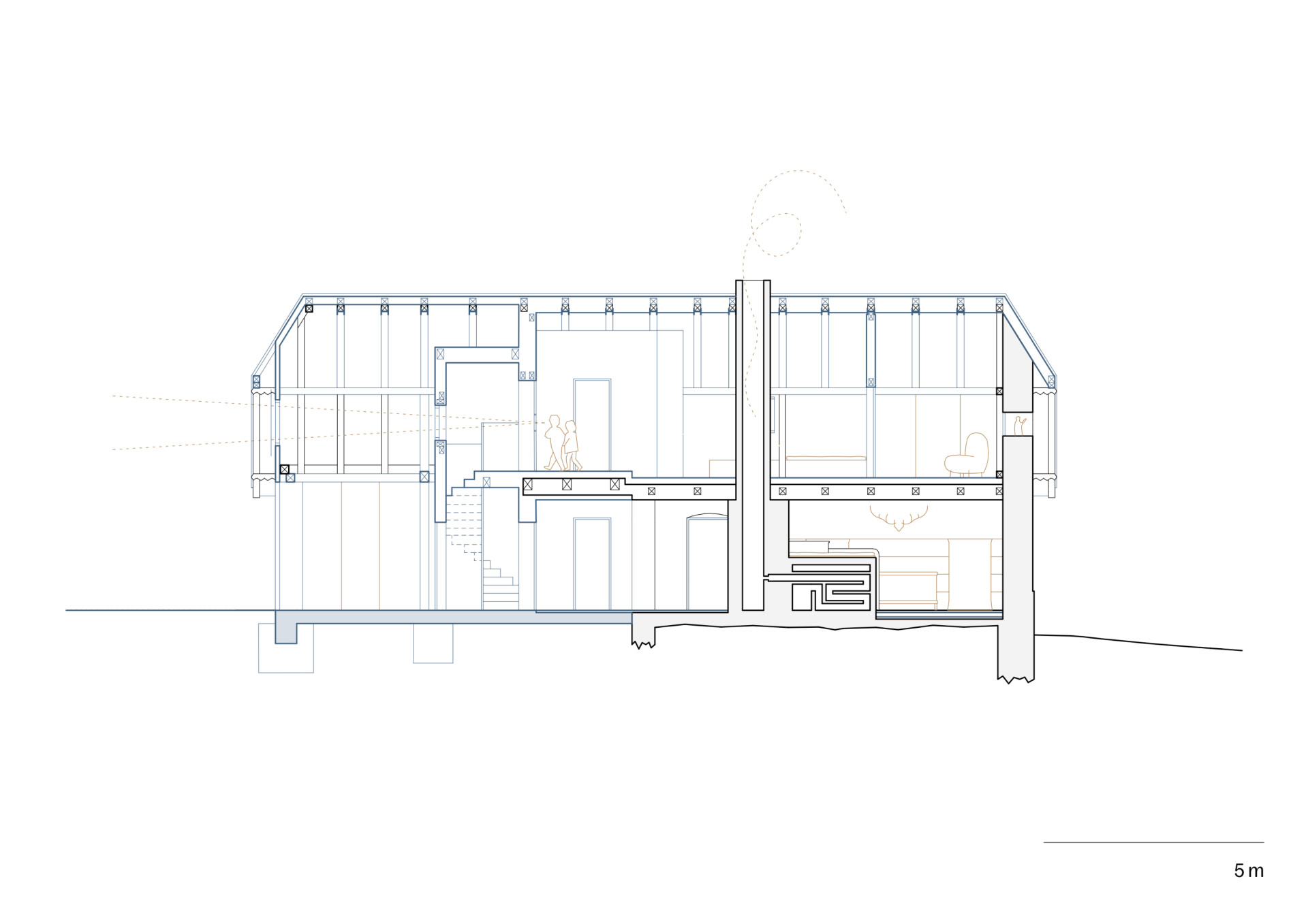
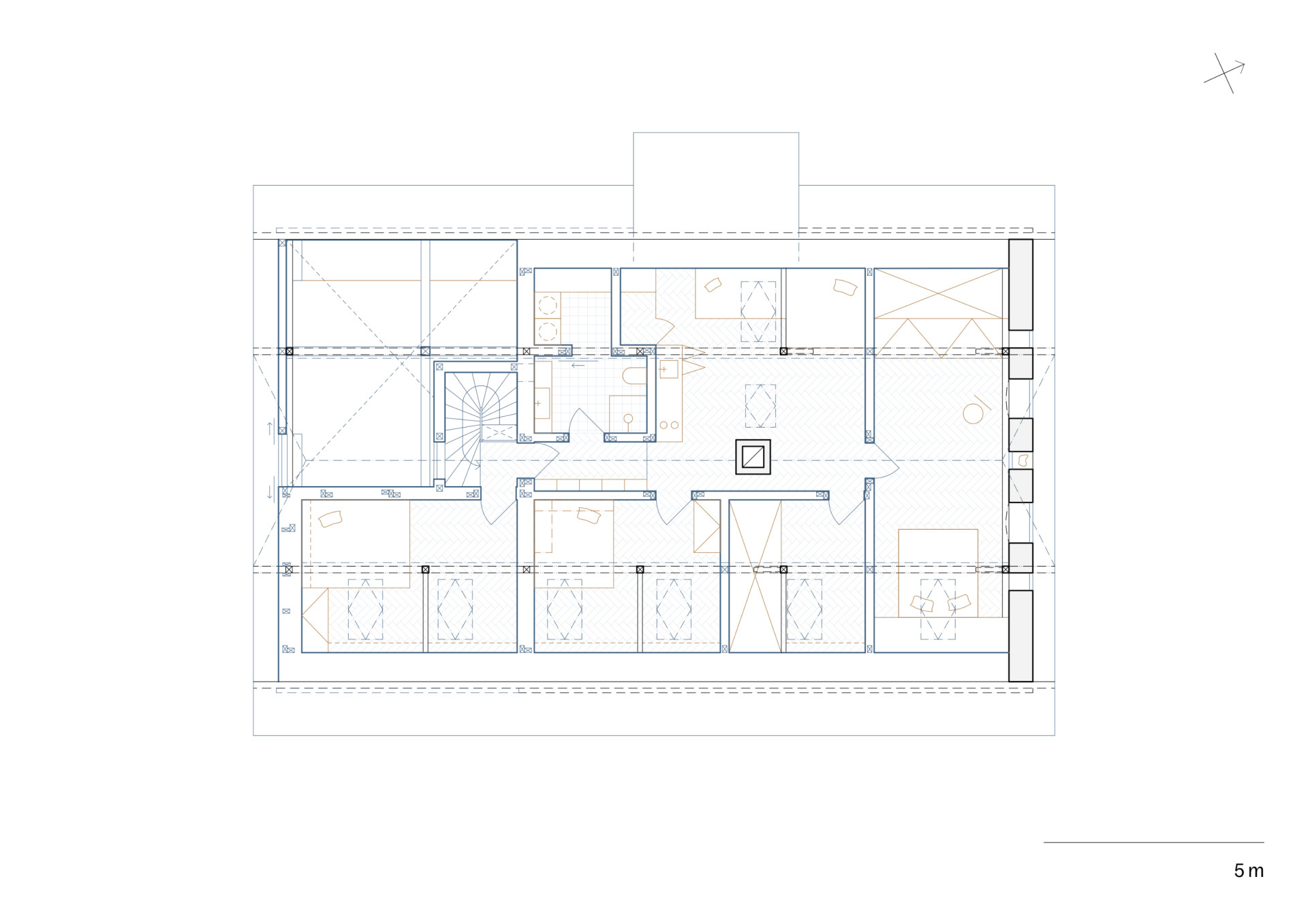
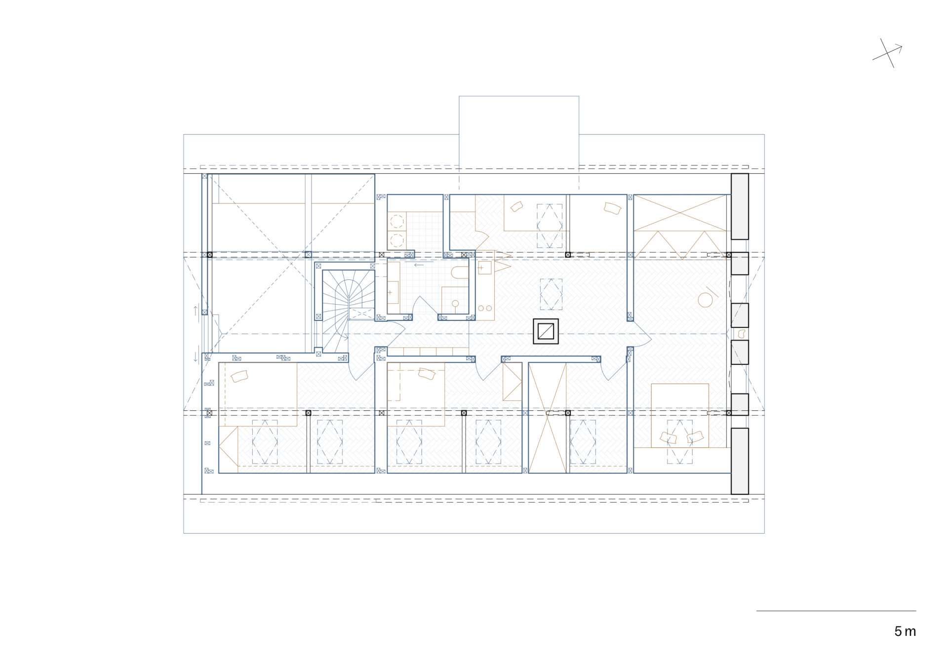
Chalupa se skládá ze dvou částí, z původní obytné hospodářské části a stodoly. Hospodářská část byla hodně stavebně narušená. Po zásahu architektů v jejím jádru vznikl otevřený obytný prostor, který se otevírá do zahrady velkými proskleními. Obývací pokoj je skrze široký portál propojený s kuchyní, takže dům získal rozvolněnější uspořádání.

Prostor stodoly architekti vyčistili a nechali převýšit až do krovu – díky tomu může sloužit jako utilitární zázemí, ale také jako příjemné místo pro podzimní posezení. Napůl venku, napůl uvnitř.
Původní tvar domu zůstal. Nová okna otevírají interiér směrem ke krajině, velké okenice jej naopak chrání před větrem, sněhem i pohledy kolemjdoucích. Kolejnice okenic architekti přiznali – stejně jako betonovou strukturu sloupů a schodů, jejichž textura odkazuje na prkna fasády.

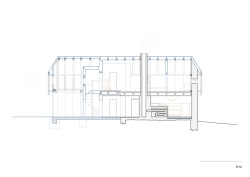
Záchrana krovu a vložená dřevostavba
Ve špatném stavu byl také krov. Nově ho nesou tři nové železobetonové sloupy. Těžkou betonovou krytinu nahradily falcované šablony, některé prvky krovu se zesílily pomocí ocelových příložek. Díky těmto úpravám a zajištění se povedlo krov zachovat mohl zůstat – jedná se o jeden z nejhodnotnějších prvků chalupy.

Ačkoliv to tak z venku nevypadá, do podkroví a části původní hospodářské části architekti vložili také moderní dřevostavbu obloženou vláknocementem a překližkou. Obsahuje koupelnu a technické prostory a je kompletně oddilatovaná – tedy konstrukčně oddělená od původní stavby, aby nenarušovala difuzi původních konstrukcí. Je to současná vrstva přiznaná jako samostatná „vestavba“, doslova ale přišroubovaná ke staré chalupě.
Více k tématu
Při rekonstrukci se podařilo zachránit také část původních dřevěných podlah a kachlová kamna. Běžné vytápění chalupy ovšem nezajišťují ony, ale tepelné čerpadlo vzduch–voda, které je propojené se smart home technologií. Jedná se tedy o moderní šumavskou chalupa se vším všudy. Ovšem také s respektem k původnímu. Studio Plyš říká, že chtělo chalupu, která „nekřičí do svého okolí“. Podařilo se jim to.
- Ateliér: Studio Plyš
- Autoři: Lenka Vávra, Petr Vávra
- Spolupráce: Kateřina Vávrová
- Země: Česká republika
- Adresa: Borová Lada
- Realizace: 2024
- Zastavěná plocha: 190 m²
- Užitná plocha: 246 m²
- Fotograf: Tomáš Slavík
- Stavba: Rynostav
- Epoxidová stěrka: Němec
- Dubová podlaha: Princ Parket
- Autorský nábytek: Truhlářství Kadlec