
Kámen, beton, tropy. Za vzdušnou vilou v Mexiku stojí architekti ze Slovenska
Vila na pobřeží Karibského moře zaujme svou racionalistickou strukturou a surovými materiály, které výborně souzní s tropickou zelení.
Adéla Vaculíková , 21. 6. 2022
Architekti ze studia NOIZ.SK sídlí sice v Bratislavě, nedávno si však do svého portfolia přidali vilu na Yucatanském poloostrově u mexického Tulum, která upoutává pozornost střídmými formami. Až modernisticky působícího výsledku architekti dosáhli kombinací surových materiálů a velkými otevřenými i plnými plochami. „Zeleň na pozemku je pro dané místo charakteristická, samotná architektura se však od té místní liší. Navzdory tomu je navržená tak, aby co nejvíce respektovala místní podmínky a klima,“ vysvětlují architekti a dodávají, že v první řadě mysleli na to, aby stavba obstála v horkém a zároveň vlhkém podnebí.
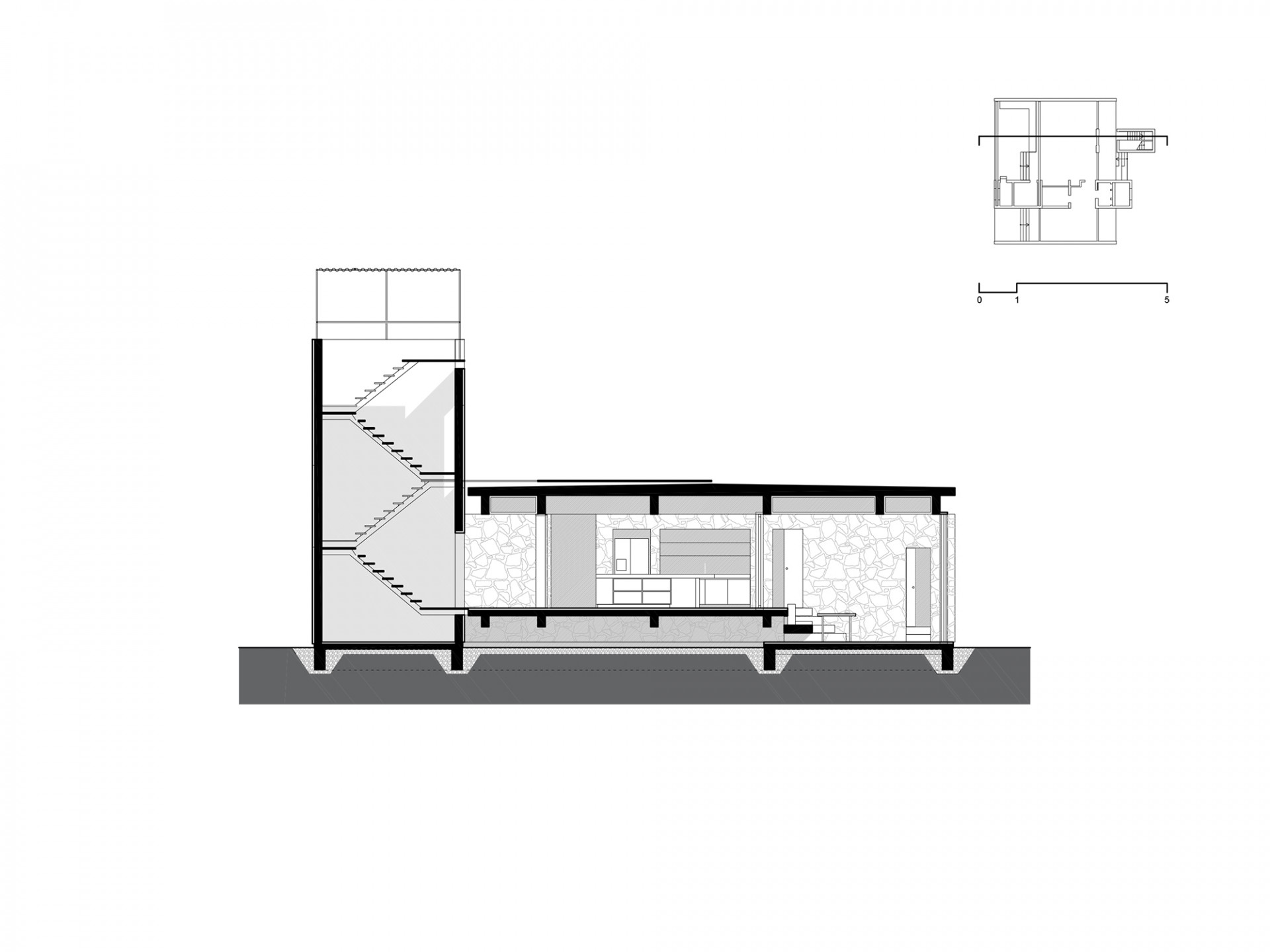
Vila je díky své konstrukci vyzdvižena nad úroveň terénu, takže pod ní neustále proudí mořský vzduch. „Stejný princip je použit i při konstrukci střechy, která je položena na pěti mohutných betonových trámech,“ přibližují architekti z ateliéru NOIZ.SK. S myšlenkou na vzdušnost jsou ostatně pojaty i interiéry založené na otevřených dispozicích.
Více k tématu
Vila je nepochybně zajímavá i tím, jak se pracuje s vegetací daného pozemku. „Ten je samotným objektem předělen na dvě části – před vilou se nachází zóna lesů a za ní zóna nižšího, ovšem také pro oblast přirozeného porostu – karibské zahrady,“ říkají architekti. Nedílnou součástí zahrady je i bazén, který se nachází jen pár kroků od obytných pokojů.
Uvnitř vily na obývací pokoj a kuchyň navazuje krytá terasa, kterou sami architekti označují za „exteriérovou obytnou místnost“. Díky posuvným skleněným stěnám a sítím je možné ji uzavřít a využívat tak za téměř jakéhokoliv počasí. Ložnici od obytného prostoru odděluje příčný trakt, který se v exteriéru projevuje jako vložený zděný úsek. Oproti proskleným volnočasovým místnostem v sobě skrývá koupelny nebo šatnu.

Střídmě působící vila v Mexiku je plná rafinovaných prvků. Vedle variabilních dispozic, které umožňují jednotlivé místnosti uzavírat nebo naopak otevírat, je také plná vestavného nábytku přesně reagujícího na její vnitřní strukturu. Pomyslnou třešničkou na dortu je pak už jen věž při boku vily, která slouží jako soukromá vyhlídka a domek pro hosty, který se inspiruje tradičními mayskými stavbami.
- Autoři: Samuel Zeman, Andrej Šabo
- Ateliér: NOIZ architekti
- Země: Mexiko
- Město: Tulum
- Projekt: 2021
- Realizace: 2022
- Užitná plocha: 189 m²
- Zastavěná plocha: 216,5 m²
- Plocha pozemku: 1600 m²