
Historická vodárna s trafostanicí slouží po konverzi jako společenské centrum pražských Nebušic
Rekonstrukcí bývalé vodárny v okrajové části Prahy vzniklo nové víceúčelové centrum Nebušic. Dnes v ní tak najdeme společenský sál, klubovnu a dokonce i byt.
EARCH.CZ , 16. 9. 2022
„Bývalá obecní vodárna s trafostanicí v Nebušicích plnila své poslání od 20. let 20. století. Poslední léta chátrala. Byla zachráněna, přejmenována na Starou vodárnu a od roku 2019 slouží veřejnosti,“ říkají architekti z Atelieru Poláček, podle jejichž návrhu byla budova zrekonstruována. Nebušice jsou severozápadní městskou částí Prahy, kterou ze tří stran obestupuje park Šárka-Lysolaje. Vodárna s výraznou siluetou je zde poměrně pohledově exponovaná, nachází se ve svahu, kousek od místního potoka a je z ní krásný výhled na centrum s kostelem.
Bývalá budova vodárny nese na svém štítu dataci 1929, v druhé polovině 30. let ovšem dostala další přístavby – jednou z nich byla i věžová trafostanice. Jednotlivé stavební etapy se architekti snažili odlišit i při rekonstrukci. „Původně byla nejstarší přední část omítnutá, pozdější byla přístavba ponechána v režném zdivu. Tento princip jsme jemně převedli i do nových úprav. Jižní a východní fasády přístavby jsou strukturovány vroubkováním,“ popisují autoři.
Více k tématu
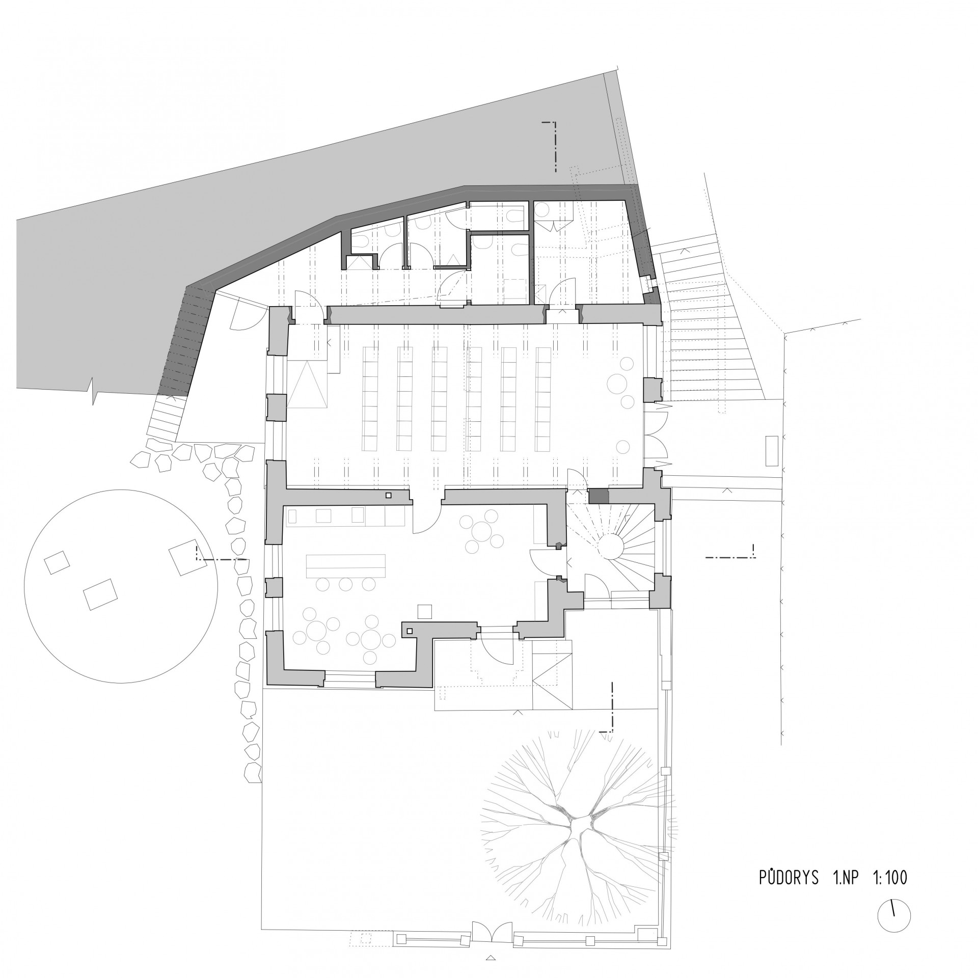
Architekti z Atelieru Poláček říkají, že ke stavbě přistupovali jako k památce. Snažili se zachovat její hmotový rozvrh, množství dochovaných prvky, technické detaily a další specifika domu. Jelikož však budova měnila svou funkci z původně technické stavby na víceúčelovou, museli provést přístavbu hygienického a technického zázemí. Situovali ji však tak, aby byla co nejméně nápadná. Nachází se za domem v místě, kde se zvedá svah, do něhož se schovává.
„Z vyšších podlaží vodárny se nabízejí krásné výhledy do údolí a ke kostelu. Proto je veřejnosti zpřístupněna bývalá věžová trafostanice, plochá střecha na jižní straně slouží jako terasa. Celý prostor věže je vyplněn zcela novým vřetenovým schodištěm,“ popisují architekti. Schodiště se stalo i jakousi pohledovou dominantou budovy, a to zejména v noci, kdy se nasvítí a skrze velká okna je vidět i zvenku.
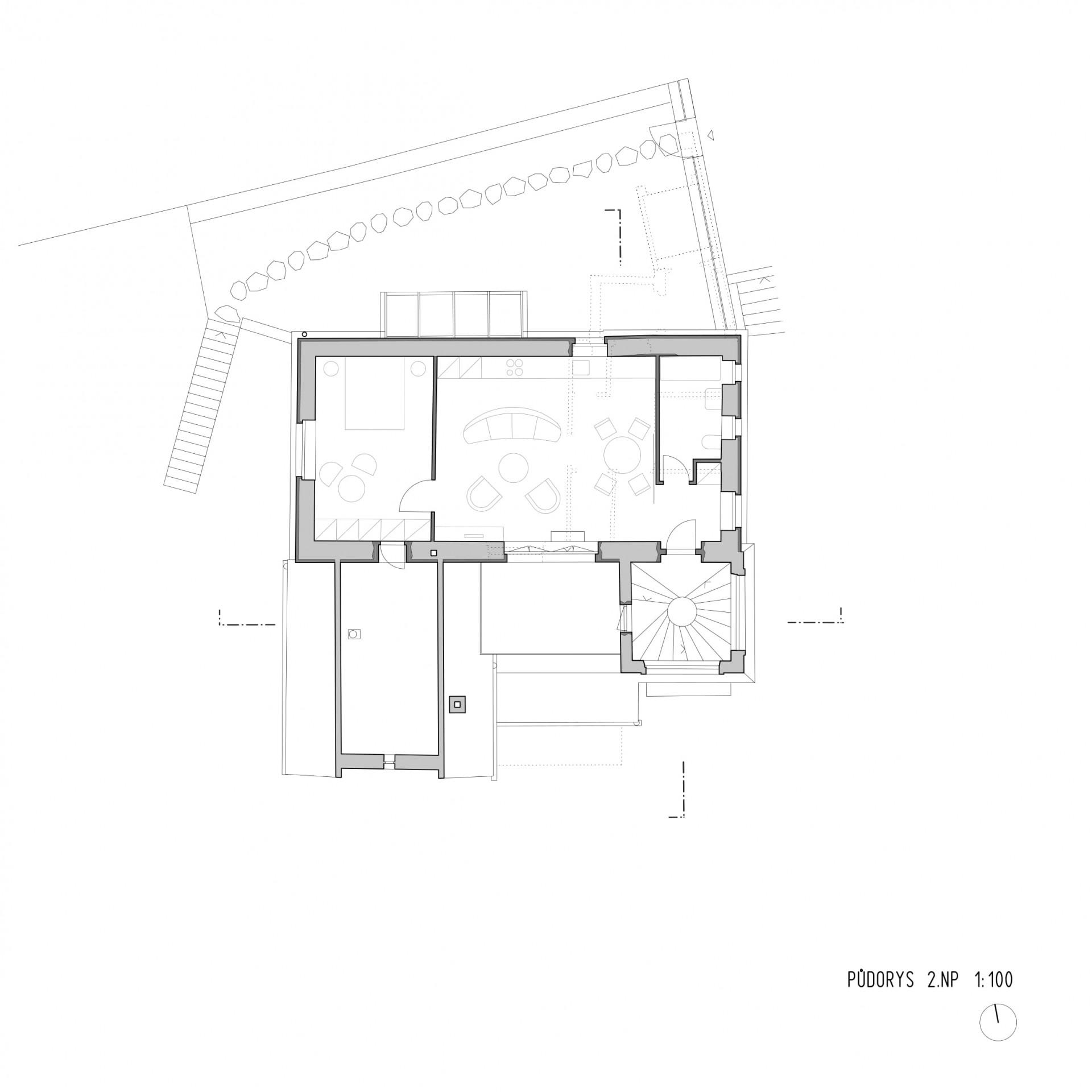
V přízemí bývalé vodárny se dnes nachází velký sál, který vznikl na místě původní dílny. Strojírna se zase proměnila ve foyer a kavárnu. Druhé podlaží domu slouží jako byt, v podkroví se nachází univerzální klubovní prostor.

Stavba má svou vlastní zahradu, která umožňuje konání nejrůznějších akcí i venku. Přízemní sál se proto s exteriérem propojuje prosklením. Dodnes lze na stavbě obdivovat původní ocelová okna, která prošla repasí. „Pro městské prostředí bylo důležité vnitřní obytné prostory otevřít a co nejvíce propojit s okolím skrze prosklení původních plechových vrat, nové otvory a vstupy,“ dodávají architekti.
Budova, která dnes slouží společenským akcím i bydlení nese název Stará vodárna. Byla zrekonstruovaná z financí městské části Praha-Nebušice za spoluúčasti Magistrátu hlavního města Prahy.

- Autoři: Jiří Poláček, Marie Mejstříková
- Ateliér: Atelier Poláček
- Spolupráce: Jiří Mach, Michaela Taušová
- Země: Česká republika
- Město: Praha-Nebušice
- Realizace: 2019
- Statika: Karel Jerie – YESTA statická kancelář
- Generální dodavatel: KONSIT a.s.