I na malém a svažitém pozemku může být krásné rodinné bydlení
Nedaleko centra Vsetína vyrostl přízemní rodinný dům v objetí přírody. Díky citlivé práci s terénem dobře zapadl do okolní zástavby.
EARCH.CZ , 10. 4. 2024 / Advertorial
Na první pohled komplikované zadání
Architektům ze studia LIPROJEKT rozkročeného mezi Brnem a Rožnovem pod Radhoštěm se dostalo na první pohled nelehkého zadání. V roce 2016 je oslovila rodina se dvěma dětmi s nabídkou na návrh rodinného domu ve Vsetíně.
Dům na malém svažitém pozemku se nejprve zdál jako poměrně komplikované zadání. Jak se později ukázalo, nevýhody pozemku vyvážila pozitiva. Parcela se totiž nachází v centru města, i přesto je obklopena zelení. Díky své poloze nabízí pozemek také nerušené výhledy do údolí.
Více k tématu
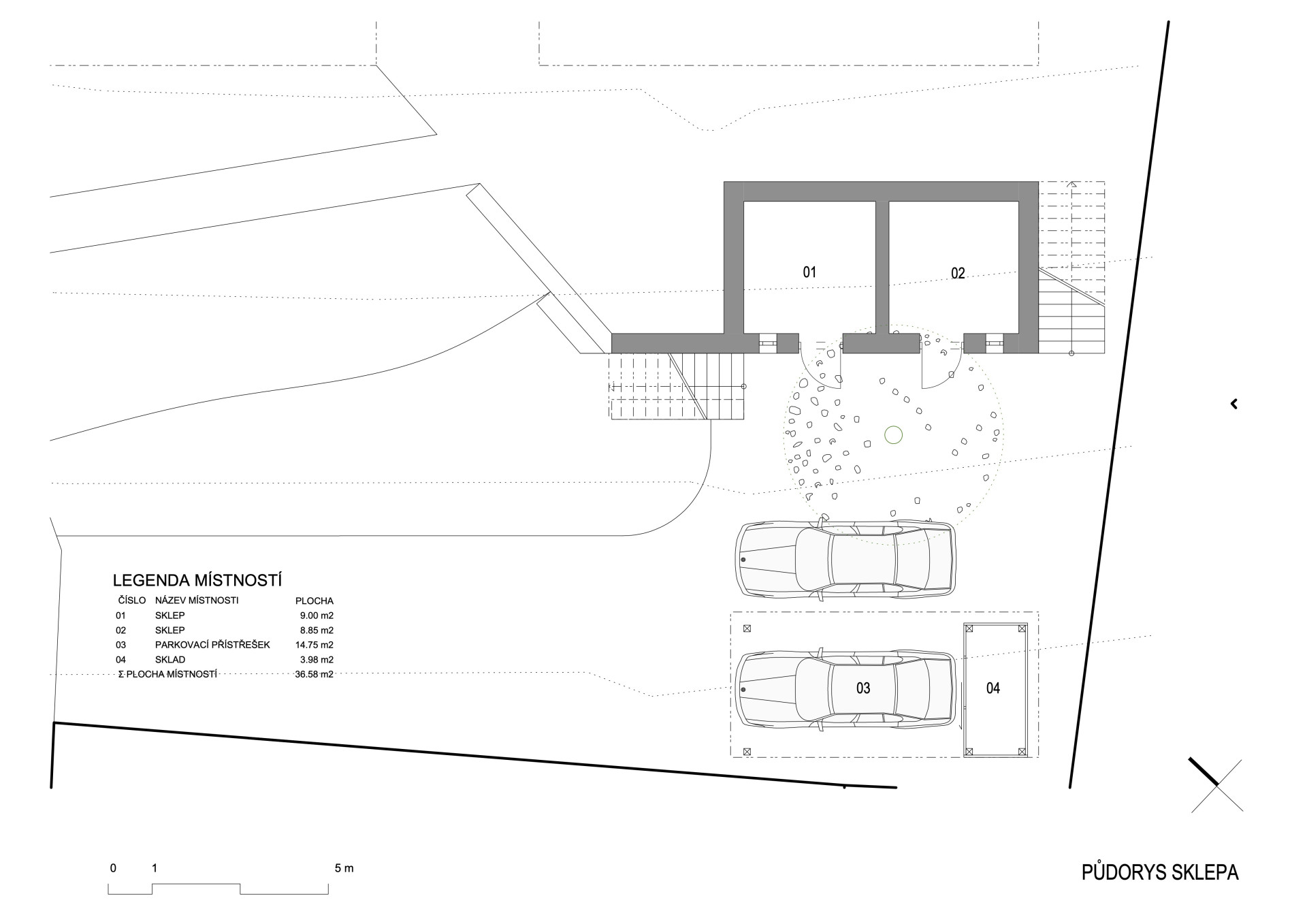
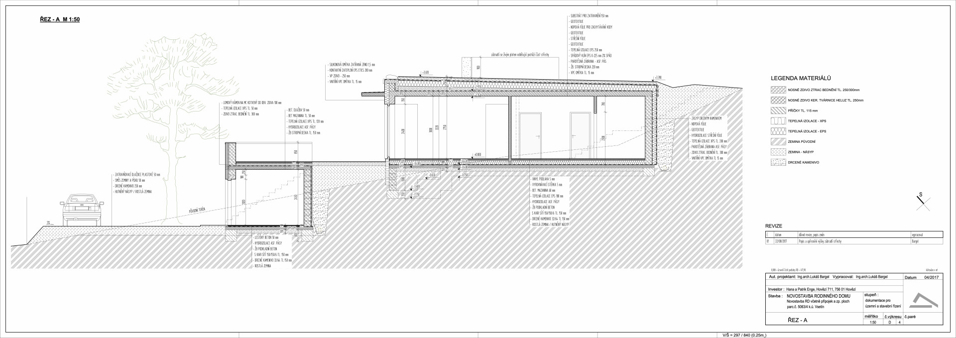
Důmyslné rozdělení a terasování příkrého pozemku vytvořilo tři funkčně odlišné zóny. V nižší části se nachází parkovací plocha pro auto, hospodářské zázemí a sklep. Nad ním si rodina vychutnává západy slunce na velkorysé terase, která poskytuje dostatek soukromí. Na samotnou střechu domu navazuje upravený terén s lavičkou, která vybízí k odpočinku.
Samotný dům hmotově navazuje na stávající zástavbu a doplňuje již realizovaný sousední dům. „Rodinný dům je navržen s ohledem na výhled do okolí a respektuje zachování výhledu sousedního domu. Střecha námi navrhovaného domu v žádném místě nepřevyšuje podlahu stávajícího sousedního domu, naopak je vzhledem k zasazení do terénu o přibližně metr níž,“ dodává autor projektu Lukáš Bargel.

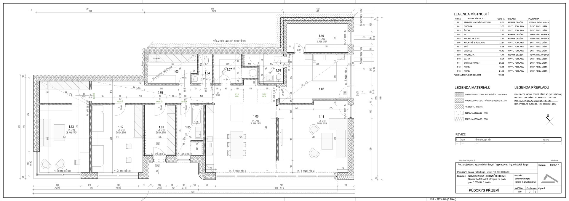
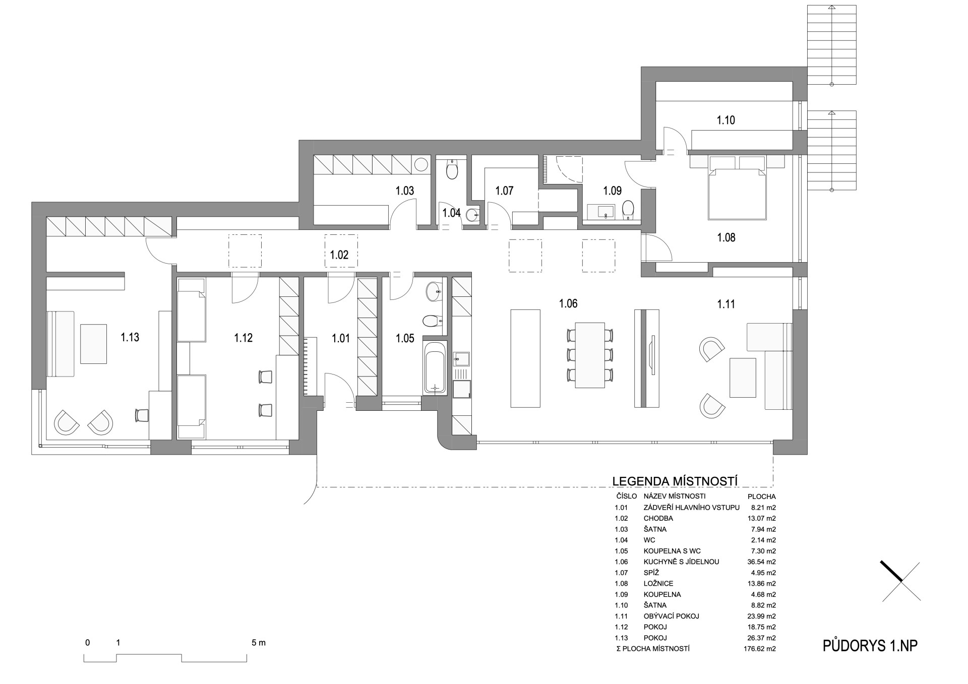
Důmyslné dispoziční řešení propojující interiér s exteriérem
Neodmyslitelnou součástí domu a zahrady se stala stará vzrostlá třešeň. Její koruna vytváří přirozené zastínění terasy, která je vytvořena na střeše sklepa a rodina sem má přístup z obývacího pokoje, jídelny i kuchyně.
Jednoduché dispoziční řešení domu s centrální chodbou a vstupy do jednotlivých obytných místností s přímým osvětlením se ukázalo jako dobré řešení. Všechny pokoje mají příjemný výhled na město i dostatek denního světla. Do části domu zasazené ve svahu autoři umístili servisní místnosti, šatnu, spíž a koupelnu.

Exteriér a interiér domu působí sjednoceným dojmem. Do interiéru se propisuje odhalená železobetonová stropní deska. Dřevo použité na obklad jihozápadní fasády se uvnitř objevuje na nábytku z masivu, který prostoru spolu s mnoha rostlinami a knihami dodává útulný dojem.
Skrze diskusi s rodinou našli autoři optimální řešení, které splnilo všechny požadavky. Vznikl tak jednoduchý funkční dům, ve kterém se rodině pohodlně žije.

Projekt rodinného domu z Allplanu
K Allplanu se architekt Lukáš Bargel dostal již v roce 2006, kdy navázal na svou předchozí práci v jiném BIM programu. Pochvaluje si především možnost modelovat ve 3D, což byl oproti 2D cad systémům velký skok. „V rámci jednoho programu jsem měl rázem nástroj, který v základním režimu pokryl veškeré požadavky na architektonickou tvorbu," říká Lukáš Bargel.
Na konkrétních projektech je pro ateliér přínosné využití 3D prvků ze studie, jež lze rychle a jednoduše upravit na stavební výkresy. Na modelu se také v dalších stupních projektové dokumentace dají ověřovat drobné změny, které při doprojektování vznikají.
Použité produkty:

Při projektování rodinného domu ve Vsetíně použili architekti komplexní BIM software Allplan.
- Ateliér: Ateliér LIPROJEKT s.r.o.
- Autoři: Lukáš Bargel
- Země: Česká republika
- Město: Vsetín
- Projekt: 2016
- Realizace: 2019