
Dům s rodinným hnízdem navrhli architekti s ohledem na zásady feng-šuej
Nedaleko Prahy navrhli architekti z ateliéru ARCHCON rodinný dům, který na první pohled zaujme přírodními materiály a splynutím s okolní krajinou. Celý projekt byl navíc navržen tak, aby odpovídal zásadám feng-šuej.
EARCH.CZ , 13. 4. 2023 / Advertorial
Inspirace přírodními motivy
Některé domy potřebují po svém dokončení určitý čas, aby se svým okolím splynuly v jeden harmonický celek. Některým se to nepodaří nikdy. A potom jsou domy, které ihned po svém dokončení působí, jako by na svém místě stály odnepaměti. Místo si je vezme za své a dům se tak stane jeho právoplatnou součástí. A přesně takovým domem je Dům s rodinným hnízdem od architektů z atelieru ARCHCON atelier.
Více k tématu
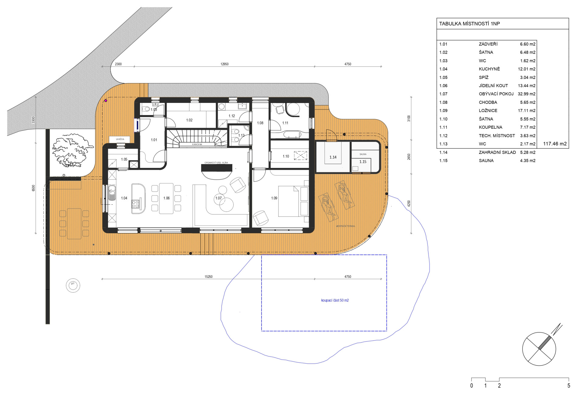
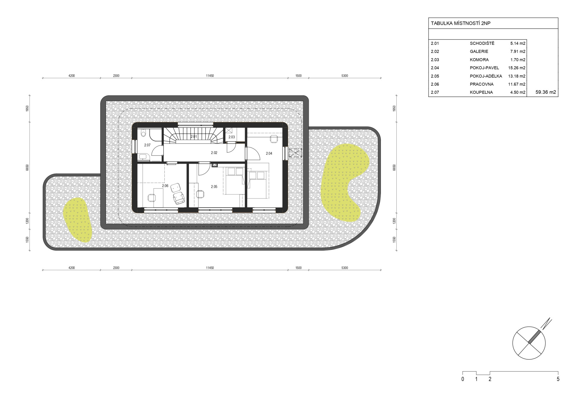
Novostavba rodinného domu je pojednána jako dvoupodlažní dřevostavba. Aby však dvoupodlažní hmota nepůsobila příliš velice a svému okolí tak nevhodně dominovala, podařilo se architektům hmotovou kompozicí docílit vizuálního uskromnění stavby. Vstupní podlaží, které obsahuje obývací pokoj a hlavní ložnici, je obehnáno předstupující terasou, která jej činí lehkým a vzdušným. Druhé soukromé podlaží, obsahující pokoje a pracovnu, svou hmotou naopak ustupuje a tím celkový dojem dvoupodlažní hmoty zjemňuje, podobně jako se směrem k vrcholu zužují koruny stromů či vrcholy kopců. Terasa navíc poskytuje svým obyvatelům krytý venkovní prostor, který i vzhledem k návaznosti na přírodní jezírko vytváří ideální útočiště v letních měsících. Celý dům je „oblečen“ do vertikálního modřínového obkladu, což jen umocňuje celkový dojem splynutí s okolím.

Měkké křivky namísto pravých úhlů
Dalším motivem, který napomáhá splynutí domu se svým okolím, je zjemnění ostrých úhlů měkkými křivkami. Ty se propisují nejen v exteriéru, ale i v jednotlivých prvcích interiéru. Díky tomuto detailu tak prostor okolí či vnitřní prostor interiéru může stavbou volně proplouvat bez ostrých bariér. Ústředním motivem dispozice celého domu je prostor obývacího pokoje s jídelnou a kuchyňským koutem. Ten působí díky použitým materiálům a barvám velice útulně. Centrálním a dominantním prvkem celého prostoru je atypický krb s komínem, který stojí volně v prostoru a lze jej tedy obejít ze všech stran. Svým skulpturálním výrazem a organickými liniemi se stává plnohodnotným uměleckým dílem, centrem, kolem kterého se odehrává veškeré dění v domě. Všechny tyto prvky a detaily, ze kterých finální návrh vzešel, byly ovlivněny konzultacemi se specialistkou na feng-šuej, staré čínské učení o vztahu člověka, prostoru a času.

3D model jako běžný pracovní nástroj
Architektonická praxe se dnes neobejde bez kvalitního softwaru pro 3D modelování a výkresovou dokumentaci. Architekti z ateliéru ARCHCON ve své praxi využívají program společnosti Allplan na bázi BIM (Building Information Modeling), stejně jako v případě projektu Domu s rodinným hnízdem. Výstupy ve formě aktivního 3D modelu byly použity nejen pro konzultaci s investory, ale také s feng-šuej konzultantkou, která v době návrhu nemohla místo navštívit. Díky 3D modelu to však nebyl problém. Skrze něj si dokázala souvislosti okolí pozemku, které do konceptu feng-šuej řešení vstupují, lépe představit. Hrubý 3D model potom sloužil jako podklad pro ruční skicování a črtání. Výsledky tohoto procesu byly poté zanášeny zpět do 3D modelu, který poté sloužil jako podklad pro zpracování vizualizací.


Program Allplan umožňuje vytvářet 3D modely projektů kontinuálně s 2D projektovou dokumentací ve formě půdorysů, řezů, technických výkresů atd. Vytvoření podrobného modelu v samotném počátku tak ve výsledku šetří práci v dalších fázích projektu i výstavby.
- Autoři: Irena Truhlářová, Martin Valášek
- Ateliér: ARCHCON atelier, s. r. o.
- Spolupráce: Tereza Svobodová
- Země: Česká republika
- Realizace: 2020