Kompletně prefabrikovaný hotel stojí uprostřed borovicového háje na severu Ruska
Venkovský hotel v severní části Ruska leží na břehu jezera Ladoga, 120 kilometrů od Petrohradu. Architekti z ateliéru Rhizome Group navrhli kompletně prefabrikovaný komplex na břehu jezera uprostřed borovicového háje. Hotelový areál tvoří dvoupatrové podlouhlé bloky, přičemž každý v modulů v sobě ukrývá jedno apartmá. Využití modulární technologie maximálně přispělo ke snížení dopadu stavebních prací na okolní prostředí.
EARCH.CZ , 14. 9. 2018
Hotel Tochka na Karte (ruské označení pro „bod na mapě“) se nachází dvě hodiny jízdy od Petrohradu, u hranic s Karelskou republikou. Vzhledem k velkému počtu historických památek a zdejší nedotčené přírodě slouží lokalita jako oblíbená turistická destinace. Z přírodních krás těží také vloni postavený hotelový komplex, jehož apartmány mají kompletně prosklenou jednu ze stěn. Hosté si tak mohou vychutnat kontakt s přírodou i při odpočinku uvnitř svého pokoje.
Více k tématu
Návrh ateliéru Rhizome Group vychází z kontextu severské přírody v místech, kde řeka Vuoksi vtéká do jezera Ladoga. Díky modulární technologii a členění bloků do dvou pater mohly být borovice ušetřeny před kácením. Místní kontext respektuje rovněž výběr materiálů, fasáda je obložená dřevem s detaily z tmavého kovu. Architekti tak chtěli zdůraznit roli přírody a navíc stavebním zásahem nenarušit ráz okolní krajiny. Celý rekreační areál je vyrobený z předem sestrojených modulů, stačilo je jen napojit na sítě a rozmístit nábytek.
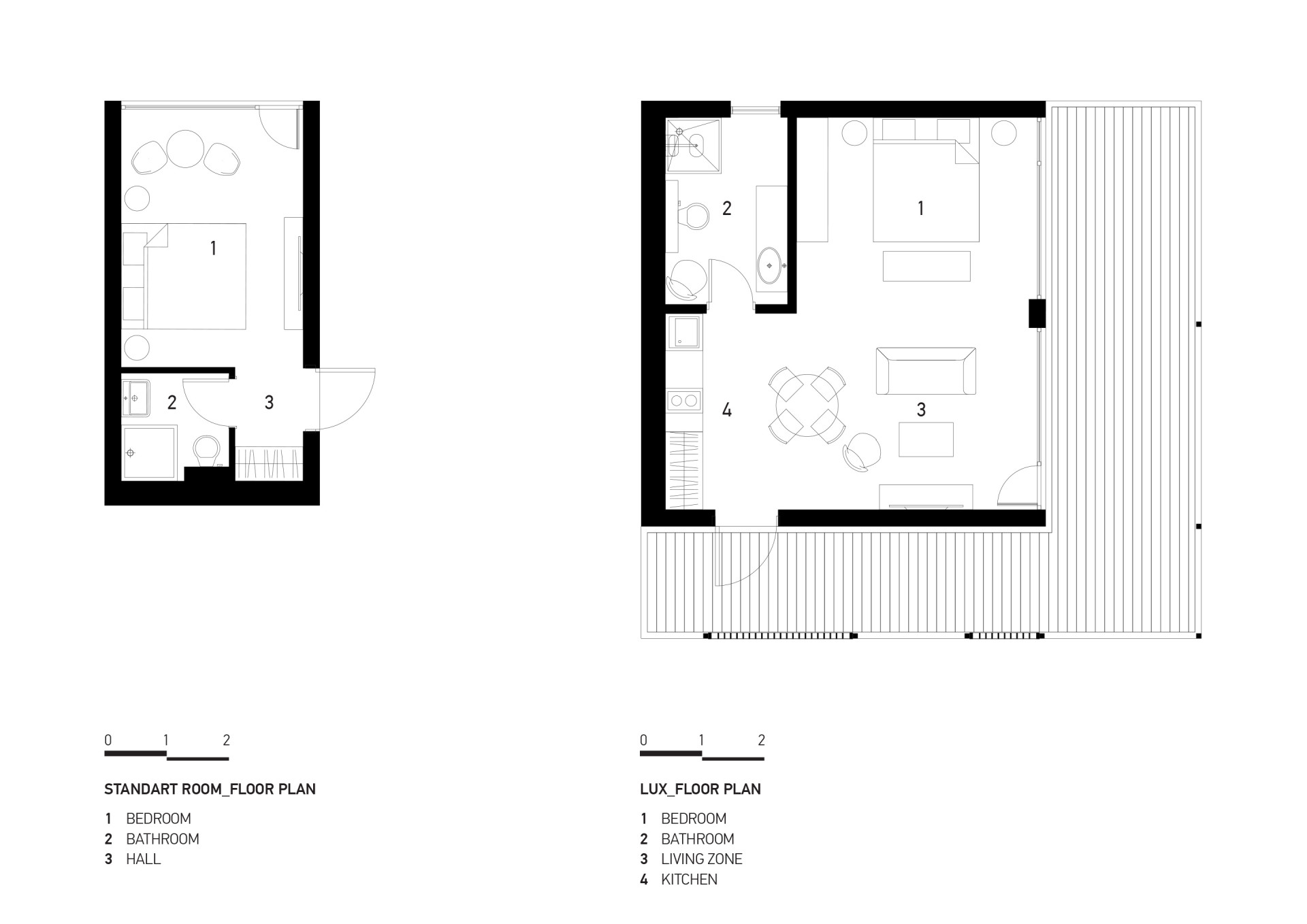
Hotel se skládá ze tří hlavních bloků – 32 standardních pokojů, několika samostatných apartmánů a budovy s recepcí. Jeden standardní pokoj nabízí zhruba 18 metrů čtverečních užitné plochy, přičemž hlavní lákadlo představuje výhled z prosvětlených buněk. Navštěvníkům se přímo při pohledu z postele rozprostírá živý obraz přilehlého jezera obklopeného stromy.
- Ateliér: Rhizome Group
- Země: Bělorusko
- Město: Priozersk
- Realizace: 2017
- Užitná plocha: 1 500.00m2


