Postavit dům za pět dní. Hotel od německých VON M sestává z dřevěných modulů
Pro architekty ze stuttgartského studia VON M představuje udržitelnost jeden z nejdůležitějších faktorů jejich práce. Podle Matthiase Siegerta, jednoho ze zakladatelů studia, se dobrá architektura pozná podle toho, že vydrží dlouho. Udržitelnost tedy nutně nespočívá pouze v použití přírodních a lokálních materiálů, ale také v trvalosti stavby a možnosti jejího dlouhodobého (a opakovaného) využívání. Z toho důvodu zvolili architekti pro konstrukci hotelu v německém Ludwigsburgu modulární systém z dřevěných buněk, který umožnil rychlou a efektivní výstavbu. Moduly lze totiž lehce smontovat a následně i demontovat, takže v případě potřeby mohou najít nové využití na jiném místě.
Gabriela Sládečková , 25. 4. 2023
DŘEVĚNÉ buňky
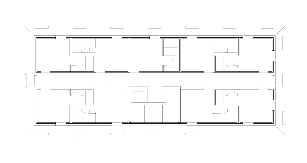
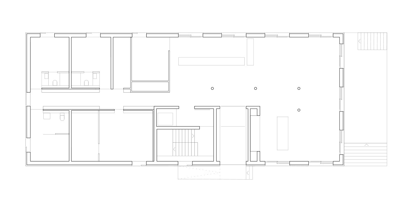
Hotel Bauhofstrasse vyrostl v roce 2019 v Ludwigsburgu, německém okresním městě zhruba dvanáct kilometrů severně od Stuttgartu. Betonový suterén a přízemí fungují jako podstavec, na kterém stojí čtyřpatrová hmota domu, pro kterou architekti využili modulární systém v podobě dřevěných buněk. Jednotlivé buňky byly vyrobeny v sousedním Rakousku jako prefabrikované moduly z vrstveného dřeva. Samotná instalace modulů proběhla po jejich transportu na místo velmi rychle – trvala pouhých pět dní.
Více k tématu

EXTERIÉR VS INTERIÉR
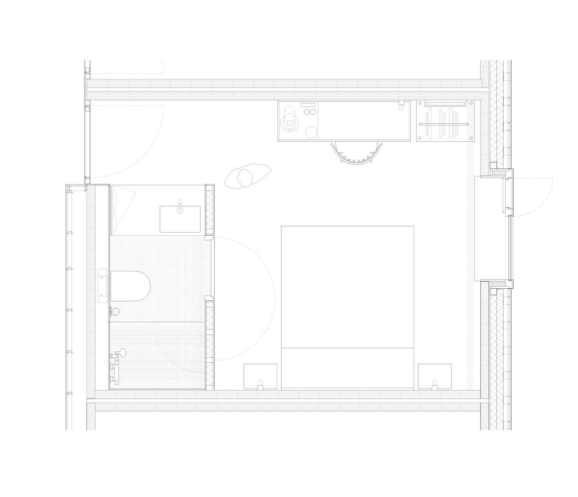
Kolemjdoucí by jen těžko poznal, že se jedná o stavbu modulárního charakteru, natož pak ze dřeva. Fasádu domu tvoří jednolitý bílý plášť šindelí z vláknitého cementu, díky které nelze rozlišit, kde jeden modul začíná a další končí. Přesně opačně už je tomu v interiéru, kde už autoři naplno přiznali použité materiály. Povrchy pokojů tak sestávají výhradně ze dřeva z rakouského Vorarlbergu. Přízemní bar, mobiliář i parkety pak vyrobili místní řemeslníci z jasanového dřeva. V neupravené podobě zůstalo také betonové schodiště ztužující celou konstrukci domu.

Stuttgartské studio VON M získalo za projekt modulárního hotelu několik nominací na různé ceny (DAM Preis 2021, Deutscher Fassadenpreis 2020) a zařadilo se také mezi finalisty soutěže AIT Award 2020. Autoři svým projektem ukazují jednu z možností, jak přistoupit k navrhování kvalitní architektury, která je zároveň šetrná k životnímu prostředí.


- Ateliér: VON M
- Země: Německo
- Město: Ludwigsburg
- Datum projektu: 2016
- Realizace: 2019