Malá a úsporná dřevostavba sází na provázání s ovocným sadem
Dřevostavba rodinného domu na Pardubicku se snaží být k životnímu prostředí ohleduplná i bez složitých technologií. Sázka padla na kvalitní konstrukční řešení a co nejefektivnější využití prostoru.
Adéla Vaculíková , 3. 2. 2023
Rodinný dům obci Ostřešany blízko Pardubic definuje především dřevo – a to jak navenek, tak zevnitř. „S ohledem na minimální uhlíkovou stopu je dům navržen jako dřevostavba v systému two-by-four s dřevovláknitou tepelnou izolací,“ objasňuje studio Med Pavlík architekti konstrukční řešení domu. V exteriéru je pak dům opláštěn dřevěnými laťkami, které ve stejném rastru přechází i na sedlovou střechu.
Více k tématu
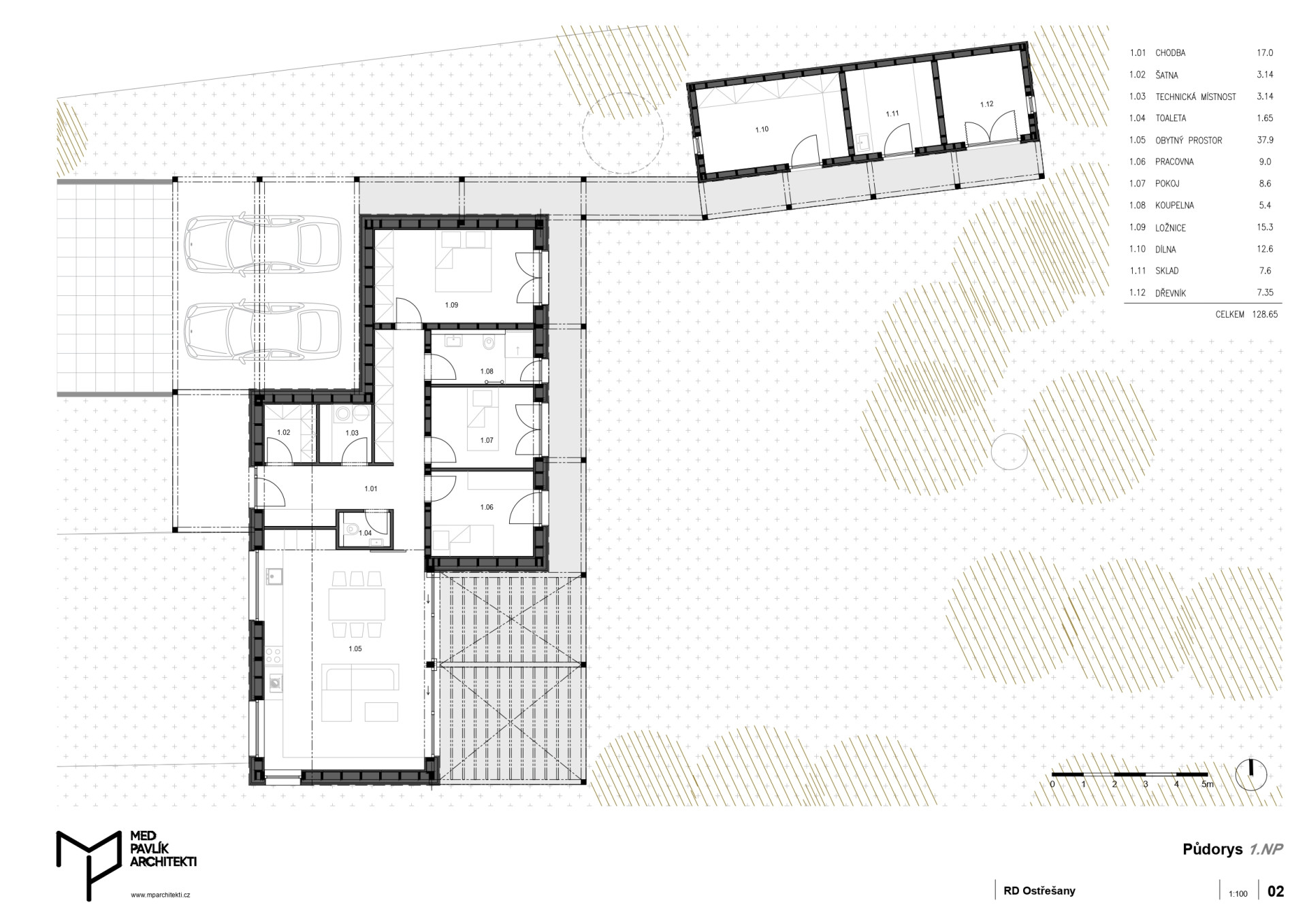
Dřevostavbu utváří dvě podlouhlé a vzájemně se pronikající hmoty. Jedna je určená především hlavnímu obytnému prostoru obsahujícímu obývací pokoj, kuchyň a jídelnu. Druhé křídlo vyplňuje ložnice, menší pokoj a pracovna. „Jejich vzájemný průnik pak vytváří vstup do domu, komunikační uzel. Důležitost obytného prostoru je zvýrazněna vysunutím této hmoty z rastru a užitím sedlové střechy s mírně vyoseným hřebenem,“ popisují architekti. „Dům je tak malý, jak jen to bylo možné. Neobsahuje nadbytečné prostory,“ dodávají.

Přirozeným pokračováním obývacího pokoje je venkovní terasa krytá dřevěnou pergolou. Její konstrukce, která v budoucnosti může porůst zelení, se táhne dál a vizuálně propojuje rodinný dům se samostatně stojícím hospodářským objektem.

Zatímco je konstrukce domu zvenčí opláštěná latěmi, zevnitř ji kryjí dřevěné a sádrovláknité biodesky. Vedle použití udržitelných materiálů architekti i investoři dbali také na to, aby byl i chod domu co možná nejšetrnější k životnímu prostředí. „Šikmá střecha je pro zmírnění přehřívání navržena jako dvou plášťová. Díky pečlivému řešení stavebních konstrukcí a minimalizaci velikosti domu je potřeba dodávané energie zanedbatelná a splnilo se přání investorů uskromnit své potřeby namísto investování do drahých technologií a tím přispět k ochraně životního prostředí,“ vysvětlují architekti.
- Ateliér: Med Pavlík architekti s.r.o.
- Autoři: Tomáš Med, Lukáš Pavlík, Michal Bílek
- Země: Česká republika
- Město: Pardubice
- Realizace: 2021