Mladí italští architekti postavili za dva týdny malou stavbu v Apeninách určenou k rozjímání a meditaci
Foto: Anna Positano, Gaia Cambiaggi | Studio Campo
1/25
Mladí italští architekti postavili za dva týdny malou stavbu v Apeninách určenou k rozjímání a meditaci
Foto: Anna Positano, Gaia Cambiaggi | Studio Campo
2/25
Mladí italští architekti postavili za dva týdny malou stavbu v Apeninách určenou k rozjímání a meditaci
Foto: Anna Positano, Gaia Cambiaggi | Studio Campo
3/25
Mladí italští architekti postavili za dva týdny malou stavbu v Apeninách určenou k rozjímání a meditaci
Foto: Anna Positano, Gaia Cambiaggi | Studio Campo
4/25
Mladí italští architekti postavili za dva týdny malou stavbu v Apeninách určenou k rozjímání a meditaci
Foto: Anna Positano, Gaia Cambiaggi | Studio Campo
5/25
Mladí italští architekti postavili za dva týdny malou stavbu v Apeninách určenou k rozjímání a meditaci
Foto: Anna Positano, Gaia Cambiaggi | Studio Campo
6/25
Mladí italští architekti postavili za dva týdny malou stavbu v Apeninách určenou k rozjímání a meditaci
Foto: Anna Positano, Gaia Cambiaggi | Studio Campo
7/25
Mladí italští architekti postavili za dva týdny malou stavbu v Apeninách určenou k rozjímání a meditaci
Foto: Anna Positano, Gaia Cambiaggi | Studio Campo
8/25
Mladí italští architekti postavili za dva týdny malou stavbu v Apeninách určenou k rozjímání a meditaci
Foto: Anna Positano, Gaia Cambiaggi | Studio Campo
9/25
Mladí italští architekti postavili za dva týdny malou stavbu v Apeninách určenou k rozjímání a meditaci
Foto: Anna Positano, Gaia Cambiaggi | Studio Campo
10/25
Mladí italští architekti postavili za dva týdny malou stavbu v Apeninách určenou k rozjímání a meditaci
Foto: Anna Positano, Gaia Cambiaggi | Studio Campo
11/25
Mladí italští architekti postavili za dva týdny malou stavbu v Apeninách určenou k rozjímání a meditaci
Foto: Anna Positano, Gaia Cambiaggi | Studio Campo
12/25
Mladí italští architekti postavili za dva týdny malou stavbu v Apeninách určenou k rozjímání a meditaci
Foto: Anna Positano, Gaia Cambiaggi | Studio Campo
13/25
Mladí italští architekti postavili za dva týdny malou stavbu v Apeninách určenou k rozjímání a meditaci
Foto: Anna Positano, Gaia Cambiaggi | Studio Campo
14/25
Mladí italští architekti postavili za dva týdny malou stavbu v Apeninách určenou k rozjímání a meditaci
Foto: Anna Positano, Gaia Cambiaggi | Studio Campo
15/25
Mladí italští architekti postavili za dva týdny malou stavbu v Apeninách určenou k rozjímání a meditaci
Foto: Anna Positano, Gaia Cambiaggi | Studio Campo
16/25
Mladí italští architekti postavili za dva týdny malou stavbu v Apeninách určenou k rozjímání a meditaci
Foto: Anna Positano, Gaia Cambiaggi | Studio Campo
17/25
Mladí italští architekti postavili za dva týdny malou stavbu v Apeninách určenou k rozjímání a meditaci
Foto: Anna Positano, Gaia Cambiaggi | Studio Campo
18/25
Mladí italští architekti postavili za dva týdny malou stavbu v Apeninách určenou k rozjímání a meditaci
Foto: Anna Positano, Gaia Cambiaggi | Studio Campo
19/25
Mladí italští architekti postavili za dva týdny malou stavbu v Apeninách určenou k rozjímání a meditaci
Foto: Llabb
20/25
Mladí italští architekti postavili za dva týdny malou stavbu v Apeninách určenou k rozjímání a meditaci
Foto: Llabb
21/25
Mladí italští architekti postavili za dva týdny malou stavbu v Apeninách určenou k rozjímání a meditaci
Foto: Llabb
22/25
Mladí italští architekti postavili za dva týdny malou stavbu v Apeninách určenou k rozjímání a meditaci
Foto: Llabb
23/25
Mladí italští architekti postavili za dva týdny malou stavbu v Apeninách určenou k rozjímání a meditaci
Foto: Llabb
24/25
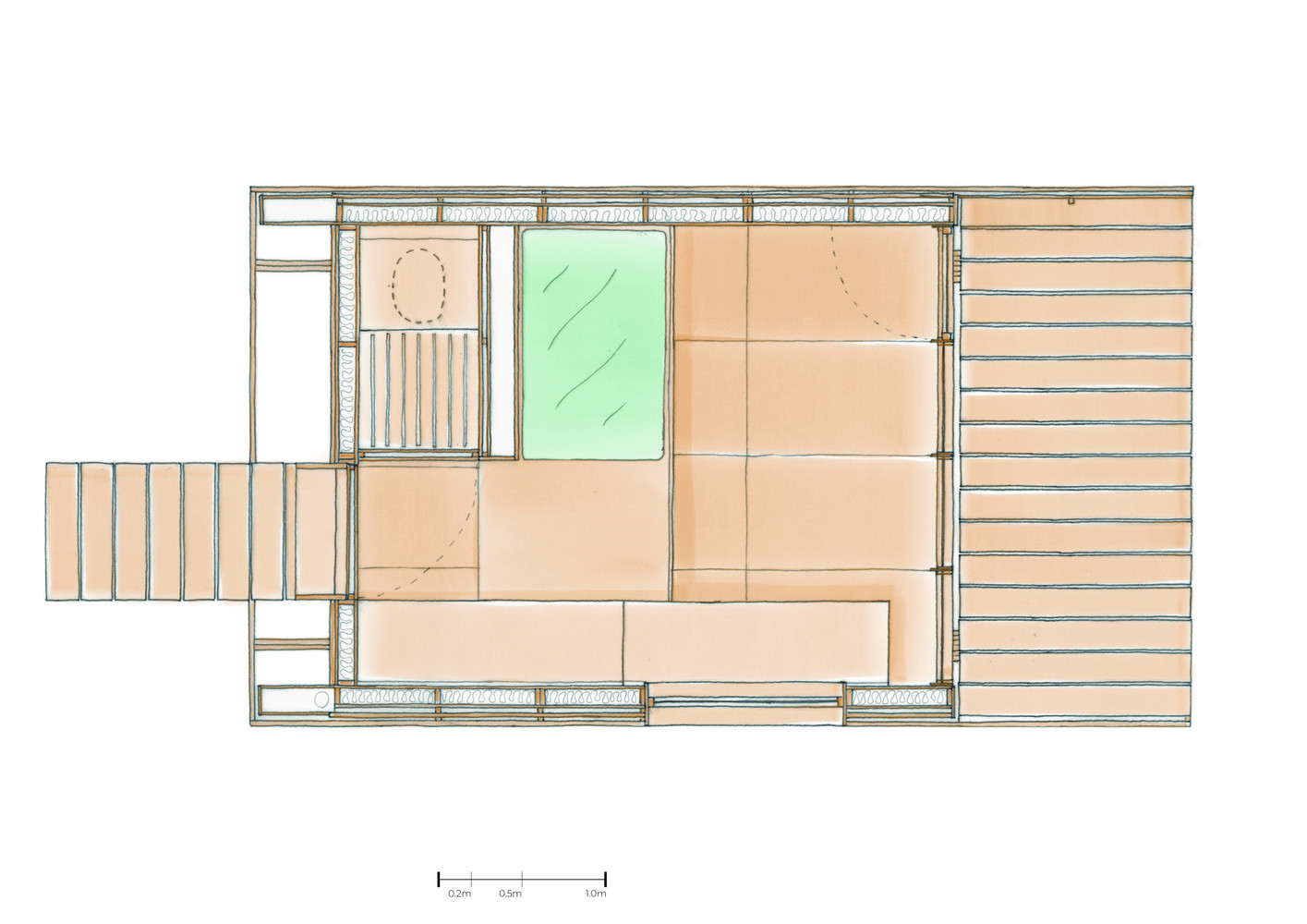
Mladí italští architekti postavili za dva týdny malou stavbu v Apeninách určenou k rozjímání a meditaci
Foto: Llabb
25/25