
Architektura
/
interiér
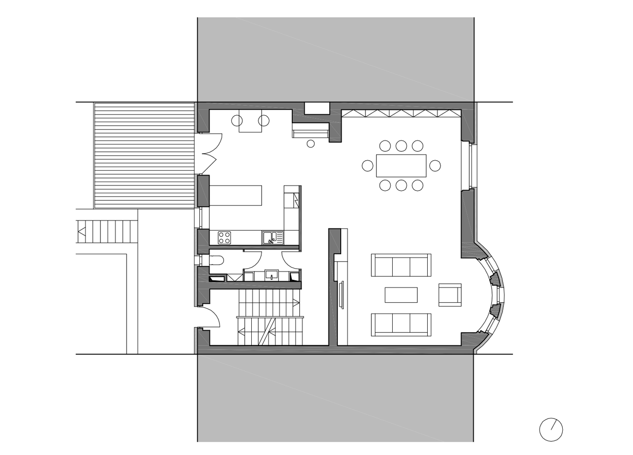
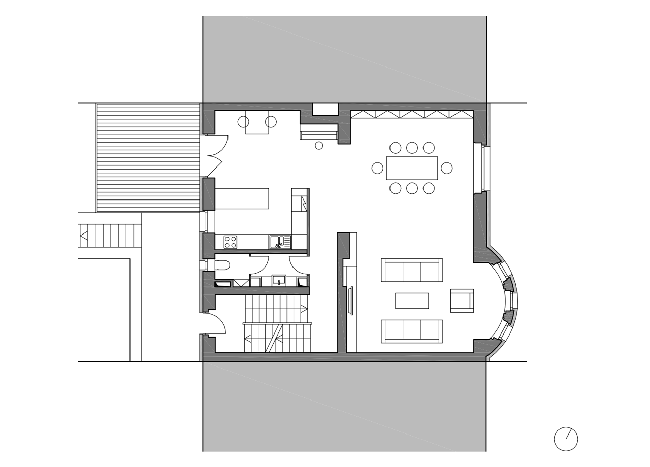
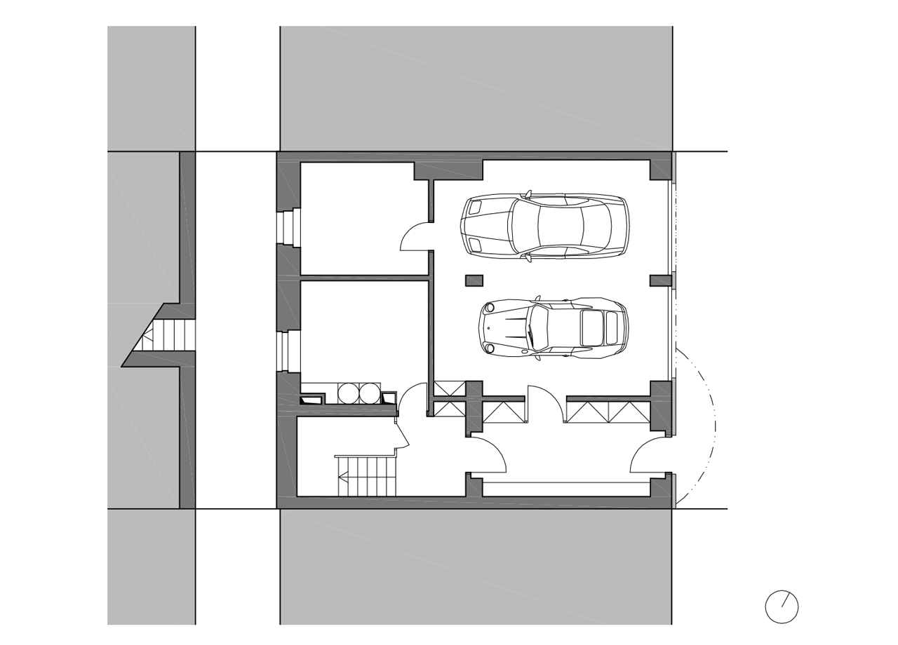
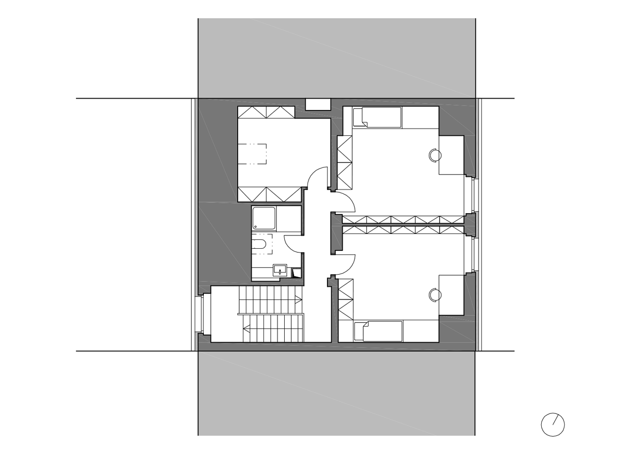
Moderní interiér v klasickém kabátu
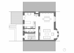
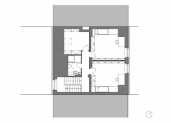
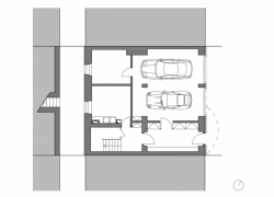
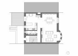
To, že si tuhle prvorepublikovou vilku vzali do parády Stempel & Tesar architekti zvenku ani nepoznáte. Když vás ale pustí za dveře, poznáte, že tahle vilka dnes ukrývá současnou dispozici a moderní interiér, který si ale uchoval úctu k prvorepublikové tradici.
stempel & tesar architekti , 1. 8. 2016
Více k tématu
- Autoři: Ján Stempel, Jan Jakub Tesař
- Země: Česká republika
- Město: Praha 6 - Dejvice
- Ulice, číslo: Fetrovská 890/35
- PSČ: 160 00
- Datum projektu: 2011
- Realizace: 2014
- Užitná plocha: 303.00m2
- Zastavěná plocha: 113.00m2
- Plocha pozemku: 215.00m2