Můj dům, můj beton – část 3
Kamil Mrva tentokrát nemusel daleko ze svého rajónu – severomoravský Nový Jičín má „přes kopec“. Vedle architektonického návrhu betonové vily dokázala zaujmout osoba samotného investora – je to typ schopného a technicky vzdělaného člověka, který si chce stavbu vyzkoušet sám, ale zároveň si uvědomuje, že na odborné záležitosti je dobré si pozvat profesionály. To je snad sen každého architekta, projektanta, stavaře a betonáře… Rozhovor s ním najdete v druhé polovině článku.
Kamil Mrva , 4. 7. 2016
Nadšený a schopný investor
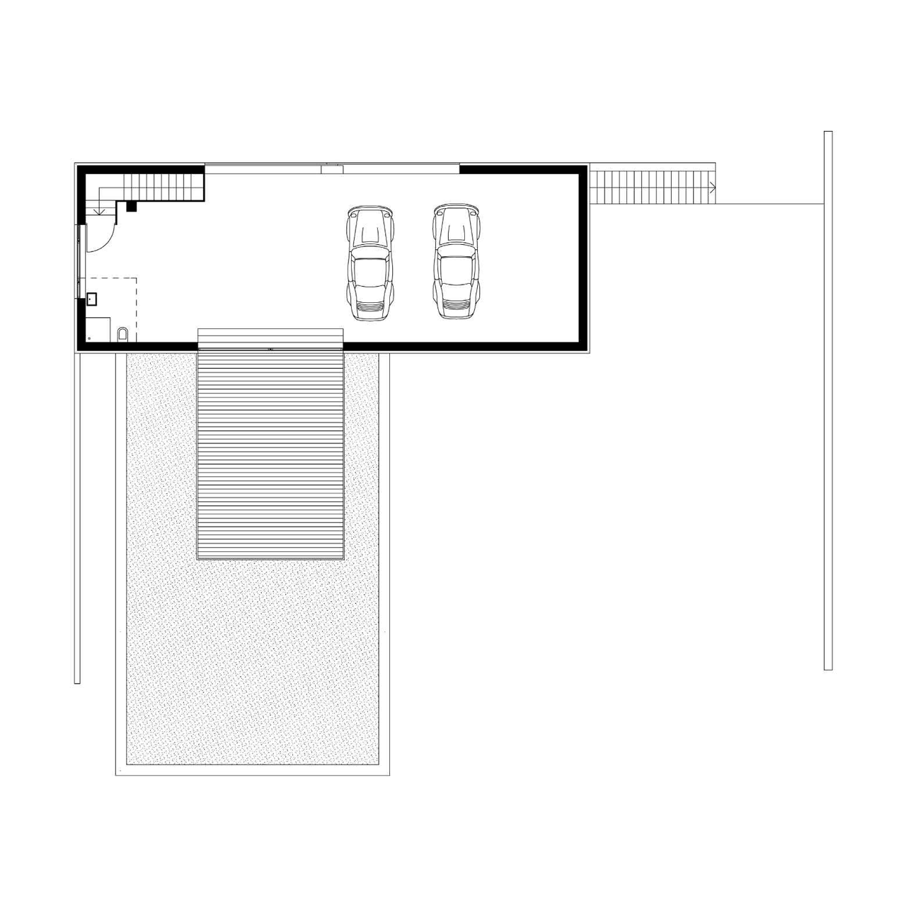
Klient, který se již delší dobu zajímá o architekturu a kterého oslovily někter é z našich realizací v blízkém okolí, zakoupil mírně se svažující parcelu uprostřed nově vznikající individuální výstavby na okraji Nového Jičína. Řekl: „Rád bych betonový dům, nenáročný na údržbu…“ Byla radost spolupracovat s takovým člověkem – je technicky velice vyzrálý a hodně věcí si na stavbě zajišťoval sám. Jeho záměrem bylo realizovat rodinný dům s velkou garáží–dílnou, který by byl hmotově čistý a jednoduchý, prostorově velkorysý, poskytoval by rodině dostatečné soukromí a bylo by jej možno realizovat v maximální možné míře svépomocí.
Stavba svépomocí v tomto případě nabyla poněkud jiného významu, neboť se nejednalo jen o obvyklou snahu ušetřit vedoucí k úsporným a často ne zrovna ideálním řešením. Naopak, klient přistupoval ke stavbě s nadšením a díky jeho manuální zručnosti si chtěl řadu postupů a technologií vlastnoručně vyzkoušet. Proto jsme jej na začátku naší spolupráce našli v pronajatém velkém bagru, se kterým celý den bagroval zeminu, aby věděl, kolik hodin zabere celou parcelu připravit pro založení stavby. Následně jsme s údivem pozorovali, jak buduje složité prkenné bednění pro pohledové železobetonové konstrukce, nebo obdivovali jím realizované detaily posuvné terasy, kterou se v zimě zakrývá bazén.
Architektonické řešení
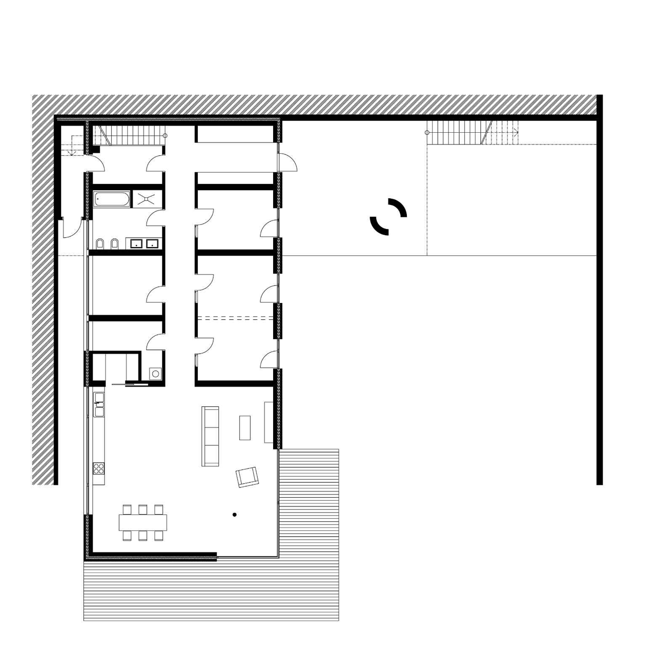
Svažitá parcela se nachází v lokalitě nového satelitu města Nový Jičín s různorodými domky. Naším záměrem bylo se od těchto domečků oprostit a pro zajištění soukromí a pohledové izolace vůči okolí jsme dům navrhli do terénního zářezu. „Zakopali” jsme tak obytnou část o 3 m níže než vede vstupní komunikace, vytvořili atrium na bydlení s výhledem na hrad Starý Jičín a také na panorama města Nový Jičín. Vstupní objekt je pouze garáží a dílnou majitele, prostory pro bydlení rodiny se nachází v přízemí. Podobný princip je u slavné vily Tugendhat v Brně (vstupní přízemí – garáž, ložnice, po schodech se jde dolů do obytné části a terasy…).
Materiály a konstrukce
Nosná konstrukce je částečně železobetonová a částečně vyzdívaná z keramických tvárnic. Klient si přál ponechat železobetonové konstrukce v maximální možné míře jako pohledové v co nejsurovějším stavu, proto je obvodová stěna realizována jako sendvič s vnější pohledovou betonovou vrstvou, tepelnou izolací uprostřed a vnitřní vrstvou v části domu z pohledového betonu a v části z keramických tvárnic s omítkou. Pohledový beton je výrazným prvkem i v interiéru – např. v obývací části, kuchyni a jídelně.
Rádi pracujeme s přírodními materiály, proto jsme navrhli bednění z desek tak, aby při odbednění byla vidět struktura (léta) dřeva.
Garáž–dílna je realizována jako montovaná ocelová konstrukce se zatepleným plechových pláštěm. Na podlaze jsou použity lité epoxidové a betonové stěrky.
Zajímavým betonovým prvkem je pod pěra vrchní části stavby – dva pilíře ve tvaru čtvrt oblouků. Mezi nimi je prostor pro venkovní sprchu, která se využívá při hraní na venkovním hřišti u domu nebo k bazénu apod.
Závěr
O tom, že se architektonický záměr a celá stavba povedla, svědčí slova majitele, pana Pořízky: „Pro mne je to ideální bydlení, protože beton je prakticky bezúdržbový. Já osobně se v něm cítím také bezpečněji, než bych se asi cítil v dnes moderních dřevoštěpkových novostavbách. Děti oceňují odolnost a ‚neušpinitelnost‘ betonových stěn a manželka může vybírat vhodné doplňky pro zútulnění. Díky konstrukčním možnostem železobetonu jsme si mohli dovolit větší otevřené prostory bez rušivých nosných a podpěrných prvků, kde se naše rodina může scházet, pracovat a díky bohatému prosklení je i v přímém kontaktu s okolní přírodou.“
Několik otázek na osvíceného investora – pana inženýra Jana Pořízku.
Jak jsme se dozvěděli od pana architekta Kamila Mrvy, máte rád beton. Byla se zvoleným materiálem pro stavbu rodinného domu ztotožněna i rodina?
Protože mne manželka již dobře poznala, ví, že můj vkus je sice trochu jiný, než mají ostatní, ale výsledek mé práce při přestavbě našeho starého bytu byl vždy uspokojivý a občas pro ni až s překvapivě dobrým výsledkem. Proto mi při návrhu nového domu důvěřovala. Musel jsem ji samozřejmě někdy déle přesvědčovat a ukazovat příklady z již realizovaných staveb a v některých věcech také zvolit uhlazenější variantu. Pohledový beton v interiéru působí zcela nenuceně, dokonale ladí s vhodně vybranými doplňky a zejména děti při hraní míčových her ocení jeho ,nezničitelnost ´. Toto by si u omítané a vymalované stěny nemohli dovolit.
Uvažoval jste, že byste si vilu postavil svépomocí?
Nějaké drobné přístavby jako třeba plot určitě ano, ale u betonových skeletů velikosti domu je to velmi obtížné. Systémy bednění jsou již sice velice chytře řešeny, ale přítomnost většího počtu lidí je při výstavbě nutná. Zpracování betonové směsi musí probíhat rychle a ve velkém množství, jaké zvládne dodat pouze betonárka. Správné uložení výztuže do bednění chce také určité technické znalosti ve čtení výkresů. Proto je lepší mít pro tuto práci firmu, která se vyzná.
Co Vás nejvíce zaujalo při betonáži, resp. nastala při vlastní výstavbě chvíle, kdy jste si řekl: „Toto bych bez profesionálních betonářů sám nezvládl?“
Jak už jsem zmínil, líbí se mi propracovaný systém bednění, kdy je možno natvarovat prakticky cokoliv, co statik pevnostně spočítá. Protože jsem sám strojař a pracuji s modely, formami a ocelovými odlitky, líbilo se mi, když se ve velice krátké době po odlití betonu a po jeho vyzrání vyloupne z bednění jako z formy již hotový kus díla, kde pohledové strany jsou už prakticky hotovy. Člověk má pocit, že se dům staví velice rychle a při zachování pevnosti působí elegantně a štíhle. Bez profesionálních betonářů bych určitě nezvládl dodávat takové množství betonu, jaké je potřeba při stavbě o velikosti domu. Přesné složení betonu dle přání statika musí také zajistit betonárka, nehledě na alchymii nutných přísad pro betonování při ne zrovna optimálních teplotách. Také jeho rychlá doprava do vyšších nebo špatně přístupných míst pomocí pumpy nebo dopravníků je nutná. Betonový odlitek se prostě musí zpracovat v krátké době, aby jeho struktura a vzhled neutrpěli.
Změnil Vám přímý kontakt s prací s betonem nějakým způsobem pohled na něj?
Prakticky jsem se přesvědčil, jak dobrý je to materiál. Pokud nepodceníte přípravu, obdržíte kvalitní výsledek. Kdybych měl stavět znovu, volil bych stejně.
Redakce časopisu BETON TKS děkuje všem za spolupráci a přeje, ať dům dlouho slouží ke spokojenosti celé rodiny.
- Autoři: Kamil Mrva, Lenka Krhovjáková, Jaroslav Holub
- Ateliér: Kamil Mrva Architects
- Země: Česká republika
- Realizace: 2013
- Město: Nový Jičín
- Datum projektu: 2011
- Realizace: 2013
- Materiál: beton
- Poznámka: Foto © Studio Toast