 
					
                    				Na svažitém pozemku v Bratislavě navrhl architekt Sebastian Nagy rodinný dům s atriem
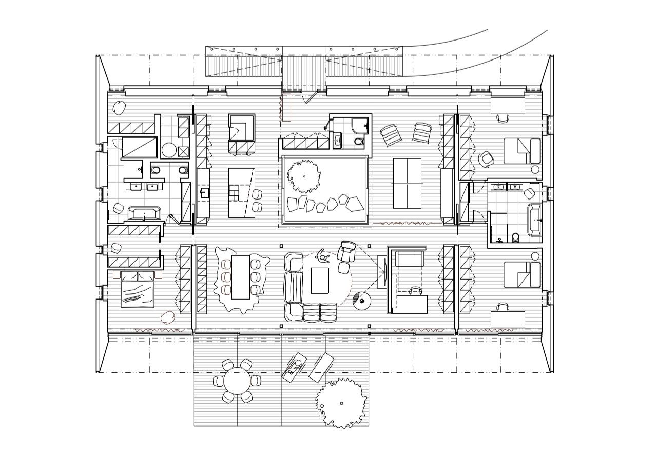
Slovenský architekt Sebastian Nagy navrhl geometricky jednoduchou hmotu jednopodlažního rodinného domu, který se nachází na místě bývalých viničních svahů v Bratislavě. Z lokality pozemku architekt vytěžil maximum - západní stěnu navrhl jako celoprosklenou a nabídl tak obyvatelům domu panoramatický výhled na slovenskou metropoli i okolní krajinu. Do centra dispozice navíc Nagy umístil skromné atrium, které přispívá k celkové prosvětlenosti a vzdušnosti interiéru.
sebastian nagy architects , 24. 6. 2019
- Autoři: Sebastian Nagy
- Ateliér: sebastian nagy architects
- Země: Slovensko
- Město: Bratislava
- Ulice, číslo: Srnčia
- Realizace: 2013
- Užitná plocha: 290.00m2
- Plocha pozemku: 1 500.00m2
 
                             
                             
                             
                             
                             
                                 
            
         
            
         
            
         
            
         
            
         
            
         
            
         
            
         
            
         
                             
                             
                             
                             
                             
                             
                             
                             
                             
                             
                             
    
	 
            		 
            		 
            		 
            		 
            		 
            		 
            		 
            		 
                     
                     
                     
            		 
            		 
            		 
            		 
            		 
                     
					 
                                                                                                             
                                                         
                                                         
                                                                                                             
                                                         
                                                         
				 
				 
				 
				 
				 
				 
				 
				 
				 
				 
				 
				 
				 
				 
				 
				