
Nájemní vila jako za první republiky. Ale se sálem na cvičení a chytrými technologiemi
Celý objekt prošel nákladnou rekonstrukcí, která navazuje na původní architekturu. A v zahradě přibyla sauna a sál na cvičení.
Adéla Vaculíková , 10. 4. 2024
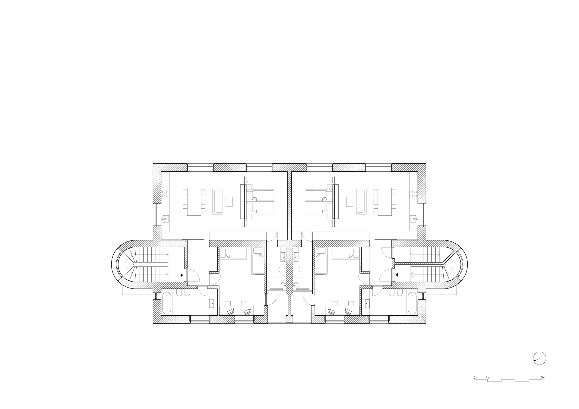
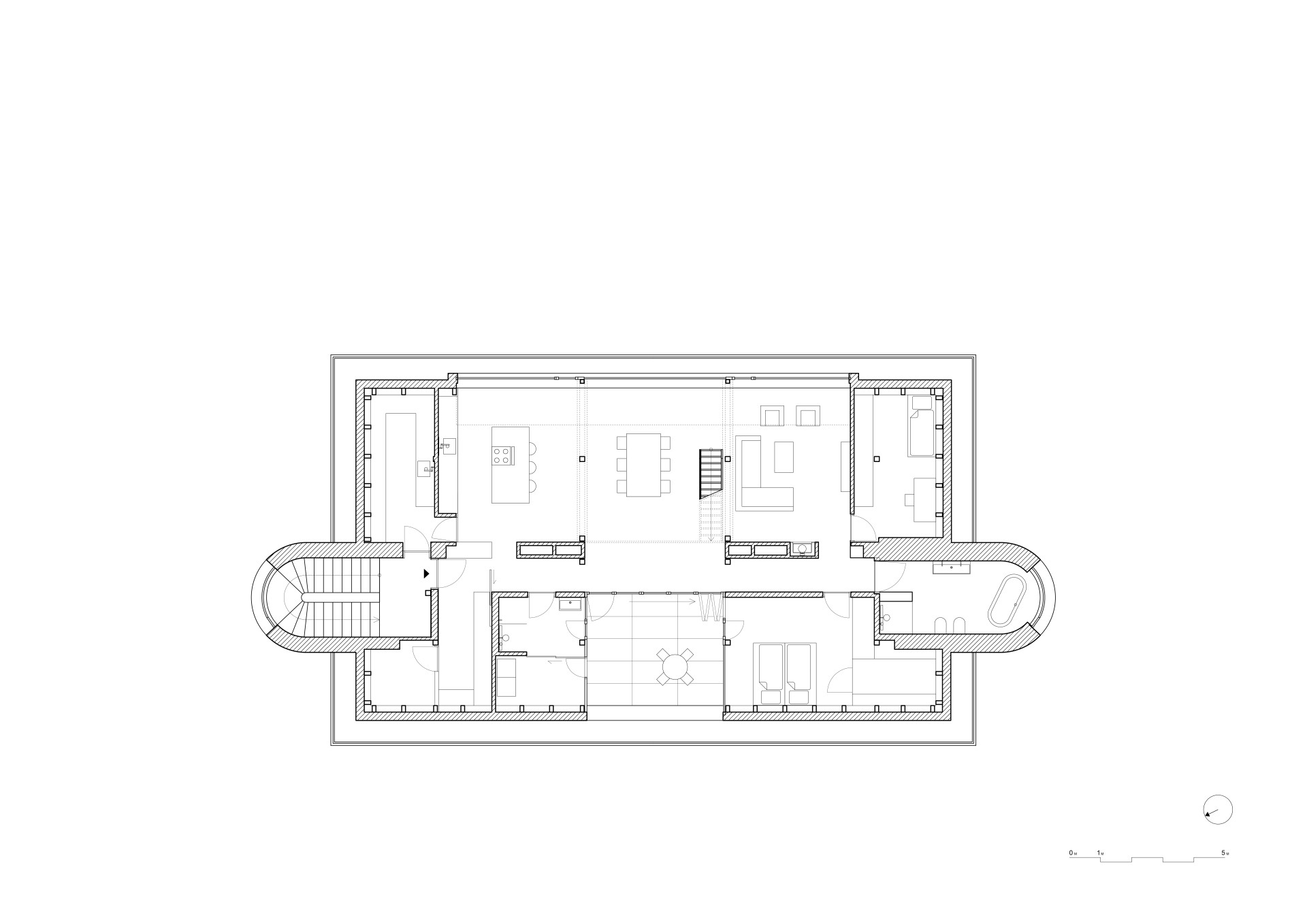
Původně tady bydleli zaměstnanci Státního zdravotního ústavu, dnes je dům soukromníků, nájemní byty jsou v něm ale stále. Je jich celkem šest, mají dispozice 4+kk a 3+kk a taky zahrady, terasy nebo lodžie. V domě bydlí i sami majitelé, konkrétně v mezonetu přímo pod valbovou střechou.
Více k tématu
Nájemní byty jsou to luxusní. Dům na Vinohradech totiž prošel nákladnou rekonstrukcí. Je vybavený systémem chytré domácnosti, má podlahové topení, stropní chlazení a tak dále. Úrovni rekonstrukce odpovídá taky výška nájmů, pod 35 000 měsíčně se zde žádný byt nepohybuje. Kromě něj zdejší obyvatelé mohou používat taky společnou zahradu nebo zahradní dům, garantované je parkování a sklepní kóje.
Rekonstrukce bytové vily začala pod vedením PAPUNDEKL ARCHITEKTI v roce 2019. Její stav byl tehdy ucházející, k úpravám se však přistoupilo komplexně. Vila byla zateplena a bíle omítnuta, byty zrekonstruovány a vybaveny vestavným nábytkem na míru. Všechny potkaly změny dispozic, takže teď odpovídají současným nárokům na bydlení. Mají třeba propojený obývací pokoj s kuchyní, jak bývá žádané.

V okolí stojí několik dalších stejných bytových vil. Byly totiž projektovány dohromady, ve 20. letech je sem pro Státní zdravotní ústav navrhl architekt Rudolf Kvěch. Vila rekonstruovaná PAPUNDEKL ARCHITEKTI se teď od svých sousedů přeci jen odlišuje. Přibyla k ní totiž nová přístavba směřující do zahrady.
K domu se hodí. Je obložená režnými cihlami stejně jako sokl vily, přístavba je jeho plynulým pokračováním. Situovány jsou do ní dva nové byty. Kapacita domu se tedy zvětšila, ne však na úkor vzhledu původní stavby, jak se u nás v jiných případech často stává. „Ctíme architekturu původního domu, k níž přidáváme soudobou vrstvu, která se do ní přirozeně začleňuje,“ říkají architekti. Nezbývá než souhlasit.

Byty v přístavbě dostaly své soukromé předzahrádky, ty o patro výše zase terasy. Plochá střecha přístavby je totiž pobytová, dá se na ni umístit posezení a rostou na ní rostliny.
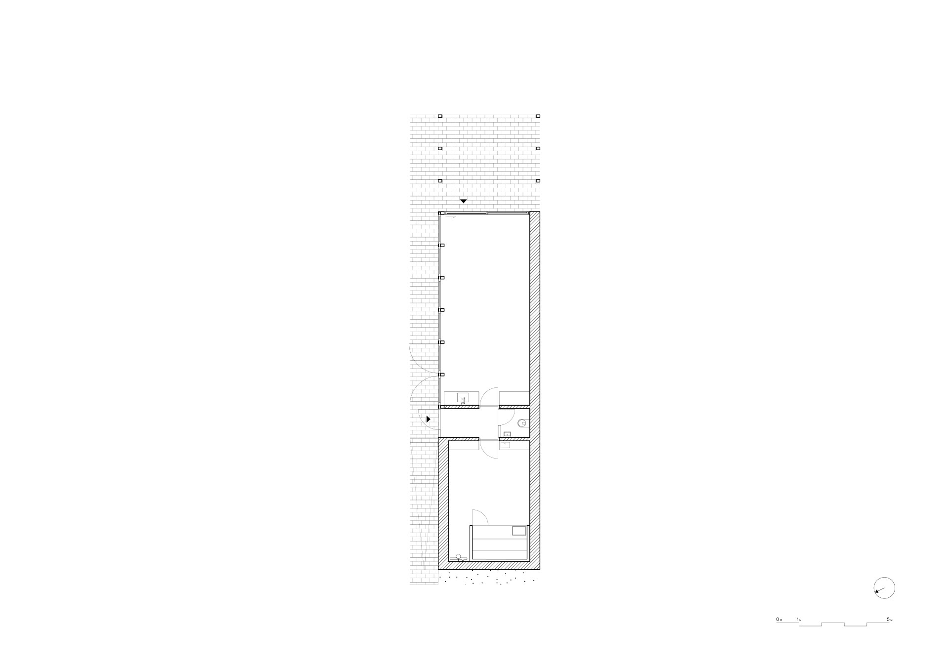
Součástí projektu byl taky zahradní dům. Architektonicky navazuje na vilu a novou přístavbu. Stejně jako ta je obložený režnými cihlami, do exteriéru se zároveň propisuje jeho konstrukce ze dřeva. Do jižní části pozemku ho architekti umístili proto, aby odclonili zbytek zahrady od ulice a dopravně poměrně frekventované silnice.

Běžně bychom v podobné zahradní stavbě předpokládali technické zázemí nebo sklad. Tady je ale náplň netradiční. Do domku se mohou nájemníci chodit saunovat a cvičit s výhledem do zahrady.
- Autoři: Jan Bárta, Šimon Bierhanzl, Marek Fischer
- Ateliér: Papundekl architekti
- Spolupráce: Elif Avcı, Barbora Novotná
- Země: Česká republika
- Město: Praha – Vinohrady
- Projekt: 2020
- Realizace: 2023
- Řešené území: 2077 m²
- Celková užitná plocha: 909 m²
- Zastavěná plocha: 492 m²
- Krajinářské úpravy: Jana Stupková
- Stavební firma: STANO PRAHA a.s.
- Fotograf: Alex Shoots Buildings