
Jak na dům po rodičích? Dostal novou terasu, velká okna a omítku v barvě mechu
Dům v Praze-Podolí nebyl po téměř šedesáti letech v dobrém stavu. Rekonstrukce zlepšila technické parametry, vše je pohodlnější a také výtvarně dotažené a krásnější. Z domu je vila.
Karolína Vránková , 19. 4. 2024
Není zelená jako zelená. Zeleně natřené domy často kritizujeme jako ukázku pokleslého stavebnictví, tohle je ale jiný případ. Na domě je ušlechtilý břízolit v barvě mechu, má hrubou texturu a ve slunci v něm září zrníčka slídy.
Celý dům prošel podobným zvýšením standardu jako omítka a stalo se z něj bydlení až luxusní. Materiály a stavební elementy z chudých dob socialismu nahradily nové a kvalitní: „Používáme ušlechtilé materiály v jejich přirozenosti, uplatňujeme jejich barvy i textury a zároveň dbáme na praktičnost a maximální pohodlí ve výtvarně dotaženém obytném prostředí,“ tak to vystihl architekt přestavby Ondřej Císler.

Terasy a další pohodlí
Majitel domu tady žil od malička. Dům jako typická socialistická „kostka“, postavená částečně svépomocí, měla také spoustu obvyklých neduhů, třeba špatné napojení na zahradu. Také technicky byl zastaralý.
Majitel tedy oslovil ateliér Aoc arhitekti, aby provedli radikální proměnu. Jedním z hlavních úkolů bylo zlepšit propojení se zahradou, velmi svažitou. V přízemí architekti propojili kuchyni s obývákem a velký obytný prostor má teď přístup na venkovní terasu, která funguje jako další venkovní místnost. Kuchyň je z nerezu, podlaha je dřevěná, přibyly také autorské stoly z tropického dřeva padouk s ocelovými podnožemi.

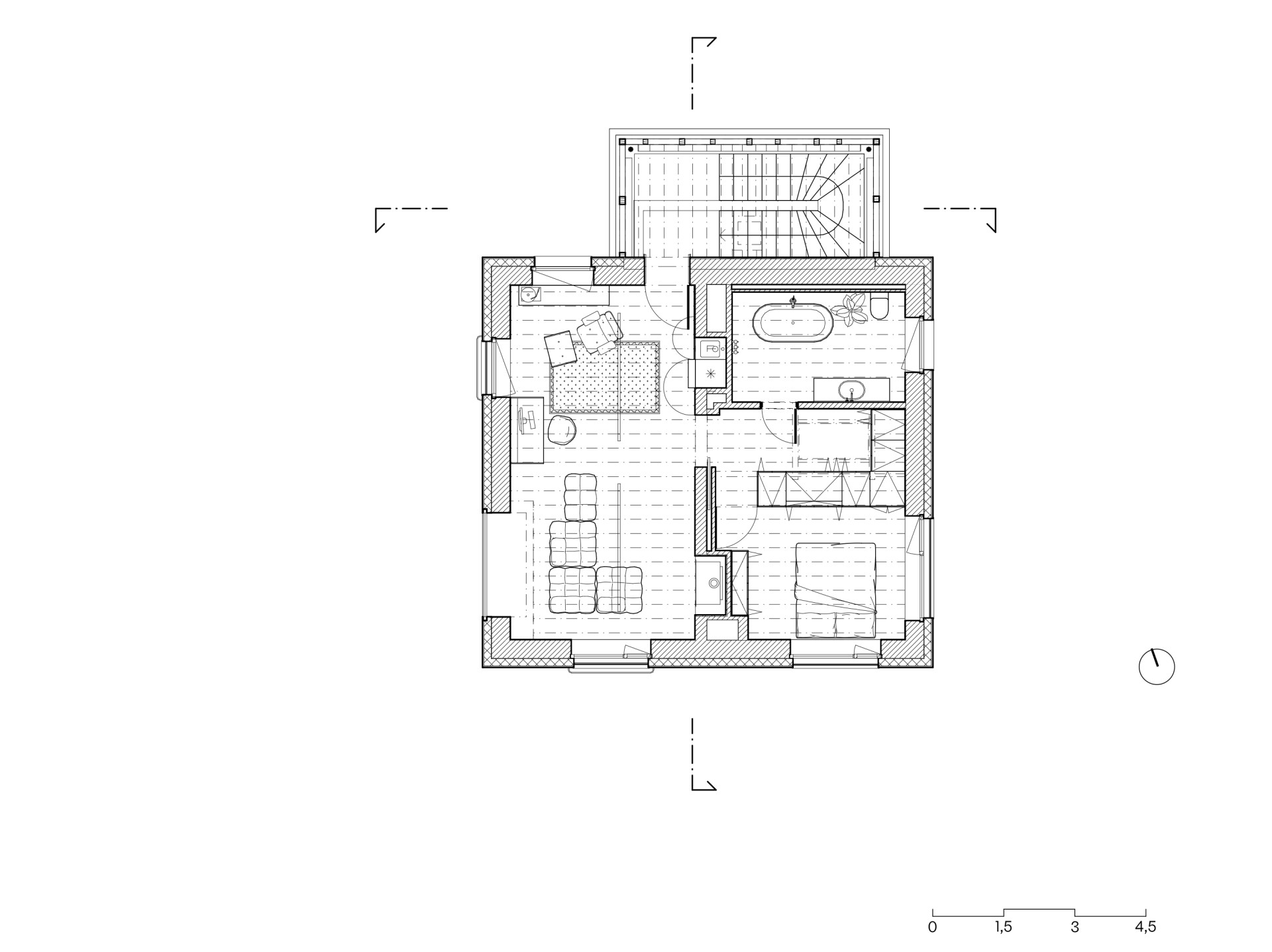
V patře je pracovna, ložnice a koupelna doplněná prostornou šatnou s vestavěným nábytkem. Pracovna má nové velké okno s výhledem na zarostlé svahy na protějším břehu Vltavy– ačkoliv to byl majitelův dětský pokoj, nikdy neměl šanci se tu tak rozhlédnout. A návštěvu může překvapit krbem a malým skrytým barem, jaké známe z prvorepublikových rezidencí.
Více k tématu
V přízemí vznikla další jednotka rovněž s terasou, určená k pronájmu. Zlepšily se také technické parametry, okna, vytápění, izolace. Vše tedy také provozně dobře funguje.
Tak jako se z periferie Podolí stalo širší centrum Prahy, je z téhle vilky po rodičích sofistikovaná, esteticky dotažená, ve všech ohledech promyšlená vila.
- Autoři: Ondřej Císler, Filip Rašek
- Ateliér: Aoc architekti
- Spolupráce: Josef Choc, Ján Vyšný, Barbora Lopraisová, Natálie Kristýnková, Emily Hillová, Jonáš Mikšovský
- Země: Česká republika
- Město: Praha
- Projekt: 2020-2022
- Realizace: 2023
- Zastavěná plocha: 303 m²
- Hrubá podlahová plocha: 206 m²
- Užitná plocha: 172 m²
- Plocha pozemku: 1206 m²
- Investor: Eduard Kauba
- Fotograf: Studio Flusser
- Návrh zahrady: Mikoláš Vavřín
- Návrh světel: Miroslav Dudek