Oživení prvorepublikové vily s respektem k původním detailům
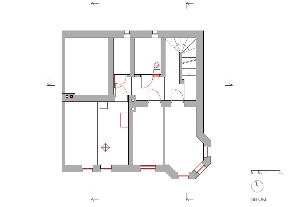
Vila ze 30. let minulého století byla v relativně dobrém technickém stavu - všechny nosné konstrukce tak zůstaly původní. Architekti Jiří Pavlíček a Jaroslav Hulín se snažili o maximální zachování původních prvků, které zajišťují nenapodobitelnou kvalitu prostoru. Stavba je podsklepena a před rekonstrukcí byla rozdělena na dva byty s nevyužívanou půdou. Budova se nachází v památkové zóně Českého Krumlova.
Tomáš Kodet , 11. 1. 2023
Jednou z vizí architektů bylo zachování co největšího množství původních detailů, vyčistit prostor od přestaveb a vhodně ho doplnit. Rekonstrukce se týkala především interiérů, protože venkovní fasáda byla zachovalá a nebylo ji tedy nutné opravovat. Genius loci třicátých let tak mohl zůstat nezměněn.
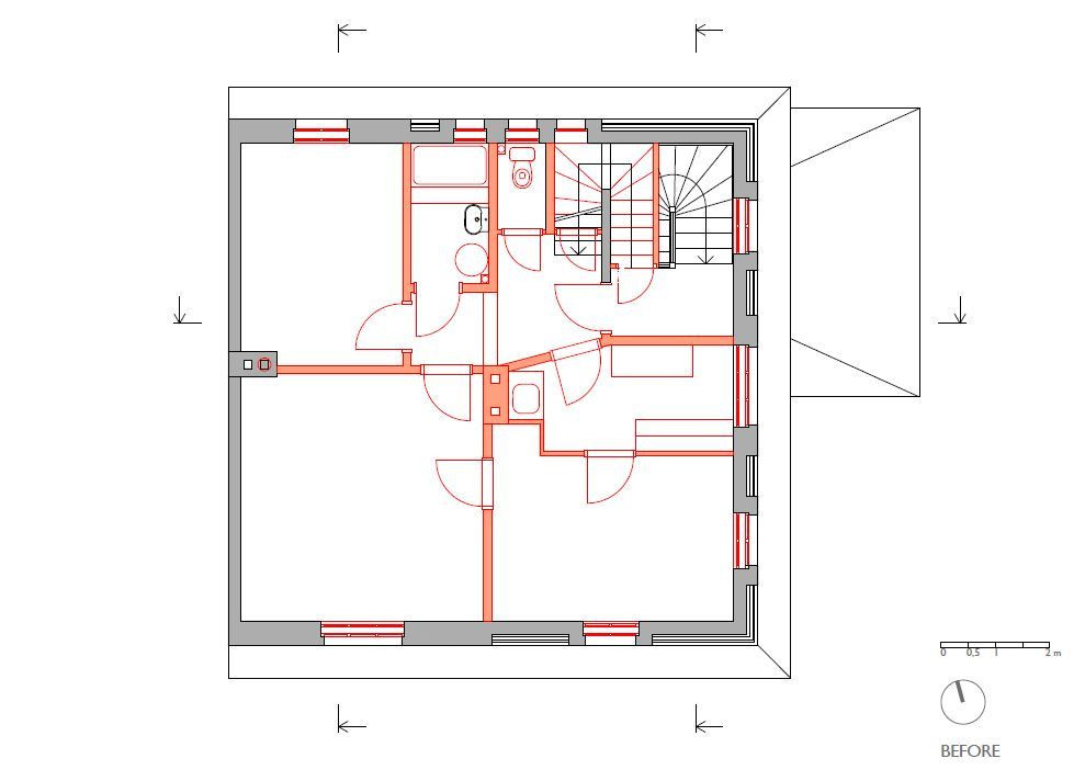
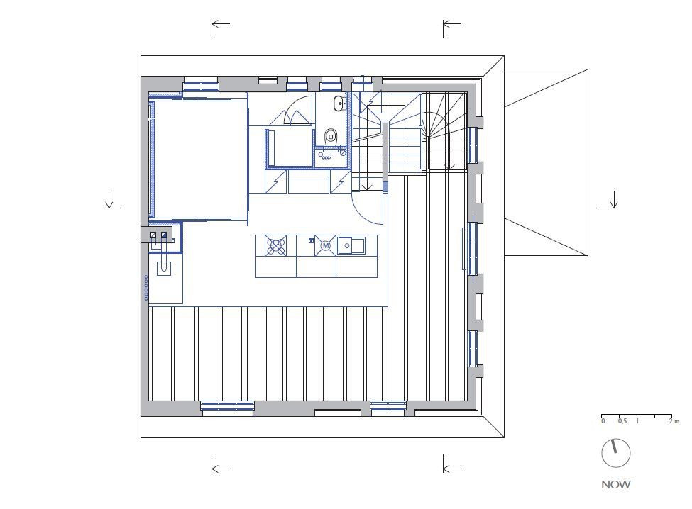
Přízemí se téměř nezměnilo, všechny zdi byly nosné, a tudíž se s nimi nehýbalo. Dveře zůstaly původní a schodiště do suterénu i prvního patra se pouze zrenovovalo. U schodiště do třetího patra to už ale bohužel možné nebylo, a tak se přistoupilo k jeho výměně - umístění však zůstalo stejné. V patře byly všechny stěny – částečně nosné příčky – odstraněny a celý prostor se otevřel pro obývací pokoj, který se probouráním do půdních prostor rozšířil i vertikálně. Těžko využitelné plochy pod šikmou střechou se staly součástí obývacího prostoru a dodaly mu patřičný význam. Do dříve nevyužívaného podkroví se po přestavbě vybudoval pokoj pro hosty a otevřená pracovna.

Ačkoli se může zdát, že umístit ložnici do přízemí a obývací pokoj do patra není vhodné řešení, bylo pro to několik důvodů. První důvod představuje fakt, že přízemí je rozčleněno nosnými stěnami, což by neumožnilo vytvoření velkorysého obytného prostoru. Druhý důvod je ekonomický, neboť ložnice se vytápějí na výrazně nižší teplotu a fasáda domu nemůže být zateplena, tudíž by docházelo ke značným tepelným ztrátám. Mansardovou střechu ale odizolujete velice snadno a úspory na vytápění významně klesnou. Třetím plusem neplusem je vyvýšené přízemí. I kdyby se ložnice nacházely v patře, nešlo by vytvořit přímý kontakt mezi obývacím prostorem a zahradou.

„Byli jsme se v domě několikrát podívat a dlouze jsme s klienty mluvili o jejich prioritách (každý klient chtěl kuchyni, ale jeden jí má jako šperk a druhý v ní intenzivně vaří...). Zásadní bylo rozhodnutí, zda umístit obývací pokoj do druhého patra. Při všech uvedených argumentech se to nyní jeví jako jediné správné řešení. Dokud na to ale člověk nepřijde, tak to tak samozřejmě nevypadá,“ komentuje nejdůležitější body spolupráce s klientem architekt Jiří Pavlíček.

„Podlaha je dubová, nábytek je ořech. Kombinace světlého a tmavého dřeva byl jeden z požadavků klientů. Chtěli jsme, aby byl interiér světlý. Vzhledem k tomu, že je to starý dům s relativně malými špaletovými okny (v porovnání s novostavbami), rozhodli jsme se dát na podlahu radši světlý odstín.“ Pavlíček zároveň dodává, že chtěli trámy z podkroví natřít na bílo, „když jsme ale viděli, jak jsou zachovalé, nechali jsme je jen obrousit a napustit olejem.“

Vnitřek domu je pro současné potřeby bydlení naprosto ideální. Kombinace nynějších prvků s původními dodává domu charakter a odkazuje se na jeho dlouhou minulost. Pokud se ovšem přemístíte na zahradu, dýchne na vás nefalšovaná atmosféra třicátých let ve své původní, nezměněné podobě.
Více k tématu
- Ateliér: Pavlíček + Hulín architekti
- Autoři: Jiří Pavlíček, Jaroslav Hulín, Martin Kaftan, Justína Špálková
- Země: Česká republika
- Město: Český Krumlov
- Datum projektu: 2012
- Realizace: 2015
- Užitná plocha: 280.00m2
- Zastavěná plocha: 111.00m2
- Plocha pozemku: 639.00m2