NEW WORK vytvořili rodinný dům s patiem na principu lega
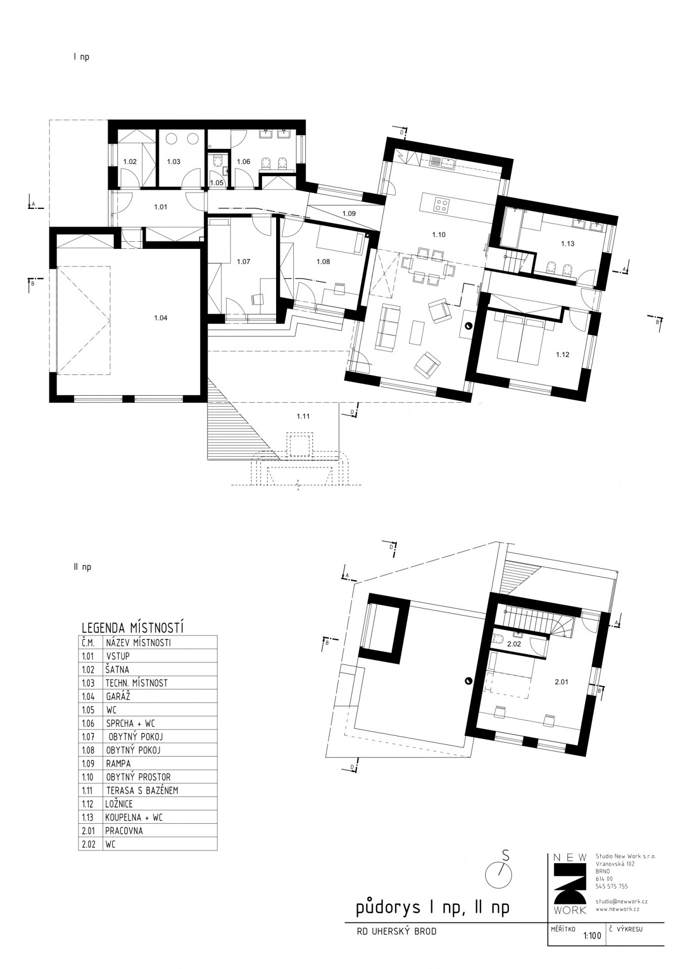
Rodinný dům ve vesnici Újezdec u Luhačovic na Moravě od brněnského studia NEW WORK vedeného Svatoplukem Sládečkem funguje podobně jako dětská stavebnice. Jednotlivé funkce domu jsou totiž rozděleny do samostatných objemů ve tvaru kvadrů. Vhodné rozvržení těchto jednotlivých částí hmoty stavby pak umožnilo vytvořit několik venkovních a polovenkovních prostorů pro terasy i patio. Celý dům je řešen jednoduše v bílé barvě, doplněné o šedé lemování oken či výrazné oplechování atiky.
studio New Work , 11. 7. 2018
- Ateliér: studio New Work
- Autoři: Svatopluk Sládeček
- Spolupráce: Ondřej Fabián, Petra Bitaudeau Vašková, Jaroslav Matoušek, Petr Janík
- Země: Česká republika
- Město: Újezdec u Luhačovic
- Datum projektu: 2013
- Realizace: 2016
- Užitná plocha: 228.00m<sup>2</sup>
- Zastavěná plocha: 239.00m<sup>2</sup>