 
					
                    				Nová radnice pro Prahu 7 – 3. místo
Praha 7 hledala novou podobu radnice a aby si zajistila co nejlepší možný výsledek, rozhodla se jít cestou architektonické soutěže. Sešlo se velké množství návrhů a před porotou tak stálo obtížné rozhodování o vítězích – v něm se na bronzový stupeň dostal projekt čtveřice architektů, který dle ohlasů zaujal také veřejnost. Podívejte se i vy.
Martin Čeněk / Dalibor Hlaváček / Ludvík Holub / Zuzana Kučerová , 14. 6. 2016
Život nové radnice
Kavárna s galerií – přirozeně osvětlená prostorem nového schodiště a anglickým dvorkem, ohnisko komunitního života Prahy 7.
Schodiště v anglickém dvorku – propojuje kavárnu / galerii s venkovním prostorem.
Venkovní výtah – zajistí separátní vstup do oddělení sociální péče, zásobování kavárny a přístup s jízdními koly do skladu v suterénu.
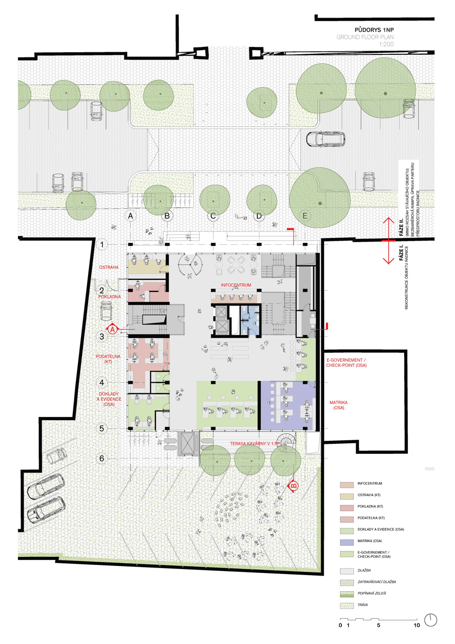
Zeleň v parteru – dvůr v kombinaci zeleně a vegetační dlažby. Popínavá zeleň na okolních stěnách. Listnaté stromy v létě vytvářejí stín a v zimě umožňují přístup slunečních paprsků do interiéru.
Dvůr – může sloužit jako platforma pro konání kulturních, společenských a uměleckých akcí.
Podpora cyklistické dopravy – stojany na kola, hygienické zázemí a nabíjecí stanice pro elektrokola.
Zklidněný předprostor radnice – styčný bod mezi veřejností a městskou částí. Vybízí k zastavení a pobývání a umožňuje bezpečný pohyb v bezprostřední blízkosti vstupu.
Fasáda přilehlá k ulici – zprostředkovává kontakt mezi vybranými funkcemi radnice (foyer, sál zastupitelstva, kavárna s galerií) a městským parterem.
Nové schodiště – vertikálně propojuje nejvíce navštěvované provozy a funkce, zaručuje jejich optické propojení a umožňuje samostatný provoz po ukončení pracovní doby radnice.
Běžné podlaží – důležitá je čitelná a přehledná dispozice, která umožní snadnou orientaci v interiéru.
Zasedací síň zastupitelstva – srdce radnice, opticky a funkčně propojená s uličním parterem, fyzicky i přeneseně reprezentuje otevřenost městské části Prahy 7.
Centrální komunikační jádro – obložené akustickým obkladem ze smrkových latí, hlavní orientační prvek dispozice.
Zasedací místnosti – vprostřed dispozice, sdílené napříč odbory, podtrhují transparentní fungování radnice.
Obřadní síň – navazuje na velkorysou terasu s výhledy a mobilním barem. Slouží pro konání významných událostí, teambuildingových akcí nebo pro relaxační aktivity zaměstnanců.
Terasy – budou osázeny zelení a nabídnou alternativní pracovní prostředí pro zaměstnance radnice. Nabízí výhledy na Holešovický pivovar, Troju a Ďáblice.
Vegetační střechy – absorpce CO2 prachu, zpomalení odtoku srážkových vod, vytváření příjemného mikroklimatu a omezení vlivu na tvorbu tepelného ostrova.
Hybridní fotovoltaický systém – umožní využití 100% vyrobené elektřiny pro vlastní spotřeba, např. pro nabíjení elektrokol a elektromobilů.
Hodnocení poroty
Pečlivě propracovaný návrh, který nabízí stavebně i technologicky poměrně úsporné řešení, je proveditelný a vhodně aplikuje fotovoltaický systém. Porota na vnitřním uspořádání oceňuje především návrh druhého schodiště, které umožňuje více reprezentativní a společenské využití této vertikální komunikace i přilehlých prostor. Dopracovat by si zasloužila deklarovaná propojenost a přístupnost přízemí až do vnitřního dvora, která však díky zvoleným architektonickým prostředkům není tak silná – vstup z ulice blokuje jednak transversální rampa a směrem do dvora zmenšuje prostupnost půdorysné uspořádání. Esteticky racionální fasáda by mohla být přepracována tak, aby připomínala méně standardní administrativní budovu a více budovu veřejnou.
Všechny soutěžní projekty najdete na www.novaradnicepraha7.cz.
 
                             
                             
                             
                             
                             
                                 
            		 
            		 
            
         
            
         
            
         
            
         
            
         
            
         
                             
                             
                             
    
	 
            		 
            		 
            		 
            		 
            		 
            		 
            		 
            		 
                     
                     
                     
            		 
            		 
            		 
            		 
            		 
                     
					 
                                                         
                                                         
                                                         
                                                         
				 
				 
				 
				 
				 
				 
				 
				