
Nevidím u sebe žádný jasný rukopis, je pro mě důležitá fúze přístupů, říká interiérová designérka Diana Perknovská
Diana Perknovská začala s interiérovým designem už na vysoké škole. Vlastní firmu si založila hned ve druhém ročníku, dnes vede studio Perknovska&Co. 15 let. Za tu dobu navrhla nespočet různorodých interiérů, ve kterých se snaží vystihnout osobnost svých klientů. Jednou z nedávných realizací studia je byt pro sestru Diany Perknovské, ve kterém se snoubí světlé barvy s přírodními materiály.
EARCH.CZ , 14. 6. 2023 / Advertorial
Interiéry, které navrhuje bratislavské studio Perknovska&Co., si jsou málokdy podobné. Zakladatelka studia Diana Perknovská říká, že pro ni není důležitý jasně rozpoznatelný autorský rukopis, ale spíše schopnost porozumět klientovi. „Zakládám si na tom, že každý interiér je výsostně jiný, protože i každý klient je jedinečný,“ vyjadřuje se.
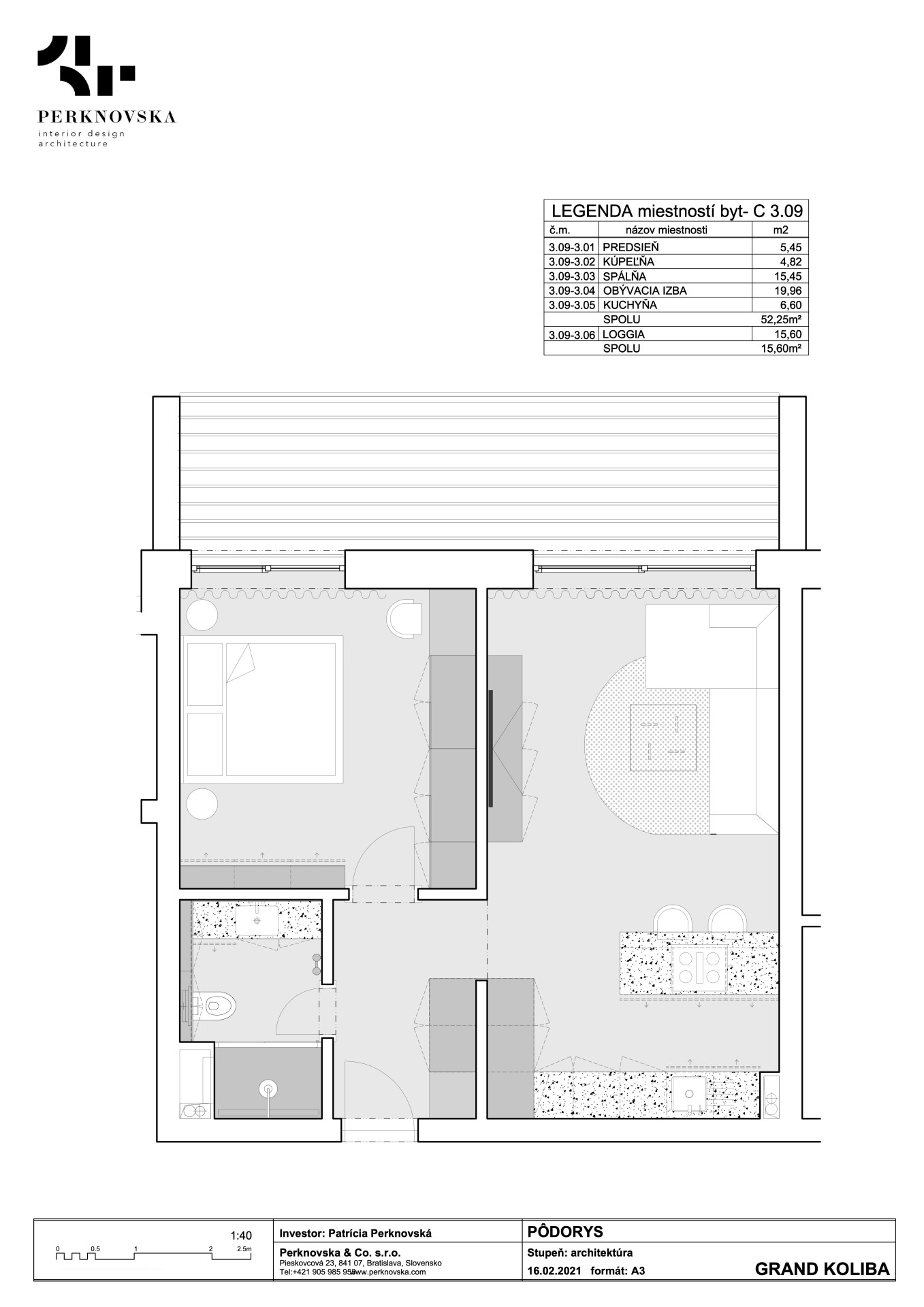
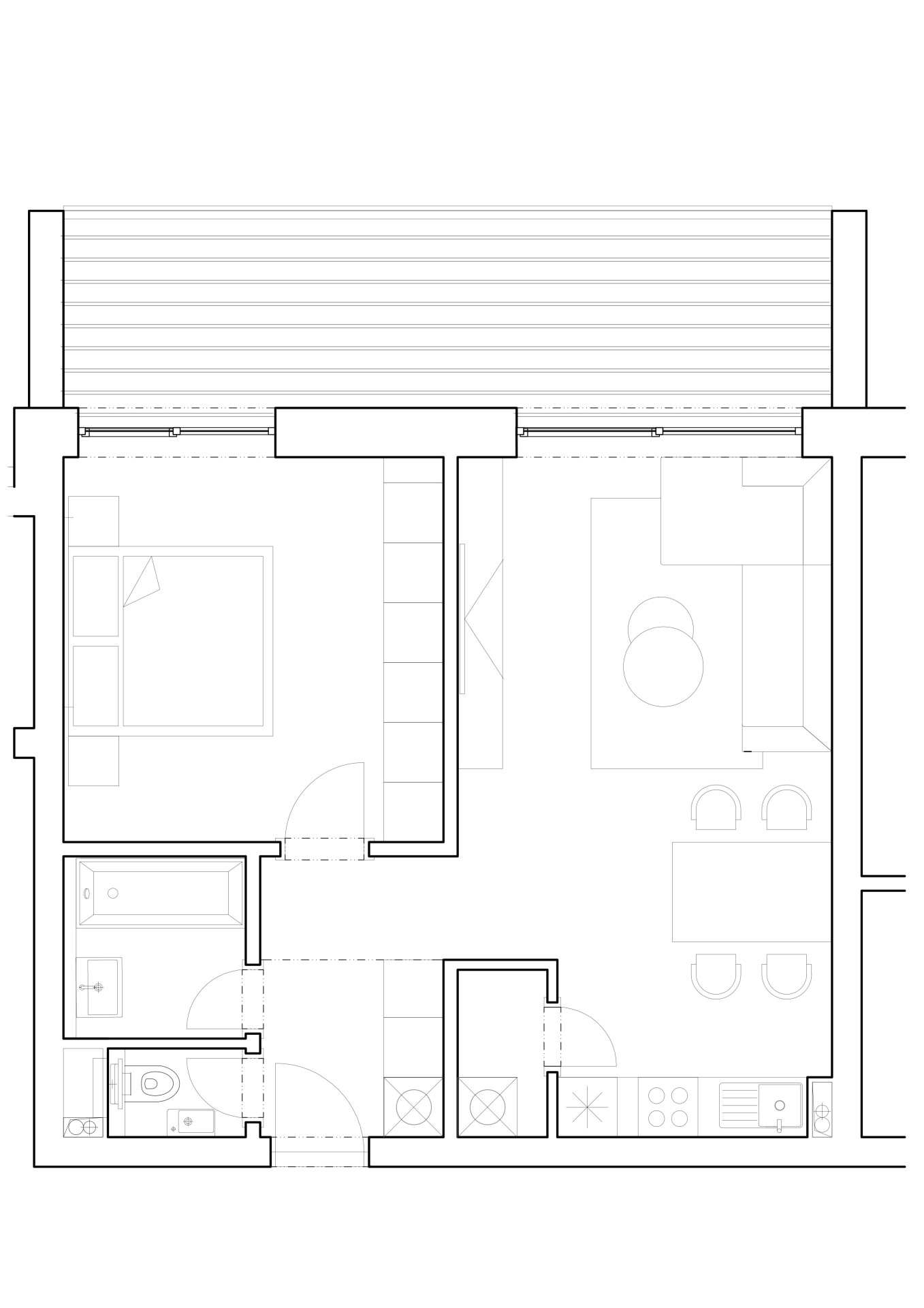
Diana Perknovská své studio provozuje 15 let. Za tu dobu se jeho portfolio naplnilo různorodými realizacemi. Nedávno designérka pracovala také pro svou sestru, pro kterou navrhla podobu dvoupokojového bytu v Bratislavě. Jeho interiér je laděný do zemitých barev, hojně byly použity přírodní materiály, přáním investorky bylo také do výsledku zapojit hodně rostlin.
Všechen nábytek na míru měl být v dubové dýze, ale vzhledem k respektování rozpočtu se sáhlo po laminátovém provedení. Naštěstí se podařilo nalézt takový dekor, který je skoro neodlišitelný od přírodního materiálu. Teplé odstíny vybavení dobře vyznívají v kombinaci se světlou litou polyuretanovou podlahou. Dalším dominantním materiálem se stalo terazzo, respektive desky z tvrzeného kamene TechniStone v dekoru Taurus Terazzo White. Materiál byl použit jak na kuchyňskou pracovní desku, tak v koupelně. Právě díky jednotné materiálové paletě spolu všechny pokoje ve výsledku ladí.
Více k tématu
Mohla byste se našim čtenářům představit a popsat vaše začátky v interiérovém designu?
Ešte na gymnáziu som bola zamilovaná do jednej americkej relácie, kde dvaja dizajnéri prerábali interiéry. Pamätám si, že som hneď vedela, že toto chcem robiť.
Prihlásila som sa teda na prijímačky na VŠ fakultu architektúry ústav designu, kde brali myslím iba 15 ľudí. Prešla som všetkými prípravnými kurzami. Inú možnosť som ani nebrala do úvahy. Ibaže po prijímačkách mi na vyhlásení výsledkov povedali citujem „Viete, mali ste vynikajúce práce, skoro maximum bodov, ale je nám ľúto,“ a bolo vymaľované.
Takže ma otec presvedčil, aby som išla na stavebnú fakultu na Pozemné stavby, architektúra. Napriek tomu, že stavebná fakulta nie je jednoduchá a namiesto kreativity tam máte samé počítanie, som mu za to neskutočne vďačná.
Beriem to ako neuveriteľnú devízu, pretože som multifunkčná a pozerám sa na návrhy úplne inak. Interiérový design som si študovala popri tom samostatne, vykúpila som kníhkupectvá a tú vášeň si v sebe len zveľaďovala, a zároveň sa učila, ako to všetko realizovať.
Prvých klientov, ktorí za mnou chodili o pomoc, som mala už v prvom ročníku. V druhom ročníku som si povedala, žeby som to už mohla robiť aj oficiálne, a tak som si založila firmu. Od vtedy sa stále snažím zlepšovať v tom, čo a ako to robím a ponúkať klientom kompletný balík služieb pod jednou strechou, pretože moje pravidlo je, že realita je 1:1 ku návrhu.

Popsala byste nám vaše první myšlenkové pochody a následné kroky při prvotním setkání s projektem? Co je první krok v navrhování interiéru?
Osobnosť klienta, počúvať s porozumením, vnímať čo je pre neho podstatné a čo nepodstatné. Druhá otázka, bez ktorej ani nenaceňujem projekt je: „Aký budget a časový horizont máte vyčlenený na realizáciu.“ Tu sa ujasnia očakávania s realitou.
Kreativita je nezbytnou součástí vaší práce. Můžete nám říci, kde čerpáte energii a inspiraci k tvoření?
Musím sa smiať, pretože občas aj svojim študentom hovorím, že ak vás kreativita obchádza, nalejte si pohár vína. Hneď prestanete so sebou vyjednávať a veľmi rýchlo zistíte, čo vám dáva zmysel a čo nie.
Keď tvoríte aj realizujete viacero projektov naraz a ste pedant, vie to byť vyčerpávajúce. Každopádne, mám zásadu spoznať klienta ako osobnosť a nezačnem navrhovať, kým nevidím nehnuteľnosť na živo. Svetlo, výhľady, výška stropov, súvislosti medzi priestormi a stavebné možnosti. To sú základné ingrediencie, bez ktorých to nejde.
Následne si s klientami ujasním okruh materiálov a farieb, ktorými sa chcú obklopovať a ktoré sú v súlade nastaveným budgetom. Keď mám všetky tieto ingrediencie, vkladám do interiéru niečo, nejaký prvok, formu, materiál, tvar, ktorý som nikde inde nepoužila a je unikátny práve pre tohoto klienta alebo nehnuteľnosť.

Máte své oblíbené materiály, které klientům nejčastěji doporučujete? Jaké kombinace materiálů a barev preferujete?
Tým, že každý klient je jedinečný, zakladám si na jedinečnosti interiérov. Nepoužívam rovnaké kombinácie. Pre jedného klienta sú dve farby veľa a mala som klientov, ktorí milujú byť zase farbami obklopení. Rada však pracujem vždy so „živými“ materiálmi ako sú dyha či kameň a rôznymi štruktúrami. Ďalšie pravidlo, interiér si musíte užívať všetkými zmyslami: zrak, hmat, sluch a čuch. Chuť nechávam pri interiéroch len v kuchyni.
Interiér vždy rozdeľujem na dve fázy. Prvá fáza je základná, je to všetko to, čo je zabudované, vstavané či prilepené, to čo len tak ľahko nezmeníte. Tu volím vždy neutrálne odtiene ako podklad pre život ktorý doňho vojde. Druhá fáza je zložená z akcentov. To je tá osobnosť budúcich obyvateľov, ktorú reflektujeme doplnkami so špecifických materiálov, kusový nábytok, svietidlá, textílie či iné nuansy.
Jaká část domova je pro vás nejdůležitější? Kde trávíte vy osobně nejvíce času?
Ja som dieťa slnka a cez zimu trpím. Preto sa ťahám vždy do obývačky alebo zimnej záhrady, potrebujem k životu mať vzduch a presvetlené miestnosti.

Na jaké části domova by neměli klienti šetřit?
Na kvalitnom stavebnom prevedení, to je alfa omega, a vrámci samotného interiéru na prvej základnej fáze, na povrchoch, ktoré neviete len tak vymeniť. To znamená hlavne podlahy, kúpeľne a mať kvalitný matrac pre skvelý spánok a ráno úsmev na tvári. Ostatné sa dá v priebehu času vymeniť a vylepšiť.
Následujete designové trendy nebo se vydáváte po vlastní cestě? Jsou ve světě designu nějaké trendy poslední doby, které jste si osvojila?
Musím povedať, že nikdy som nebola typ, ktorý sa drží určitého trendu alebo umeleckého štýlu. Moje návrhy sú vždy fúzia rôznych štýlov a emócií, v ktorých viem, že sa klient bude cítiť dobre. Je však pravda, že aj napriek tomu, že u seba nevidím zásadný rukopis, všímam si že postupom času sú základné línie návrhov v štýle učenia BAUHAUS.
Máte oblíbenou osobnost/vzor v interiérovém designu?
Nemám, ale v rámci architektúry mám svoju africkú lásku SAOTA a The Local Project, ktorí zbierajú nádherné projekty z Austrálie, Nového Zélandu a Ameriky.

Používáte kámen v interiéru často? Jaký k němu máte vztah?
Pravidelne používam kameň v každom interiéri. Reprezentuje pre mňa kvalitu, trvácnosť a hodnotu. Je to materiál, ktorý vie interiér neuveriteľne pozdvihnúť, bude váš parťák dlhé roky. Používam ho na pracovné dosky v kuchyni či v kúpeľni, ako materiál pre meetingové stoly alebo aj konferenčné stolíky či iné doplnky.
Jaký z TechniStone designů se vám líbí nejvíce a proč?
Milujem Terrazzo pretože je výrazné, má život a názor.
Používáte TechniStone ve svých návrzích často?
TechniStone ako materiál používam z pravidla na každom projektu – s pár výnimkami. Sama ho mám doma už 13. rok.
V čem vidíte výhody a nevýhody materiálu (při použití na kuchyňské desky) oproti přírodnímu kameni, keramice a dřevu?
Za výhody považujem hlavne odolnosť dosiek, nenáročnú údržbu a voľby matnej povrchovej úpravy materiálu. Človek sa nemusí obmedzovať s používaním dosky a znesie „skoro“ všetko.
Čím vás oslovil vybraný dekor Taurus Terazzo White? Jaké další dekory jste zvažovala?
Ja mám pravidlo, že každý interiér musí mať niečo neštandardné, ako hovorím divné, taký eyecatcher. Návšteva si musí interiér zapamätať a odísť s emóciou, a to tento dekor dokonalo naplnil. Pri tomto projekte som ani iný dekor nezvažovala, išla som na istotu. Sestra chcela prírodné terazzo, ale to by bola otrokom kuchyne a thajská kuchyňa či india by sa v takej kuchyni prestala variť.
- Autoři: Diana Perknovská
- Ateliér: Perknovska&Co.
- Země: Česká republika
- Informace o produktech: TechniStone Taurus Terazzo White