Byt, který se točí kolem kuchyně a je z něj vidět na Pražský hrad
Vznikl v podkroví, ve kterém se předtím nedalo bydlet. Teď je pod střechou bytového domu na Vinohradech pohodlný mezonet plný vybavení na míru. Navrhli ho architekti a vyrobilo truhlářské studio z Berounska.
EARCH.CZ , 15. 4. 2024 / Advertorial
V tomto bytě se spojuje současná estetika čistých ploch a klasických detailů. Vidět je to třeba na kuchyni. Ostrůvek má z tvrzeného kamene podpěry i pracovní desku, přechod mezi jednotlivými částmi je plynulý, sotva zaznamenatelný. Na dvířkách skříněk se pak objevují rámečky, které tradičně figurují v rustikálněji pojatých kuchyních. Tady jemně zvýrazňují samotné okraje dvířek skříněk, mají ostré hrany, působí soudobě a až minimalisticky. Provedení je precizní, na tomto aspektu ostatně stojí celá realizace.
Mezi převážně světlým vybavením vynikají tmavé prvky. Z dubové dýhy jsou třeba právě povrhy dvířek v kuchyni. Architekti říkají, že takto zvýraznili ty nejdůležitější prvky. Vedle kuchyně, která stojí v centru hlavního obytného prostoru, má tmavě hnědou barvu taky schodiště vedoucí do patra.
Více k tématu
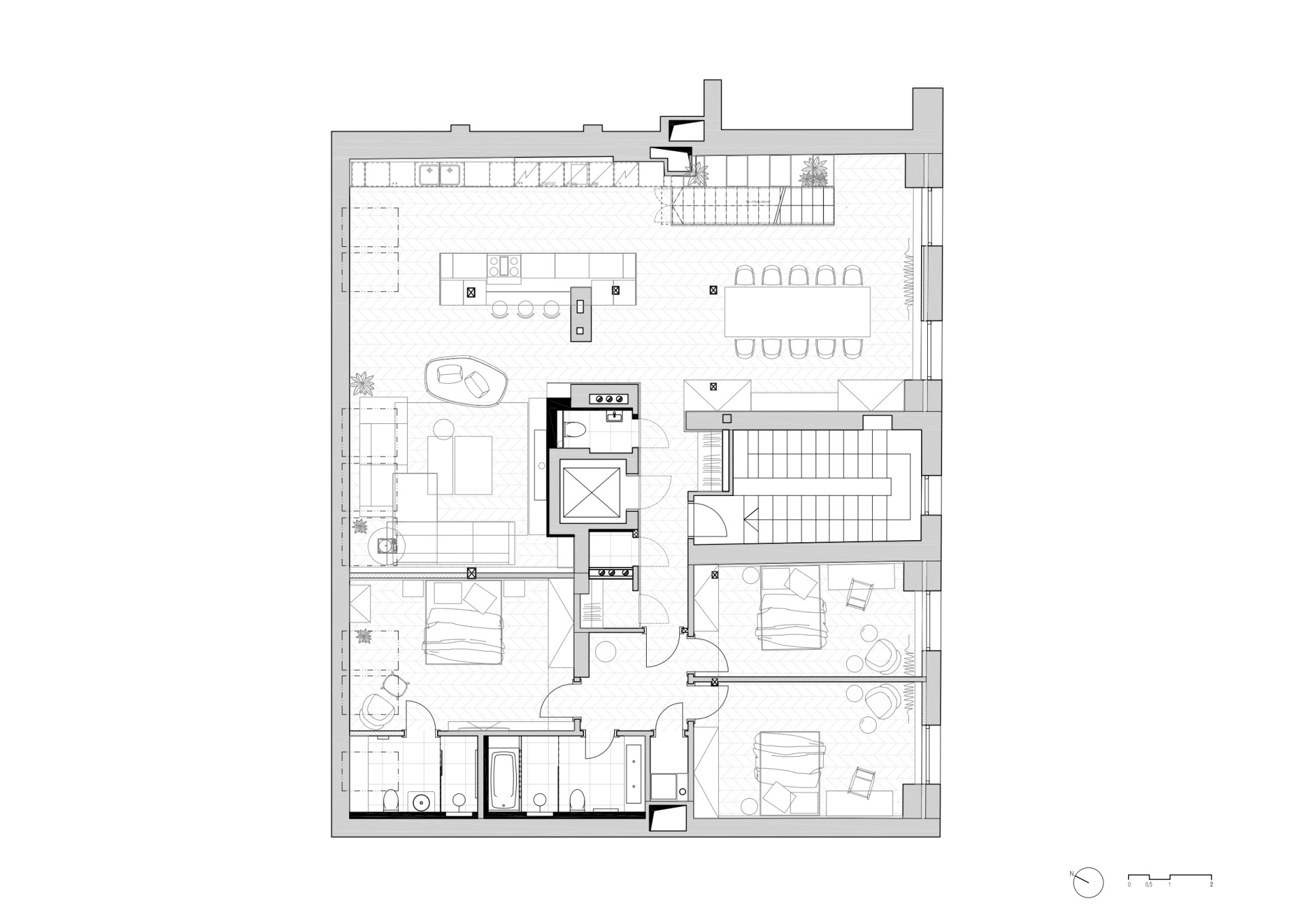
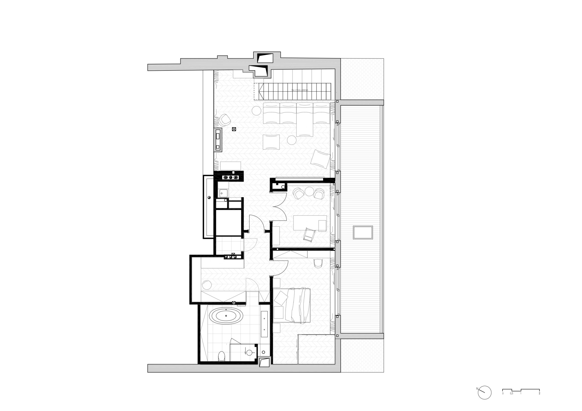
Byt je totiž mezonetový a svou plochou taky velkorysý, má celých 307 m2. Nachází se v podkroví starého činžovního domu v Praze na Vinohradech. Vidět je z něj prý až na Pražský hrad. Před vstupem architektů ze studia BekArch nebyl prostor obyvatelný, projekt tedy přesáhl rámec standardní bytové rekonstrukce.
Dnes je zde vše, co je potřeba k životu rodiny s dětmi. Vzhledem k dostatku prostoru se do něj vešly tři samostatné dětské pokoje, pokoj pro hosty, ložnice i pracovna. Všechny jsou řešeny na základě uceleného vizuálního klíče. Světlou barevnou paletu s tmavými ozvláštňujícími prvky ctí i vybavení koupelen. Podle architektů padla volba na světlé barvy kvůli zajištění prosvětlenosti prostorů, vzhledem k charakteru podkroví totiž nebylo možné osadit velká okna. Vzniku ponurých míst tady brání bílá a krémová – na stěnách, skříních nebo obkladech.
„Hlavními elementy celého bytu jsou truhlářské prvky zhotovené studiem Pavlis, které nám pomohly prostor rozčlenit, zakrýt technické zázemí bytu a vizuálně sjednotit celý interiér,“ dodávají k tomu architekti ze studia BekArch, kteří realizaci dále popisují v rozhovoru.

Jan Bek o architektuře a Ondřej Válek o truhlařině
Jan Bek – studio BekArch
Co všechno realizace obnášela?
Jednalo se o kompletní rekonstrukci, kde bylo potřeba řešit nejen design, ale také stavební a praktické zásahy do dispozice, aby prostor odpovídal požadavkům klientů. Od počáteční studie až po samotné dokončení realizace uběhl více než rok.
Jaké byly požadavky klientů?
Jedním z klíčových požadavků investora bylo vybudování společenského prostoru pro rodinu i návštěvy. Dostali jsme jasné zadání vytvořit v centru tohoto prostoru kuchyňskou linku s velkým ostrůvkem a jídelnu, kde se budou lidé scházet a trávit společný čas. Vybavení zde mělo být reprezentativní, nápadité a především praktické. Z tohoto důvodu jsme v kuchyni zvolili pracovní desky TechniStone.
Kuchyně, jídelna a obývací pokoj jsou společně s dětskými pokoji situovány na spodní podlaží. Do patra se dostává po truhlářsky řešeném schodišti. Situováno je zde soukromé křídlo s pracovnou, ložnicí, koupelnou, barem a šatnami. Byt disponuje třemi plnohodnotnými koupelnami a jednou samostatnou toaletou u obývací části.
Co se kuchyně týče, má nějaké praktické vychytávky?
Kuchyně svým vybavením odpovídá současným vysokým nárokům. Důležité bylo také dodržet vhodné zónování a využít každý kout. Pod novým schodištěm například vznikla velmi prostorná spíž, která není na první pohled vidět, vypadá jako běžná skříňka.
U každého z projektů se snažíme přijít s něčím novým, co pro nás bude i technickou výzvou. V tomto projektu to byly například police z TechniStone, které jsou u kuchyně i u baru v jídelně. Police v kuchyni má na délku přes 4 metry a je v ní zafrézován LED pásek pro osvětlení pracovní plochy.
Jaké další materiály kromě TechniStone byly v realizaci použity?
Celý byt propojuje jednotná škála barev a materiálů. Je zde ve všech prostorech použita dřevěná bělená podlaha skládaná do chevronu (tzv. rybího vzoru, pozn. red.). Na truhlářské prvky jsou použity lakované MDF desky (polotvrdé dřevovláknité desky, pozn. red.) ve světle šedém odstínu v kombinaci s tmavě mořenou dubovou dýhou.
Jak se vám s materiálem TechniStone pracuje?
TechniStone používáme již řadu let a navrhujeme jej téměř do každého z našich projektů. Vyhovuje nám na něm jeho vysoká odolnost, výběr dekorů, ale především možnost provedení esteticky čistých detailů.

Ondřej Válek, truhlářské studio Pavlis
Specializujete se na výrobu vybavení na míru. Na co je potřeba se soustředit při jeho instalaci?
Nejdůležitější je odborná montáž nábytku a jeho horizontální a vertikální rovinnost. Pokud těchto rovinností nedocílíte, může být výsledek až katastrofální a promítne se na celkovém vzhledu projektu. Navíc tím přidáte další starosti kameníkům, kteří potom mají více práce se zaměřením a montáží TechniStone. U nás ve studiu Pavlis dbáme na precizní přípravu projektů již při výrobní dokumentaci a myslíme na faktory, které mohou ovlivnit konečný výsledek.
S jakým kamenictvím jste při této konkrétní realizaci spolupracovali?
Spolupracujeme s kamenictvím Bruno Paul. Vnímáme je jako spolehlivého partnera, který má skvěle fungující tým, a i tím jsme si velmi blízcí. Velkou předností je proaktivní přístup k práci, který je odlišný od jiných kamenictví, a kráčejí v duchu dnešní moderní doby.

Jak se vám s materiálem TechniStone pracuje?
Materiál TechniStone je unikátní svým povrchem, který je především velmi snadný na údržbu, neabsorbuje tekutiny z potravin, se kterými se denně při vaření setkává. Oceňujeme také jeho dostupnost v různých tloušťkách a dekorech. Dekory TechniStone jsou designově atraktivní a v určitých případech skvěle imitují vzhled přírodních materiálů.
Máte mezi dekory TechniStone nějaké oblíbence?
Nejraději pracujeme s materiály z kolekce Noble, hlavně s dekorem Noble Arco v matném provedení. Jemná kresba mramoru evokuje pocit luxusu a utváří charakter nábytku. Za zmínku stojí také kolekce Trend, která svým vzhledem a charakterem připomíná přírodní travertin.