Obecní dům pro 150 obyvatel bojuje o Českou cenu za architekturu. Proč nestojí i ve vaší vesnici?

Obecní dům mohou Skaličce na Blanensku závidět mnohá města. Architektce Soně Urbánkové se do budovy připomínající tradiční statek podařilo vměstnat komunitní sál, obecní úřad i ordinaci. Neobešlo se to ale bez dramatických zážitků během realizace - architektka se musela na chvíli stát vandalem na vlastní stavbě. Skaličku navštívil Pavel Fuchs v rámci svého doktorského výzkumu. Zjišťuje, jak se rodí a jak fungují výjimečné stavby na venkově.
Pavel Fuchs , 4. 10. 2023
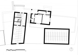
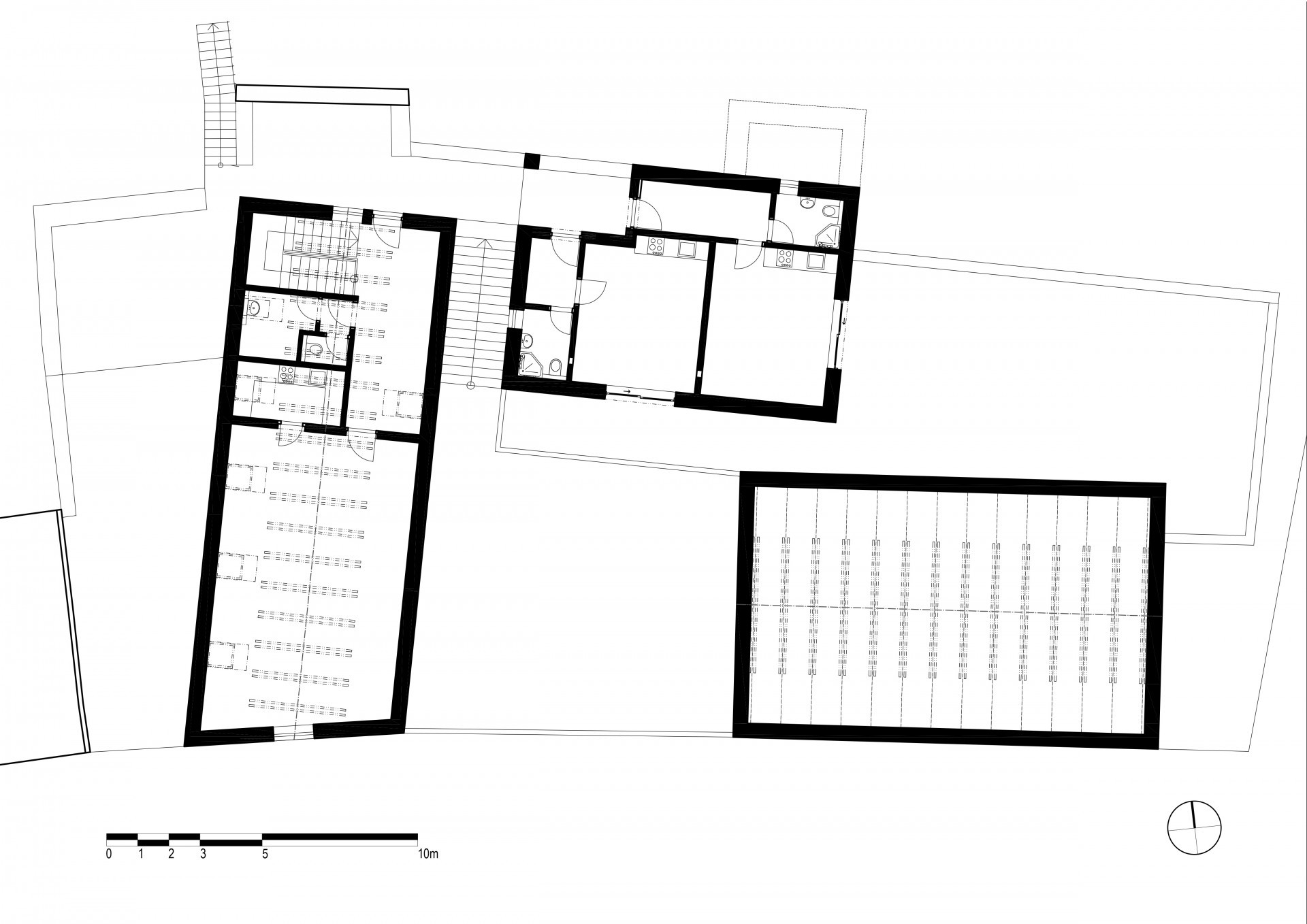
V kanceláři plné elektrokol nás vítá starosta Jiří Mráz a architektka Soňa Urbánková. O víkendu se bude ve Skaličce konat další závod. Cyklisté (převážně z Brna) jsou také jedni z mála přespolních, kteří do vesnice se sto padesáti obyvateli zavítají. Často zabrzdí a vyfotí si zdejší obecní dům. Stavba rozdělená do třech menších hmot poskytuje azyl dvěma sálům, obecnímu úřadu, plánované cukrárně a ordinaci, sběrnému dvoru a možná i startovacím bytům.
Jiří Mráz je ve Skaličce dlouholetým starostou, péči o obec zdědil po svém tchánovi. Soňa Urbánková bydlí ve vedlejší vesnici: „Ale ze Skaličky mám spolužáky, na zdejším koupališti jsem se naučila plavat.“ Když se začneme dojímat nad venkovskou idylou, sarkasticky dodává: „Taky jsem se tu jednou málem utopila.“
Více k tématu
Protože starosta architektku osobně znal, obrátil se s právě na ní - nejprve na radu, potom i s žádostí o vypracování projektu. V podmínkách malé obce je tohle řešení mnohem snadnější než výběr na základě architektonické soutěže. Z povzdálí úspěch celé akce kontrolovala i starostova žena, která je restaurátorkou a podílela se na záchraně mnoha významných moravských památek.
Jak se taková investice povedla obci s rozpočtem dva miliony korun ročně? Jiří Mráz vypráví, že na začátku byly obavy o centrum vesnice: „Na místě stál zchátralý hostinec, spravovaný exekutory z druhé strany republiky. Báli jsme se vzniku ubytovny nebo pochybné diskotéky a obec se proto odvážně přihlásila do dražby. Hospodu jsme si ale už v mezičase zřídili jinde. Nejprve jsme přemýšleli, že ruinu přebudujeme na školku či charitní dům.“
Ve Skaličce komunitní život funguje, místní tu dodnes chodí na brigády a podíleli se i na odklízení staré stavby. „Chyběl nám ale sál ke scházení v zimě a obecní úřad se tísnil u hasičské zbrojnice,“ prozrazuje vývoj konceptu starosta. S financováním nakonec pomohla dotace na obnovu brownfieldů.

Stodola jako komunitní sál
Soňa Urbánková se inspirovala objemy vesnického statku, ten ale není uzavřený a vydlážděným nádvořím se obrací do ulice. Největší stodola ukrývá multifunkční sál pro 100 lidí, v protějším domě je obecní úřad a další klubovna. Podloubí navíc počítá s lidmi čekajícími na autobus, integrovaná zastávka tak zabraňuje vzniku pochybných přístřešků.
„Areálem a navazující terasovou zahradou mohou místní kdykoliv procházet za humna do okolní přírody. Rádi bychom tu v budoucnu zřídili i obecní saunu,“ říká Soňa Urbánková. Návštěvník se v rozdrobeném areálu neubrání srovnání se slavnou radnici Alvara Aalta ve finském Säynätsalo, která také v několika budovách spojuje řadu funkcí zlepšujících život malé obce. O těch obyčejných a praktických potřebách často stylizované fotografie mlčí. Až na místě zjišťujeme, že v areálu je schovaný i sběrný dvůr a sklad obecního údržbáře. V obslužných prostorách projekt navíc zachoval fragmenty starých zdí a sklep staré hospody vytesaný do svahu.

Stavba i provoz vyžadují zápal organizátorů
Ptáme se na využití občany. „V menší podkrovní klubovně cvičí místní jógu. Ve velkém sále pořádáme koncerty a výstavy, populární jsou naše pingpongové stoly. V šatně pro účinkující se jednou za rok převléká kněz a slouží v prostoru slavnostní mši,“ vypočítává Jiří Mráz.
Není tu samozřejmě plno každý den. Organizování akcí vyžaduje další zápal a starosta přiznává, že musí zase trochu nabrat dech. „Místní si navíc na nové možnosti zvykají postupně, musíte jim dát čas,“ dodává.
Na své zabydlení zatím čeká třetí z domků. Jeho přízemí bude nutné dovybavit a najít provozovatele vysněné cukrárny, kde by se projíždějící cyklisté mohli zastavit na kvalitní kávu. „V patře jsme vytvořili dvě zcela variabilní jednotky, rádi bychom do vesnice přitáhli služby - zubaře, kadeřnici či pedikérku.“ Pokud se ale obec v budoucnu rozhodne, mohou tu po drobných úpravách vytvořit startovací byty.

Architektka vandalsky poničila svou stavbu
Stavba patří k těm, které se stavěly během covidu a autorka i starosta se jí mohli v pandemickém bezčasí více věnovat. Proces se ale neobešel bez náročných diskuzí s dodavateli. Zásluhou starosty nebyla kamenná dlažba dvorku nahrazena betonovou kostkou, Soňa Urbánková se ale stále nesmířila s příliš hrubou omítkou a nádvoří nakonec nestíní strom.
Konflikt vznikl i kvůli soklovému profilu, dnes oblíbenému, ale na venkově cizorodém prvku, který by měl teoreticky chránit spodní část stavby proti vlhkosti. Architekta tento rušivý detail ale odmítala. Nakonec se odhodlala k ráznému činu a tajně soklový profil odstranila. I do takto vyhrocených situací se tvůrci staveb v Česku dostávají, pokud chtějí zachovat čistotu svého návrhu během realizace.
Ve Skaličce se to ale povedlo. Ozdobou jsou obří prosklené dveře do sálu, které se podařilo vyrobit bez dělení skel. Spolupráce s architektem se řada lokálních politiků stále bojí. I tady se vztah neobejde bez vzájemného špičkování. „Paní architekta navrhla netradiční díry ve zdech, které jsme holt museli něčím zaplnit,“ vtipkuje starosta, když se díváme pět metrů dlouhým oknem na blízký vrch Paní hora.
Kdyby obec nechtěla projekt na míru od kreativní architektky, ale spokojila se se standardnějším řešením, ušetřila by nejspíš náklady na projekci i za realizaci. Řešení na míru jejich potřebám i místu se ale vyplatilo - obec nezískala jen zájem médií, ale hlavně řadu různě velkých multifunkčních prostor, které se zvládají přizpůsobit novým nápadům i potřebám místní komunity. Loučíme se, začínají úřední hodiny a k obecnímu úřadu míří první obyvatelé se svými problémy i jen tak na kus řeči.
- Autoři: Soňa Urbánková
- Země: Česká republika
- Adresa:: Skalička u Tišnova
- Projekt: 2017
- Realizace: 2020 - 2021