Knihovna v Červeném Kostelci od ateliéru Papundekl architekti (Knihovna v Červeném Kostelci; Papundekl architekti)
Knihovna v Červeném Kostelci od ateliéru Papundekl architekti (Knihovna v Červeném Kostelci; Papundekl architekti) Foto: Alex Shoots Buildings
Architektura / občanské stavby

Červená knihovna pro Červený Kostelec

V bývalém hostinci v Červeném Kostelci už léta funguje knihovna. Nyní prošla rekonstrukcí a dostala se do ní pro město charakteristická červená.

Adéla Vaculíková , 3. 3. 2026

Červený Kostelec se v posledních letech dostává na mapu současné architektury. V osmitisícovém městě ležícím kousek od Náchoda se před třemi lety dokončilo nové náměstí s parkem a pavilonem růžovo-červené barvy. Pro město tehdy navrhovaly dva slovenské ateliéry 2021 architekti a Laboratórium architektúry krajiny. Nyní se v Červeném Kostelci dokončila další veřejná stavba – rekonstrukce Knihovny Břetislava Kafky – a opět jde o současnou architekturu vysokého standardu.

Autory návrhu jsou Papundekl architekti. Budova bývalého hostince, v níž knihovna sídlí, měla původně projít jen výměnou mobiliáře. „V průběhu projektování se však ukázalo, že technický stav objektu vyžaduje výraznější zásah,“ uvádějí architekti. Strop ve druhém patře staticky nevyhovoval, dům potřeboval celkové zateplení i výměnu všech oken. Z původně dílčí úpravy se tak stala kompletní rekonstrukce.

Proměna je patrná už z ulice. Původní zelenou fasádu nahradila světlá krémová omítka a přehodnotil se také vstup. Dům původně neměl klasické dveře do ulice, ale průjezd – ten zde zůstal, nově však získal parametry reprezentativního vchodu.

Foto: Vchod zdůrazňují plechová vrata s názvem knihovny.

Zdůrazňují ho elegantní plechová vrata s názvem knihovny. Jsou růžová a stejnou barvu má i zbytek původního průjezdu, dnes pasáže, kterou lze projít až do zahrady ve dvoře.

Knihovny jsou veřejné instituce a sluší jim proto určitá míra transparentnosti. Vytvořit zde prosklený nebo jinak otevřený parter ovšem nebylo možné, a tak architekti vymysleli náhradu. Do průchodu vložili velké okno, kterým lze nahlédnout do oddělení pro dospělé. Za sklem se táhne police s vystavenými knihami – knihovna tak získala něco jako svou výlohu.

Foto: Knihovna nemá prosklený parter ani výlohu, v průchodu ji nahradilo nové fixní okno.

Dovnitř se vstupuje dveřmi ze skla a nerezu. Právě nerez patří mezi hlavní materiály projektu. Nerezový je už bibliobox na vracení knih, zapuštěný do soklu budovy. Další nerezové prvky se objevují uvnitř – na nástěnkách nebo třeba v sociálním zázemí.

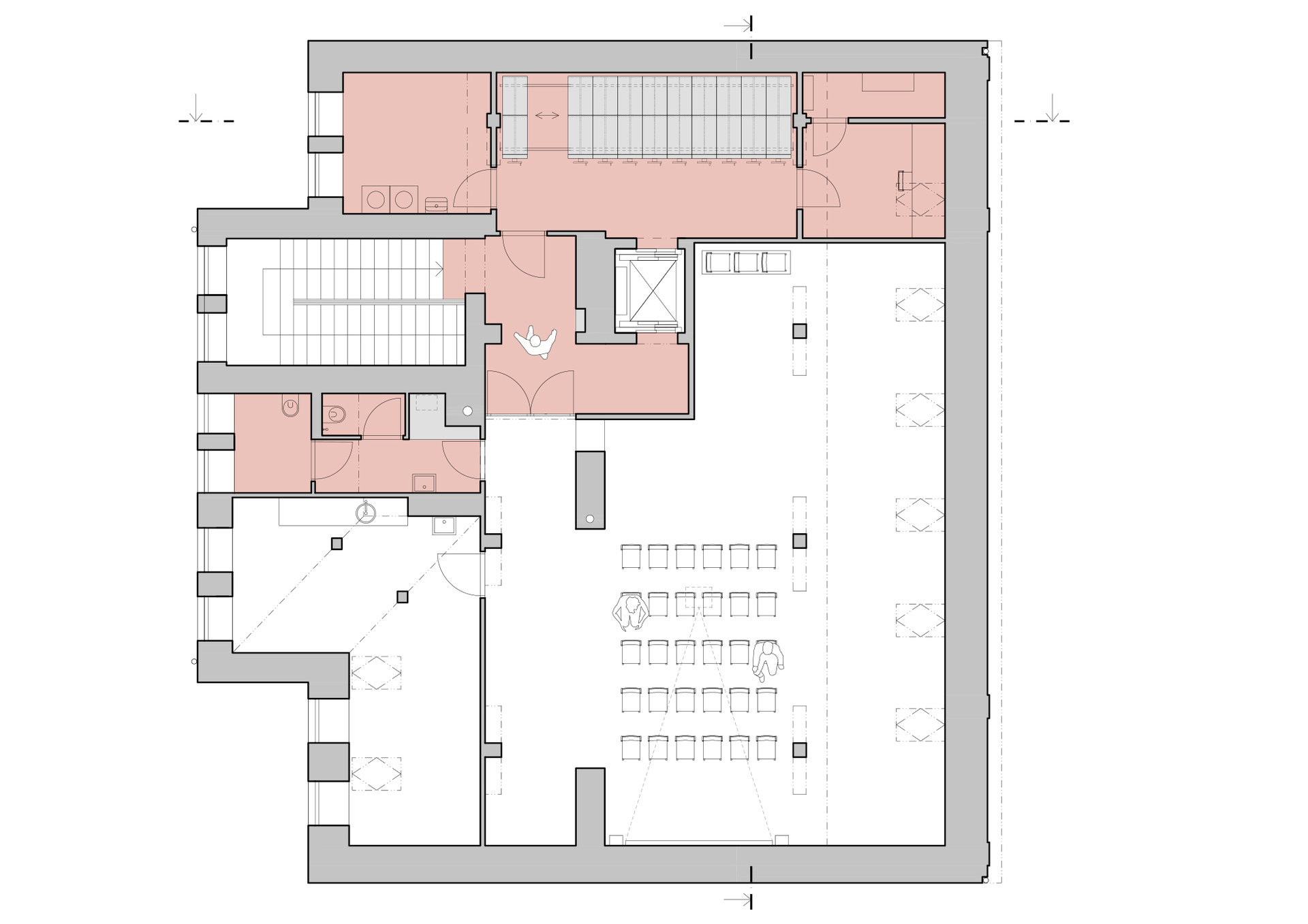
Knihovna má tři podlaží. V přízemí je oddělení pro dospělé, v prvním patře pro děti a ve druhém vznikl multifunkční sál pro besedy a další akce.

Foto: Červeno-růžové regály jsou v oddělení pro dospělé rozmístěné v prostoru, díky kolečkům se dají přesouvat.

Obě oddělení pracují se dvěma typy mobiliáře. Ten při obvodu místností je spíše nenápadný, převážně šedý – u dospělých jde o knihovní regály, u dětí jej doplňují také závěsy či nástěnky. Naopak mobiliář zasazený do prostoru je červený a růžový. „Barvy podporují přívětivou atmosféru knihovny a zároveň odkazují k názvu města a jeho červenému kostelu,“ vysvětlují architekti.

V oddělení pro dospělé jsou červeno-růžové regály rozmístěné pravidelně. Kromě polic obsahují integrované posezení s čalouněním a LED osvětlení. Všechny stojí na kolečkách, takže je lze v případě potřeby odsunout ke stěnám a vytvořit volný prostor pro veřejné akce.

Foto: Pohled do dětského oddělení knihovny

O patro výš v oddělení pro děti je růžovo-červený mobiliář ještě hravější. Regály mají různé výšky, aby vyhovovaly různě starým dětem – to vše ve sladění s knihami. V prostou jsou také různé rampy, pojízdná sedátka a všeobecně to tady hýří zábavnou atmosférou.

Umocňuje ji ještě stropní baldachýn, který s dětmi z místní ZUŠky vytvořila umělkyně a designérka Linda Retterová stojící za značkou ROE. Grafický podklad obohatily červené kresby rozverných pejsků, kočiček, skákajících míčů nebo rozkvetlých kytiček. Výsledkem je kultivované dílo, které navozuje dětský svět, ale neotráví dospělé.

Vytvořit takto vlídný prostor vyšlo Červený Kostelec na 35 milionů korun. Na město této velikosti jde o výraznou částku, během realizace se však podařilo získat podstatný podíl financí z dotačních programů. Ani ve chvíli, kdy se ukázalo, že technický stav budovy původního hostince je horší, než se předpokládalo, město od projektu neustoupilo. Knihovna tak prošla kompletní obnovou – a získala podobu, která má předpoklady sloužit dobře a dlouho.

  • Autoři: Jan Bárta, Šimon Bierhanzl, Marek Fischer
  • Ateliér: Papundekl architekti
  • Spolupráce: Elif Avcı, Lucia Čierna, Pavla Kejdanová, Kateřina Kollárová
  • Země: Česká republika
  • Realizace: 2025
  • Projekt: 2023
  • Adresa: Sokolská 293, 54941 Červený Kostelec
  • Projekt: 2023
  • Realizace: 2025
  • Užitná plocha: 649 m²
  • Obestavěný prostor: 3650 m³
  • Náklady: 35 000 000 CZK (~EUR 1,400,000)
  • Fotograf: Alex Shoots Buildings
  • Grafický design: David Babka, Ilja Bažanov
  • Výtvarná spolupráce - textilní strop: Linda Retterová (ROE) + děti ze ZUŠ Červený Kostelec

Mohlo by vás zajímat

Generální partner
Hlavní partneři