Architekti nechtěli přispět změně obrazu jihomoravské obce, na její návsi proto navrhli dům vycházející z tradice místa
Archetypální silueta, drobné měřítko a tradiční materiály – těmito faktory se řídili architekti ze studia CL3, když navrhovali rodinný dům uprostřed Dolních Dubňan na jižní Moravě. Novostavbu nakonec rozdělili do dvou hmot, díky čemuž výsledný dům nepůsobí nepatřičně velký.
Adéla Vaculíková , 7. 6. 2023
Rodinný dům na návsi v Dolních Dubňanech je smířlivým gestem současných architektů, kteří nechtěli přispět k rozkladu původního charakteru lokality. Velké rodinné domy, které nahrazují ty původní menší, postupně mění tvář mnoha českých obcí. Objekt v Dolních Dubňanech, ačkoliv jde o novostavbu, ovšem pokorně přebírá tvar a proporce domku, který zde dříve stával.
Více k tématu
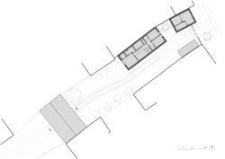
„Náves v Dolních Dubňanech pomalu ztrácí svůj původní charakter. Okolní stavby, které se do ní orientují a udávají tvář jejímu prostoru, nerespektují její měřítko a obraz. Současný dům nemusí vytvářet pitoreskní chaloupku, ale nesmí svým měřítkem, charakterem a umístěním uškodit výrazu návsi,“ říkají architekti Radek Pasterný a David Bureš z ateliéru CL3. Sami přitom potřebovali, stejně jako tomu bylo v případě domů v okolí, navrhnout větší objekt, než by bylo pro místní zástavbu příznačné. Na podlouhlém pozemku proto nakonec vyrostly novostavby dvě – první menší, směřující do návsi, druhá delší a širší, která v sobě obsahuje hlavní obytné prostory využívané pětičlennou rodinou.
Na parcele ve skutečnosti stojí objekty hned tři, pozemek uzavírá původní zrekonstruovaná stodola. „Parcela nabízí klasické členění úzkého pozemku na návsi v regionu – předzahrádka, dům, dvůr, stodola, zahrada, humna. V rámci pozemku samotného jsme pak chtěli zachovat jeho průjezdnost z návsi až na humna. Bereme tuto možnost jako výsadu, kterou je zde potřeba zachovat,“ říkají architekti.

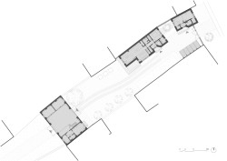
Siluety domů pohledově vytvořily harmonické seskupení nejen navenek, ale také uvnitř pozemku. Do hmot domů jsou zapasované kryté vstupy a terasa s posezením. Všechna taková místa jsou pak zvýrazněna dřevěným obložením. Přírodní materiál v kombinaci s bílými omítkami a červenou střechou na místě působí stejně patřičně jako tvar a skladba domů. „Bílá hladká omítka s červenou střechou s pálenou krytinou tento dojem umocňují a ukazují na propojení současných materiálových řešení se starými způsoby stavění. Vyříznuté objemy obložené dřevem jsou chápany jako přechod mezi exteriérem a interiérem domu, respektive dvorem,“ odůvodňují volbu materiálů architekti.

Možnost roztrousit novostavbu do vícero hmot a dát tak objektu měřítko vycházející z povahy lokality zvolila také architektka Soňa Urbánková ve Skaličce u Tišnova. Pro náves malé obce tak navrhla obecní dům, který má s rodinným domem od ateliéru CL3 společnou také volbu materiálů. Bílé omítky a střechy s červenými pálenými střechami zde jako třetí dominantní materiál nedoplňuje dřevo, ale plech. V celkovém pojetí se však opět jedná o objekty, které pracují se vzájemným propojením, krytými venkovními prostory formou výřezů a celkovou srozumitelností, která do lokality přináší něco nového s ohledem na její tradiční obraz.
- Ateliér: CL3
- Autoři: Radek Pasterný, David Bureš
- Spolupráce: Nicol Gale, Kateřina Kunzová
- Země: Česká republika
- Město: Dolní Dubňany
- Projekt: 2015
- Realizace: 2018