Dům Oskar v barokní zahradě. Každodenní život je tu zážitkem
Dům Oskar sousedí se zámkem v Kamenné Lhotě. Architekt Jan Žaloudek ho vybudoval pro sebe a svou rodinu, aby tu mohli relaxovat i tvořit. Nabízí ho také k pronájmu a na umělecké workshopy.
Sára Kročková , 25. 3. 2025
Zahrada sousedící se zámkem a v ní torzo barokní stodoly a staleté vzrostlé stromy. Lemuje ji mohutná kamenná zeď. Ústí do malebné venkovské krajiny. I proto se stala kulturní památkou.
A právě v této zahradě, jež původně patřila zámku v drobné jihočeské vesnici Kamenná Lhota, vyrostl Dům Oskar pojmenovaný po kosmopolitním skladateli Oskaru Nedbalovi. Ten v sousedním zámku zkomponoval operetu Polská krev.

Vzhled domu podmínila lokální topografie, architekt ho zasadil do krajiny a historického kontextu tak, aby nezastiňoval zámek. Formální inspirací mu byla kaple – sakrální stavba, která ve vesnici chybí.
Dům poučený tradičním venkovským tvaroslovím má podélnou formu a sedlovou středu s červenými pálenými taškami. Cituje prvky lokálních hospodářských stavení – perforované zdivo s otvory pro prostup světla a vzduchu. Niky zase odkazují na všudypřítomné baroko. Na okolní objekty navazuje svým odstínem i strukturou bílá štuková omítka fasády.

„Filozofii domu vystihují slova kontemplace-inspirace-rekreace,“ říká architekt Jan Žaloudek, který dům postavil pro sebe a svou rodinu a dodává: „S mojí ženou jsme toužili po místě, kde se člověk může otevřít krajině nebo se ponořit do sebe a zregenerovat tak svoje tělesné a duševní síly. Po místě, které nevybízí pouze k odpočinku, ale je také zdrojem inspirace a kreativity. Chtěli jsme stvořit místo, kde se i ty nejobyčejnější denní úkony přetaví v malý zážitek. Svébytný mikrokosmos, kde se dobře spí, čte, stoluje i tvoří, fungující v symbióze s vesmírem za okny.“
Atmosféra domu se v průběhu dne mění v závislosti na přírodních cyklech a pohybu slunce. Ložnice a hlavní obytný prostor se otevírají na východ. Výhled do ovocné zahrady tak ráno doplňuje východ slunce. Jižní fasáda s perforovaným zdivem a kruhovým oknem zprostředkovává kontakt se dvorem a ruinou stodoly. Do domu se vstupuje ze západu. Západní část domu se orientuje do vesnice. Architekt se ji rozhodl uzavřít a zajistit tak domu klid a soukromí. Zaklenutá nika v severním štítu odkazuje na zakřivené formy blízkého barokního zámku a propouští světlo do ložnice a koupelny.
Množství slunečního světla proudícího do interiéru lze regulovat pomocí dřevěných stínících panelů z nabílené české jedle a smrku. Dům lze buď široce otevřít do krajiny, nebo uzavřít a podtrhnout tak jeho meditativní charakter, kde si hraje světlo a stín. V noci zase objekt díky perforovaným panelům a zdivu září do krajiny.
„Za vnějším tradičnějším tvaroslovím domu se skrývá originální interiér inspirovaný sakrálními stavbami. V kontrastu k bílému vnějšku, je dům uvnitř teplý a oblý. Hlavní prostor překvapí velkoryse zaklenutým stropem, jehož výška dosahuje sedmi metrů. Vertikalita prostoru zpřítomňuje sakrální inspiraci. Další parafrází chrámové architektury je kruhové okno prorážející jižní štít domu. Úběžníkem interiéru je zakřivená dřevěná kuchyně s ostrůvkem z indické žuly shivakashi evokujícím kostelní mensu. Na jídelnu s dubovým stolem a židlemi ze zdi shlíží řezba Madony. Naproti je situovaná relaxační část s pohovkou nabízející výhledy jak do krajiny, tak do dvora s ruinou. Pohovku rámuje tapisérie z nebarvené ovčí vlny,“ popisuje sakrální inspiraci interiéru Jan Žaloudek.

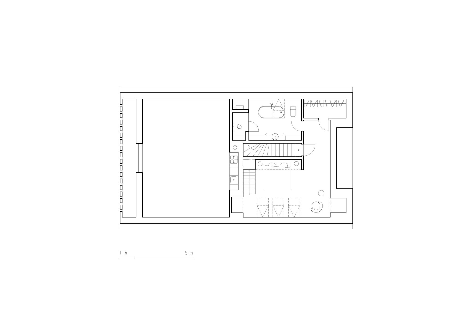
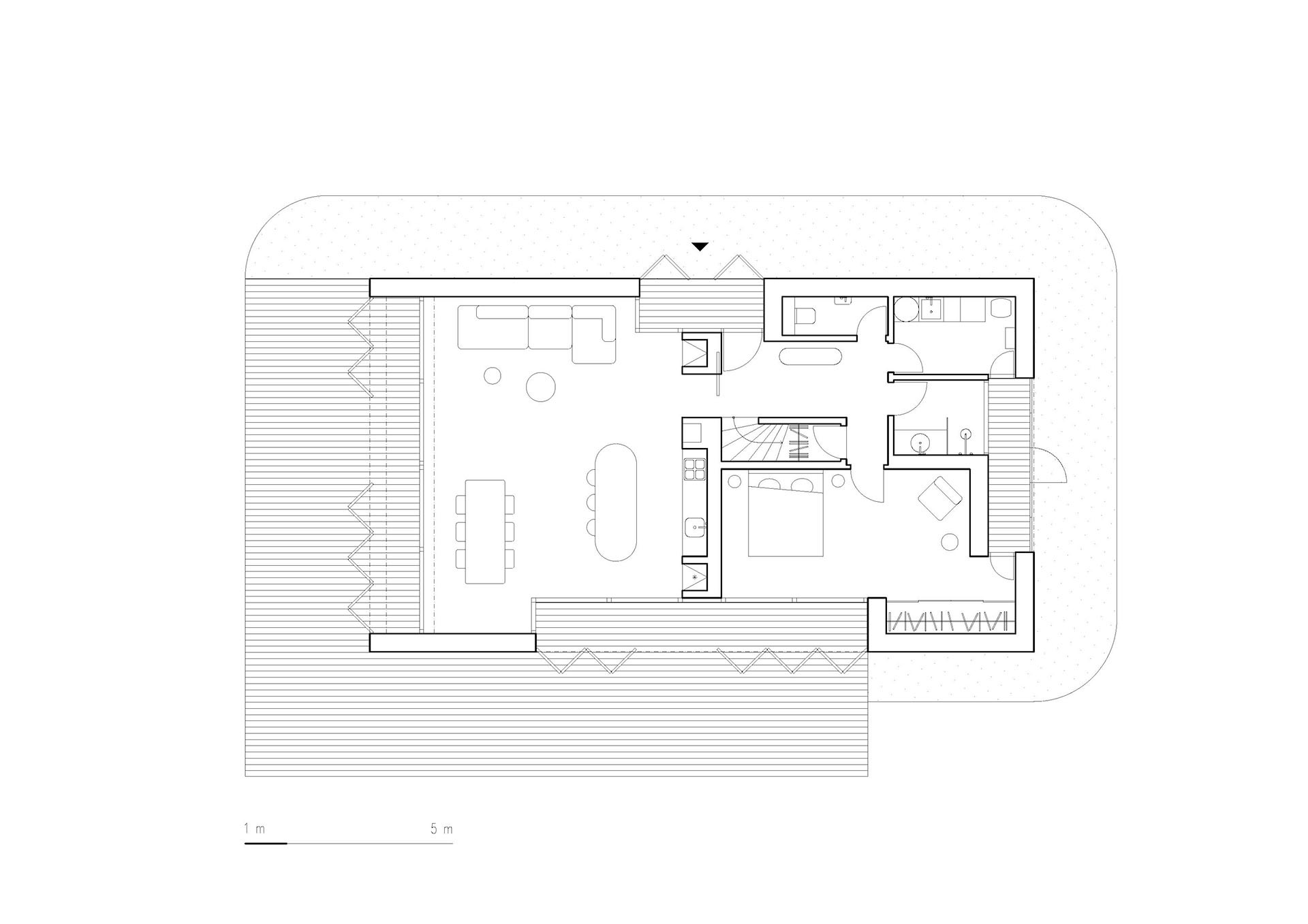
V přízemí se kromě hlavní společenské místnosti nachází i koupelna, technická místnost a jedna z ložnic. V patře je dále samostatný apartmán s ložnicí, koupelnou a ateliérem. Celým domem se prolíná autorsky navržený nábytek.
Umění hraje v životě rodiny významnou roli. Hned po vstupu do domu návštěvníky uvítá dřevěná ceremoniální maska z Gabonu. V hlavní místnosti se kromě jiného vyjímá africká stolička vyřezaná z jednoho kusu dřeva a autorská keramika Martina Hanuše. V patře se na travertinových podstavcích vyjímají kamenné sochy Vandy Hvízdalové. Ložnici a podkroví osvětlují sochařské lampy Akari designéra Isama Noguchi. V domě najdeme i rozsáhlou sbírku knih o umění.
Více k tématu
Dům Oskar není obyčejný rodinný dům. A to si uvědomují i jeho majitelé architekt Jan Žaloudek a kunsthistorička a spisovatelka Jolanta Trojak. Radost z něj proto chtějí sdílet s ostatními. Do unikátního Gesamtkunstwerku zvou buď formou klasického pronájmu nebo uměleckých rezidencí, pop upů a workshopů a těší se, že kolem domu vznikne podnětná komunita kreativních a inspirativních lidí.
- Ateliér: Jan Žaloudek Architekt
- Autoři: Jan Žaloudek
- Země: Česká republika
- Umístění projektu: Kamenná Lhota, 391 33 Borotín
- Projekt: 2022
- Realizace: 2025
- Zastavěná plocha: 180 m²
- Hrubá podlahová plocha: 171 m²
- Užitná plocha: 154 m²
- Plocha pozemku: 8504 m²
- Náklady: 18 mil. CZK
- Investor: Jan Žaloudek a Jolanta Trojak
- Fotograf: BoysPlayNice
- Portréty: Hana Knížová
- Stavební projekt: Projekty S+S
- Zahradní architektura: Atelier Rouge
- Pohovka Quilton: HAY
- Židle Norr11, jídelní stůl Oku, kávový stolek Gear: Norr11
- Světlo Kurbis, koberec Athens, křeslo Rico: ferm LIVING
- Světlo Studio Line: BEGA
- Koberec no. 07: Cappelen Dimyr
- Světlo Konoha: Marset
- Židle Easy: Frama
- Světla Akari 10A, Akari 1A: Vitra
- Umyvadlo Lola Red Travetine, Sokly Travertin: TALKA
- Povlečení Nieve: MARIELI
- okna: SCHÜCO