
Typový dům, který sluší každé vesnici. Vytvořil ho architekt Michal Šiška
Kouzlo českého venkova mizí, vesnice se často proměňují k horšímu. Staví se, ale bez architektů. Michal Šiška věří, že i tak se to dá udělat dobře – a vymyslel projekt, který vesnici neškodí.
EARCH.CZ , 21. 9. 2023
„Náš venkov je ničen zástavbou, možná horší než kdy dříve,“ uvádí svůj projekt venkovského domu architekt Michal Šiška. Snaží se najít řešení pro situaci, kdy nám tradiční venkovské formy a původní urbanistické struktury vesnic takřka „mizí pod rukama.“
Více k tématu
Tradiční vesnice dostala rány už za socialismu, dokonala to živelná výstavba po roce 1989. Individualismus přebil tradiční charakter a uměřenost. Dnešní venkov připomíná zmatek forem, tvarů a barev všemožných odstínů. Nutno ale podotknout, že ani architekt není sám o sobě zárukou zdařilého výsledku.

„Je třeba si přiznat, že většina stavebníků architekta nepotřebuje, nevěří mu, nebo si ho nemůže dovolit (hypotéky například projekt nekryjí). Přesto staví,“ pokračuje Michal Šiška, kterého pohled na takový venkov upřímně bolí. A tak se rozhodl přispět svým dílem k možnému zlepšení situace.
Jako svůj příspěvek „namísto akademických lamentací“ nabízí alternativu komerčních katalogových projektů – lapidární úspornou variantu venkovského domu vycházející z tradičních forem, tvarosloví a materiálů. Ten se namísto individualismu a nepřeberného množství forem „katalogáčů“ bez sebemenší vazby na své okolí, snaží navázat na kontext i přesto, že se jedná o obecný projekt bez konkrétního místa.
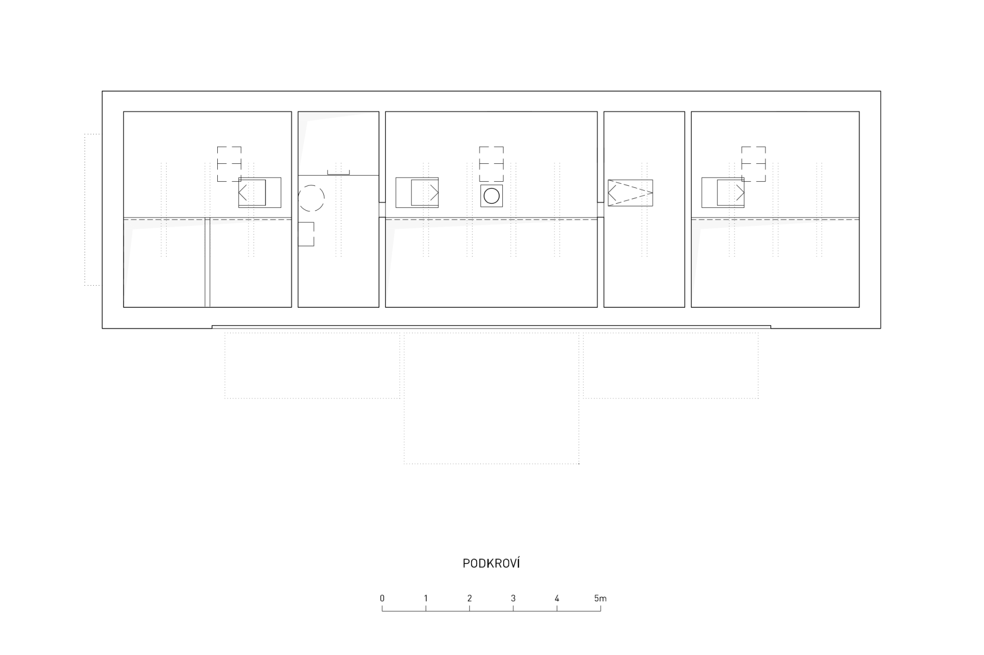
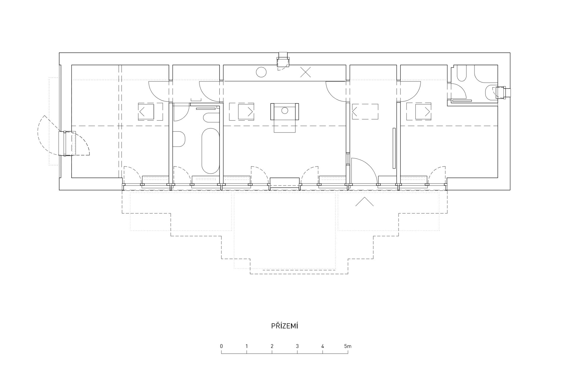
Projekt domů vychází z tradičního tvarosloví českého venkova – červená střecha z pálených tašek, vápnem bílené stěny s hrubými texturami a plaňkový plot. Dispozičně je obdélníkový dům uspořádán tak, že mají všechny pokoje lineárně řazeny za sebou přístup na zahradu. Každý z pokojů je navíc vybaven jakousi „půdičkou“ neboli galerií s patrem na spaní, přístupnou skrze strmé „žebříkové schody“.

„Projekt venkovského domu je určen stavebníkům, kteří chtějí bydlet v domě tradičních forem, materiálů a principů, nevyužijí individuální služby architekta, ale nechtějí uškodit místu, kde budou žít,“ uzavírá svůj projekt architekt Šiška. Je tedy potřeba doufat, že se jako společnost i jako jednotlivci pokusíme více navazovat na původní logiku venkovských míst a sídel, které mají svou specifickou atmosféru a ducha.
- Autoři: Michal Šiška
- Země: Česká republika