Ohlédnutí do "devadesátek". Jak vypadá vila od Ladislava Lábuse po čtvrtstoletí
Vilu ve Vonoklasech známe z 90. let - z architektonických časopisů, knih a ročenek. Jak vypadá po šestadvaceti letech užívání? Zajímalo to i redaktory magazínu ERA21. Navštívili tento a některé další známé domy z té doby a pátrali po jejich dalších osudech. Přinášíme ukázku - další příběhy domů najdete v magazínu ERA21#04 2023 Rodinné domy dnes II.
ERA21 / Hana Lesáková , 3. 11. 2023
Červencové odpoledne ve Vonoklasech provázel zvláštní pocit déjà vu. Svou nevtíravostí, propojenými prostory, které se plynule přelévají v několika výškových úrovních, devadesátkovou atmosférou a také neskrývanou inspirací v amerických vilách Franka Lloyda Wrighta – tím vším nám tento dům okamžitě připomněl loni navštívenou vilu v Černošicích od Markéty Cajthamlové a Lva Lauermanna. Ostatně obě stavby vznikly ve stejném období téměř na dohled jedna od druhé – vzdušnou čarou je od sebe dělí jen asi pět kilometrů.
Více k tématu
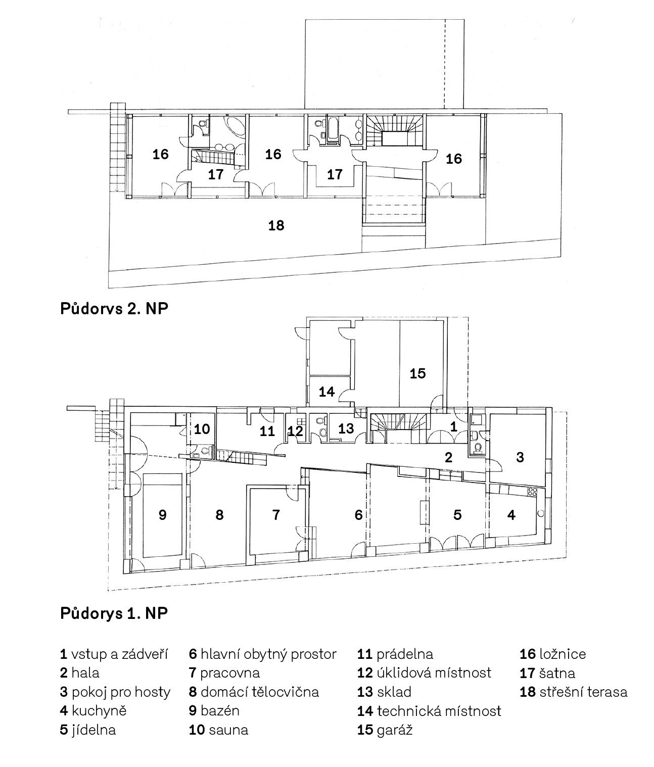
Podobně jako tomu bylo v Černošicích, i vilu ve Vonoklasech jsme zastihli o něco prázdnější, než jak fungovala v prvních zhruba deseti letech po dostavbě. Děti vyrostly a založily si vlastní rodiny, takže dům dnes obývají původní investoři sami. Kromě toho, když hlídají vnoučata, která si prostor okamžitě přivlastní hračkami a halekáním. Na svátky se pak sjíždí příbuzenstvo včetně dospělých. Pohodlně tu může pobývat i deset lidí najednou. Což se ostatně udává jako základní rozdíl mezi rodinným domem a vilou – ta má nabízet právě prostory ke společenskému setkávání ve větších počtech, případně k delšímu ubytování hostů v oddělených pokojích.
„Nafukovací“ kapacitu domu majitelé vrchovatě prověřili v době pandemie covidu-19, kdy se k rodičům krátkodobě vrátila dcera s dětmi a obě rodiny tu trávily období lockdownu. V tísnivé atmosféře všichni ocenili luxusní dostatek prostoru – výhodou je i obrovská zahrada. S výměrou přes 4 000 m² připomíná spíš lesopark než zahradu za domem. Velkorysost podporuje i krajinářské řešení Mikoláše Vavřína, okořeněné skulpturami Čestmíra Sušky. Nikde ji navíc nehyzdí výrazný plot nebo zeď – směrem k jihu vizuálně navazuje na zalesněné svahy přírodní památky Krásná stráň a od okolních parcel ji oddělují zdi zarostlé zelení.

Vily pro VIP
Ladislav Lábus patří bezesporu k nejvýraznějším osobnostem místní architektonické scény, byť těžiště jeho realizovaných staveb nalezneme spíš v nultých letech tohoto století. Jeho rekonstrukce paláce Langhans v Praze z roku 2002 byla zjevením, které na mě udělalo v počátcích mých architektonických studií zásadní dojem, od té doby pravidelně oprašovaný procházením Františkánskou zahradou. Mimo praxi se Lábus zároveň zasloužil o výchovu několika generací českých architektů a architektek svými třemi desítkami let na akademické půdě, z toho osm let (2014–2022) ve funkci děkana Fakulty architektury ČVUT v Praze. Vila ve Vonoklasech byla však jeho prvním projektem rodinného domu.
Pozemek na ulici Ke Krásné stráni byl jednou z deseti nadstandardních stavebních parcel, které zde nechal na počátku devadesátých let vymezit rakouský bankéř, developer a podnikatel Heinrich Sittler. Tehdejší generální ředitel české pobočky banky Crédit Lyonnais ale nechtěl jen skoupit pole a rozprodat je na parcely. Plánoval ve Vonoklasech vytvořit luxusní vilovou enklávu podobnou pražské Babě nebo Ořechovce. Kromě velkorysých pozemků se tak věnoval i urbanistickému detailu (ulice dnes lemují živé ploty a nízké zídky z lícových cihel, do nich jsou zabudované elektrické přípojky, křižovatka je rozšířena na malý plácek pro parkování se vzrostlými stromy v rozích). Pod urbanistickým řešením z roku 1996 byl podepsán tehdy mladý architekt a urbanista Petr Hlaváček. Sittler pak jednotlivé parcely (s výměrami zhruba od 3 do 4,5 tisíce metrů čtverečních) rozprodával spřáteleným investorům, kterým rovnou doporučoval skupinu vybraných architektů. Mezi nimi nechyběli Alena Šrámková, Josef Pleskot, Michal Sborwitz či právě Ladislav Lábus.

Dnešní majitelé vily na první setkání s Ladislavem Lábusem vzpomínají s úsměvem – působil prý jako zamlklý a hloubavý typ. Do spolupráce se tak zrovna nehrnuli. Ke stavbě se však nakonec rozhoupali s určitým odstupem a tehdy na oslovení reagoval jako první a pečlivým přístupem si brzy získal jejich důvěru. Dnes spolu s dalšími majiteli Lábusových vil tvoří dokonce jakousi komunitu a pravidelně se scházejí na jeho narozeniny. Dle zvláštní tradice se nepředstavují skutečnými jmény, ale stylem: „Dobrý den, vila Vonoklasy.“ „Dobrý den, Roudnice.“ „Dobrý den, vila Nespeky.“
Výjimečné stavby se vždy rodí postupně a jsou výsledkem určitého procesu zrání a ladění se obou zúčastněných stran, architekta i investora. Je pravda, že tento výsledek pak může být pro nezasvěcené okolí překvapením. To ilustruje třeba úsměvný rozhovor kolemjdoucí s architektem při jednom z kontrolních dnů na stavbě: „Můžu se zeptat, co to bude?“ „A copak si myslíte?“ „No buď to bude samoobsluha, nebo benzinová pumpa.“ Sami investoři se prý s představami architektů o moderním domě s plochou střechou doopravdy sžili až při své pracovní cestě do Spojených států, kde měli možnost navštívit mnohokrát citovanou Vilu nad vodopádem. Tam prý konečně pochopili, o co architektům jde.

Dům obraz
V případě Vonoklas se výsledkem procesu zrání stal velmi originální a velmi komponovaný dům. Původní fotografie Jana Malého vypadají téměř jako obrazy. Možná zatoulaná díla amerického realisty Edwarda Hoppera, kde se život také odehrává na pozadí geometrických ploch a výrazné hry světel a stínů. Vstoupit do takového obrazu je nevšední zážitek. Ocitáme se uvnitř kompozice barevných stěn a tónovaných skel, proplouváme místnostmi, vznášíme se světlíkem pracovny. Cestou po schodišti žasneme nad elegancí konstrukčních gest. A jako badatelé se zvětšovacím sklem, nosem nalepeni na plátně, abychom v detailu malby rozeznali tahy štětce a zrnka pigmentu, osaháváme stěny a kliky, zvedáme pohledy ke stropu a hned zase kontrolujeme detaily zahradního chodníčku. A po pečlivém ohledání nezbývá než jásat, jak promyšleně a sebejistě působí architektura obrazu i při pohledu zblízka. Tlumeně barevné plochy rozkvétají strukturami kletovaných omítek a kresbou dřeva. Jednoduché detaily okouzlují kombinací hravosti a preciznosti v návrhu i provedení. Za vším je cítit pečlivá práce a radost z ní.
Příjemnou návštěvu jsme lehce přetáhli. Vila ve Vonoklasech v nás zanechala dojem místa, kde by se dalo snadno ztratit. Ne že by byla tak velká nebo nepřehledná. Jen je v ní toho tolik k objevování.
- Ateliér: Lábus AA
- Autoři: Ladislav Lábus, Lenka Dvořáková
- Země: Česká republika
- Město: Vonoklasy
- Investor: soukromá osoba
- Projekt: 1996
- Realizace: 1998
- Plocha pozemku: 4 300 m²
- Zastavěná plocha: 350 m²
- Podlažní plocha: 424 m²