
Na pomezí Vinohrad a Strašnic. Nový městský komplex Hagibor propojuje bydlení, práci i zeleň
Snadná dostupnost do centra města, centrální bulvár plný kaváren a obchodů a promyšlená krajinářská architektura. Hagibor přetváří zanedbaný brownfield v živou městskou strukturu, kde se mísí bytové domy, kanceláře i veřejné prostory.
EARCH.CZ , 3. 4. 2025 / Advertorial
Na pomezí tradičních pražských rezidenčních čtvrtí Vinohrady a Strašnice vzniká nová městská oblast. Komplex Hagibor roste na zanedbaném brownfieldu. Tam, kde dříve stály nevyužívané sklady a garáže, dnes stojí moderní administrativně-rezidenční čtvrť. A její uživatelé to mají pouhé tři minuty do metra Želivského.
Za návrhem rezidenční části stojí architektonické studio Ian Bryan Architects. Kanceláře a celkový masterplan vznikly pod vedením mezinárodního architektonického studia Bogle Architects. Developerská společnost Crestyl přizvala do týmu i jednoho z nejvýznamnějších světových krajinářských architektů Michela Desvigne. Veřejný prostor vnímá jako klíčový prvek pro život. Díky vegetaci má každý uživatel i návštěvník Hagiboru rozeznat hranici veřejného a soukromého, kde je prostředí intimní a klidné, a kde živelné a komunitní. Spolu s Michelem Desvigne na projektu spolupracovalo české studio L&SCAPE, jež vede krajinářská architekta Štěpánka Endrle.
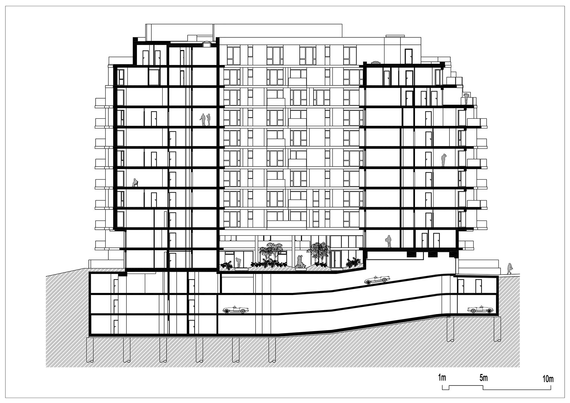
Jedna z nedávno dokončených etap přispěla Praze dalšími byty. Rezidenční budovy Gamma a Delta nabízí celkem 272 bytů a obchodní prostory v parteru. „Budova Delta navazuje na uliční čáru podél ulice Počernická a nad dvoupodlažní základnou je rozdělena do tří hlavních hmot. Kompozice je svázána silnými horizontálními liniemi vytvořenými průběžnými balkony, které jsou přerušeny vertikálními lamelami zajišťujícími zastínění, soukromí a akustickou pohodu. Na rozdíl od Delty je vyšší budova Gamma vzadu expresivnější, oproštěná od zdvořilého výrazu. Zde je výraz téměř krystalický. Diagonálně rozmístěné balkony tvoří silnou a dramatickou kompozici,“ říká o realizaci architekt Ian Bryan.

Právě terasy a balkony sehrály při návrhu významnou roli. Jako jedna z nejvýše položených lokalit Prahy přináší Hagibor svým uživatelům cenné výhledy na pražské panorama nebo také do zeleného parteru, jež architekti navrhli ve spolupráci s francouzským krajinářem Michelem Desvigne.
Více k tématu
Použité produkty
Objekty Gamma a Delta nabídnou desítky bytů s terasami a balkony. Jejich realizace ale přináší technické výzvy spojené s členitostí fasády a konstrukčními řešeními.
Jedním z klíčových aspektů výstavby je využití pokročilých technologií bednění a lešení, jež umožňují efektivní a bezpečný průběh stavby. Společnost PERI se na projektu podílela dodávkou systémů pro monolitické konstrukce, včetně rámového bednění TRIO pro stěny a nosníkového systému MULTIFLEX pro stropy.

Náročným úkolem bylo podepření nepravidelně rozmístěných balkónů, které si vyžádalo precizní návrh podpěrných konstrukcí. K tomuto účelu bylo využito flexibilní modulové lešení PERI UP Flex, které se dokáže přizpůsobit i komplikovanějším podmínkám. Kvalitní technická příprava a včasné dodávky materiálu umožnily dodržet harmonogram výstavby, což potvrzuje i Pavel Švec, stavbyvedoucí společnosti Metrostav: „Spolupráce s firmou PERI nám velice pomohla zejména při technickém řešení velice členité fasády. Díky včasnému dodání velkého množství bednění a lešení jsme byli schopni dodržet náročný časový harmonogram.“
- Autoři: Ian Bryan, Eduard Trembulak, Michal Němec, Peter Hričovec, Katarína Chalániová, Ondřej Michálek, Hana Tihonová, David Hruška
- Ateliér: Ian Bryan Architects, Bogle Architects
- Země: Česká republika
- Město: Praha
- Realizace: 2022 – 2024
- Krajinářská architektura: Michel Desvigne, L&SCAPE
- Autor masterplanu a kancelářských budov: Bogle Architects
- Generální dodavatel: Syner
- developer: Crestyl Real Estate
- fotografie: Aleš Jungmann, Jakub Pelnař