Architektura / občanské stavby

Památník a muzeum v Rivesaltes

S Francií mají Čechy jedno společné: smutné dědictví internačních táborů ze druhé světové války, kterými jsou obě země posety. S tím, jak se u nás v poslední době začíná téma památníků opět skloňovat, namátkou v Brně, pražských Bubnech nebo v Letech, můžeme se po architektonické inspiraci poohlédnou právě ve Francii. Tam na místě tábora Rivesaltes vznikl pietní a zádumčivý památník, stojící na hranici mezi pouští a nebem, mezi minulostí a přítomností.

Rudi Ricciotti / Josef Řídký , 20. 2. 2017

„Ani zapomnění, ani odpuštění“ – tímto mottem Rudy Riciotti, autor památníku, uvozuje celý svůj projekt a pokračuje: „Vůči historii internačního tábora Joffre nemůžeme být nezúčastnění, nelze ji líčit jazykem, který by byl lhostejný k lidským dramatům, jež se zde odehrávaly. Proto má památník působit tiše i tíživě zároveň. Je zde proto, aby přijímal rány za ostatní. Pro ty, kteří zmizeli. Musí být něčím, co ztělesňuje zodpovědnost paměti.“

Památník je zapuštěn v zemi, čelem k někdejšímu bloku F. Působí tiše, klidně, nedotknutelně, míří jakoby do nebes. Do země je zapuštěn, ale zároveň z ní vystupuje. Při vstupu do tábora se zpočátku jeví jako přirozená součást zemského povrchu, ale jak se budova protahuje směrem k východu, kde se krajina svažuje, totiž směrem k někdejšímu shromaždišti, vystupuje z terénu do prostoru a srovnává svou výšku s kolemstojícími vězeňskými baráky. Tímto uspořádáním nepřekrývá ani se nesnaží přetáhnout pozornost od dosud stojícího bloku F.

Památník tábora Rivesaltes je stlačen mezi zemí a nebem, mezi minulostí a pamětí a zároveň se, slovy autora, nachází „v přítomnosti samotného života“. V pouštním prostředí východních Pyrenejí, jen několik metrů stranou, už po táboru není ani památky. Formální drsnost památníku demonstruje nemožnost zapomenutí: vymazanou paměť vynáší na světlo a zvěčňuje.

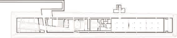
Jediným strukturním projevem celé stavby je spojitá betonová konstrukce. Celý památník je jediným okrovým betonovým monolitem, odlitým přímo na místě. Masivní dojem materiálového provedení byl dosažen technologií, jež zabraňuje „kazům“ vznikajícím při bednění. K památníku se přistupuje uhýbavou, nepřímou stezkou, přes rampu, která je částečně zapuštěná do země a končí náhle přerušeným tunelem. Návštěvník je doslova vržen před 240 metrů dlouhý vězeňský barák. Z památníku nejsou žádné výhledy do krajiny, pouze do nebes. Tři dvory strukturují rozvržení studoven, společenských prostor a kanceláří. Stavba, ač svým pojetím tíživá, tak svým uživatelům přeci jen poskytuje určité pohodlí.

  • Autoři: Rudi Ricciotti
  • Země: Francie
  • Město: Rivesaltes
  • Užitná plocha: 3 590.00m<sup>2</sup>
  • Plocha pozemku: 420 000.00m<sup>2</sup>

Mohlo by vás zajímat

Generální partner
Hlavní partneři