Architektura / občanské stavby

Muzeum tragédie v Katyni

Architektura, to nejsou jen radostné události, ale také závažné vzpomínky. Přesto, anebo možná právě proto, že se stavitelství nedokáže vyjádřit slovy, ale pouze svým materiálem, představuje architektura silný a působivý jazyk, kterým je možno naši příliš tíživou minulost tlumočit. Jedním z takových mnohomluvných a zároveň němých společníků je i památník a muzeum katyňské tragédie ve Varšavě, který se probojoval mezi pět finalistů evropské ceny architektury Mies van der Rohe.

BBGK Architekci , 16. 2. 2017

Muzeum vzniklo jako připomínka jedné z bolestivých epizod polských dějin, na památku oběti více jak dvaceti tisíc polských důstojníků a státních úředníků, které poblíž vesnice Katyň na začátku druhé světové války popravila sovětská tajná policie.

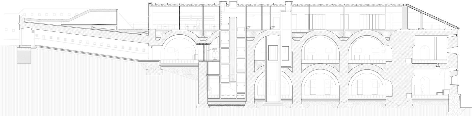
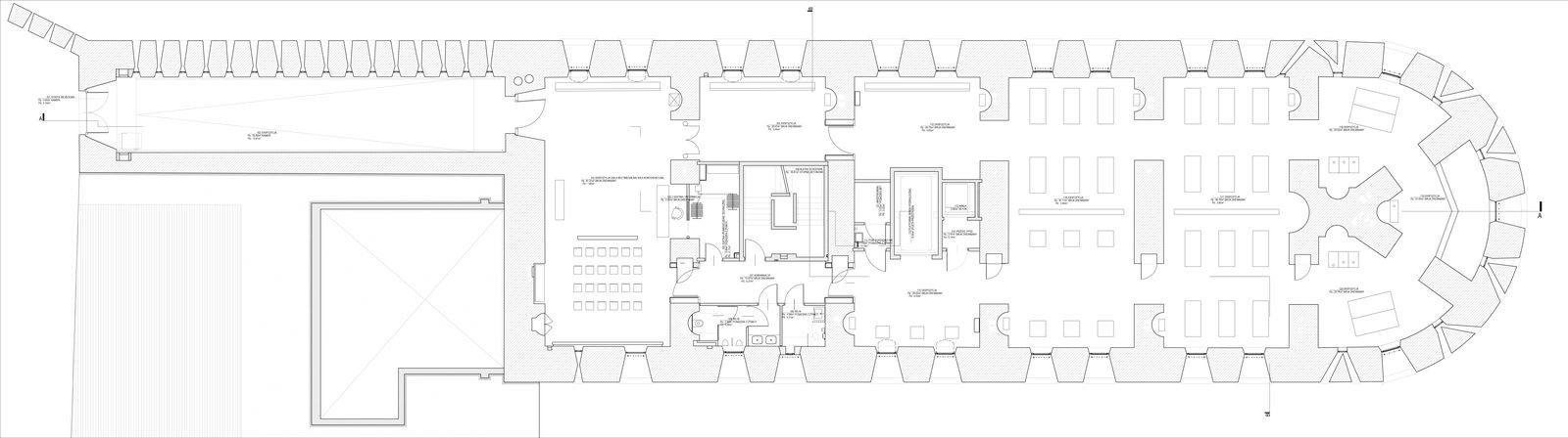
Muzeum tragédie v Katyni leží v jižní části varšavské pevnosti a sestává z celkem tří historických objektů. Celé zařízení je tvořeno parkem, v jehož středu je umístěn symbolický katyňský les (hromadná poprava se udála právě v lesích poblíž smutně proslavené ruské vsi). Vstup do areálu se nachází u Novoměstské brány, jež je pokračováním varšavské staroměstské cesty. Expozice muzea byla navržena ve dvou úrovních kaponiéry, cesty vedoucí starou zbrojnicí. Třetím objektem jsou podloubí střílny. Pět výklenků zde bylo zaskleno, aby v nich mohly být vystaveny pamětní desky se jmény popravených důstojníků.

Celkem 15 plaket, které lze v historických střílnách nalézt, připomíná 21 768 obětí katyňské tragédie a mlčky klade otázky po významu zla, dobra a odpuštění. Architekti sem záměrně vnáší silné architektonické výrazivo. Průrva mezi 12 metrů vysokými zdmi dramaticky protíná pevnost a nabízí cestu dvěma směry: dolů k výklenkům střílen, kde lze nalézt pamětní desky se jmény obětí; a nahoru, kudy otvírá pohled na nebe. V ose schodiště vedoucího celým řezem potom stojí dubový kříž – architektův epilog katyňského příběhu.

Prostředkem architektonického vyjádření se stává i samo formální provedení památníku: probarvený skvrnitý beton je umístěn všude tam, kde si to expozice žádá; artefakty osobní povahy, např. dopisy nebo náboje obětí, byly použity jako forma pro otisky v betonu. Celá stavba se snaží všemi prostředky sdělit pouze jedinou věc: krutost a rozsah zla spáchaného během katyňské události jsou svou závažností nesdělitelné.

  • Autoři: Jan Belina Brzozowski
  • Země: Polsko
  • Realizace: 2015
  • Město: Varšava
  • Datum projektu: 2013
  • Realizace: 2015
  • Užitná plocha: 3 966.00m2
  • Plocha pozemku: 27 000.00m2
  • autor: BBGK Architekci *
  • publikováno: * 16. 2. 2017
  • zdroj: * Mies van der Rohe Award

Mohlo by vás zajímat

Generální partner
Hlavní partneři