Pasivní rodinný dům od studia Stempel&Tesar odolává podmínkám Krušných hor
Na pozemku ve výšce 750 metrů nad mořem vyrostl nový rodinný dům z dílny architektonické dvojice Stempel&Tesar, která se při jeho návrhu nechala inspirovat tradičními principy místního stavitelství a architektury. Archetypálně vyhlížející dům s fasádou z tmavých, opalovaných modřínových prken doplnil krušnohorskou krajinu, do níž se nyní rozhlíží.
Tereza Hůrská , 22. 7. 2019
S rozrůstající se rodinou se manželský pár rozhodl vyměnit pronájem za pohodlí vlastního rodinného domu. Pro nový domov si manželé se třemi malými dětmi vybrali pozemek v Míšku blízko hranic s Německem, který jim okamžitě učaroval svými panoramatickými výhledy do zvlněné krajiny luk, pastvin a lesů obklopených hřebenem Krušných hor. Na klidné prostředí místní části horské obce Nová Ves v Horách již z dálky upozorňuje rotující hlavice větrné elektrárny.
S návrhem rodinného domu se manželé obrátili na architekty prof. Jána Stempela a Jana Jakuba Tesaře. Od první chvíle architekti kladli velký důraz na důvěrné poznání klientů a jejich přání, aby jim mohli nový dům ušít přímo na míru. Do přírodního prostředí Stempel & Tesař navrhli hmotově zcela jednoduchý objekt odpovídající charakteru tradiční venkovské zástavby, který však dokáže uspokojit i vysoké nároky na současné bydlení.
Více k tématu

Zásadní roli při tvorbě návrhu sehrálo umístění objektu na pozemku, které následně výrazně ovlivnilo také řešení vnitřní dispozice. Dvoupodlažní obytnou hmotu architekti orientovali souběžně s komunikací, která s domem sousedí při severní straně, kolmo k ní pak připojili přízemní garáž se zelenou střechou. Ta zároveň kryje také hlavní vstup do objektu. Díky této výhodné orientaci jsou veškeré hlavní obytné prostory situovány k velkoryse prosklené jižní stěně domu, která vedle panoramatických výhledů do krajiny zajišťuje také dostatečné prosvětlení daných místností.
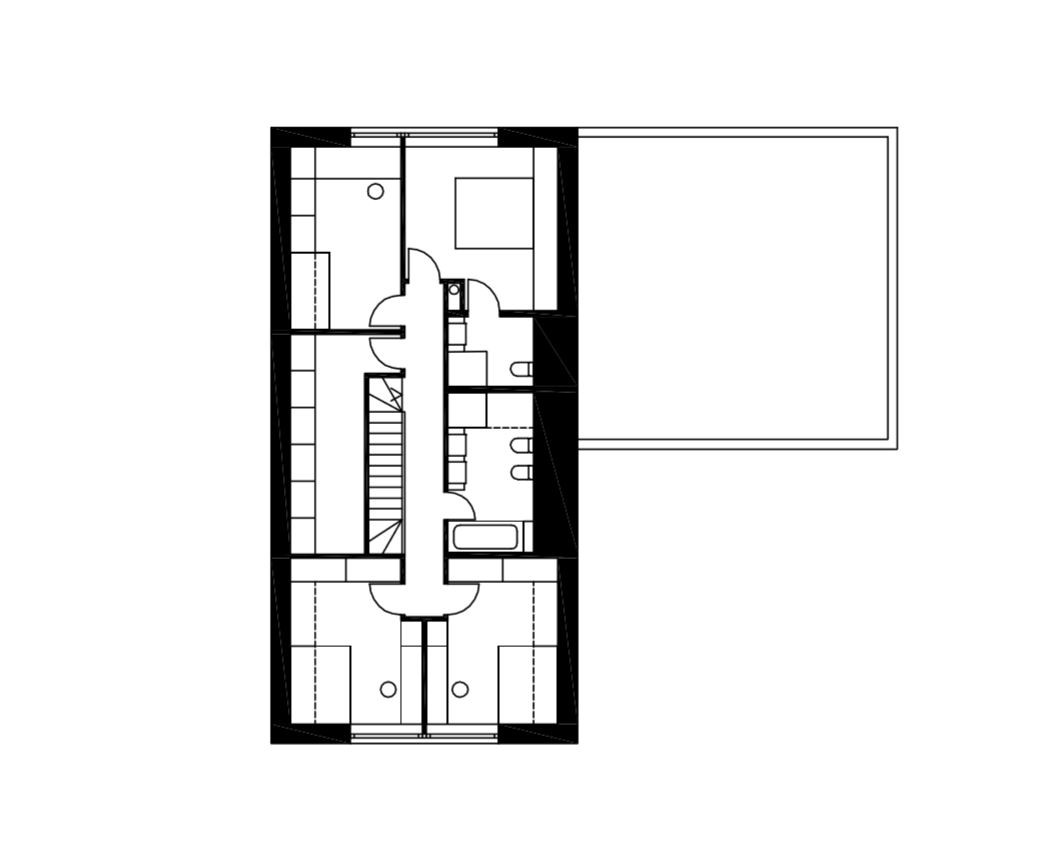
Srdce celého domu pak představuje zimní zahrada (resp. lodžie) mezi jídelnou a obývacím pokojem, kterou je díky posuvnému systému oken možno v příjemných letních dnech trvale otevřít a interiér tak plynule propojit s venkovním prostředím. Ke stěně lodžie těsně přiléhá elegantní zakřivené ocelové schodiště, po němž je možno vystoupat do druhého podlaží, kde se nacházejí soukromější prostory – ložnice, koupelna a tři dětské pokoje.
Jak v interiéru, tak i ve vnějším designu stavby hraje prim modřínové dřevo. Zatímco uvnitř se ve své přirozené masivní podobě podílí na útulné, leč vzdušné atmosféře, pro jeho venkovní užití ve formě fasádního obkladu architekti zvolili kontrastně tmavý odstín. Černé zbarvení prken odvětrávané dřevěné fasády způsobila zvolená povrchová úprava. K opalování se architekti přiklonili převážně pro jeho ekologickou šetrnost a tradici. „Opalování konzervuje dřevo, čímž se zvýší životnost jako nátěrem, který by se však musel v těchto klimatických podmínkách obnovovat. Současně je černý odstín reminiscencí na původní ošetřování fasád v této lokalitě – nátěry volskou krví,“ představuje výhody opalování Jan Jakub Tesař.
Tradice je také hledisko, které se odrazilo do výběru střešní krytiny. Architekti zvolili pálenou střešní tašku Tondach - Figaro, která díky svému šedému glazování dotváří kompaktní a čistý dojem stavby a svým jednoduchým tvarem odráží inspiraci tradiční krušnohorskou architektury. Stejně jako u volby fasády, i výběr krytiny doprovázela silná inspirace původním výrazem krušnohorské architektury.
Kromě vytvoření pohodlného domova, který svým architektonickým řešením nijak neruší původní ráz okolní krajiny se dvojici Stempel & Tesař navíc povedlo zrealizovat dům v pasivních standardech. Ve výšce 750 metrů nad mořem se tak nachází objekt, který navzdory náročným klimatickým podmínkám, kterým musí čelit, vykazuje minimální energetickou spotřebu.
Ekologický, nenáročný dům, vyhovující nárokům svých uživatelů, který na sebe zbytečně neupozorňuje a pokorně shlíží do přírody. Rodinný dům v Mníšku jen potvrzuje to, že kvalitní současnou architekturu lze najít i na těch nejméně předpokládaných místech.
Tento článek vznikl za podpory společnosti WIENERBERGER s.r.o.
Společnost Wienerberger s.r.o. má sídlo v Českých Budějovicích, odkud řídí služby, výrobu a prodej systému stavebních materiálů pro výstavbu zejména rodinných a bytových domů. V jedenácti závodech v České republice vyrábí cihelné bloky pro vnější a vnitřní zdivo, keramobetonové překlady a keramické polomontované stropy značky Porotherm a střešní krytinu značky Tondach. Náročnějším zákazníkům nabízí také lícové cihly (klinkery) a obkladové pásky Terca či cihlovou dlažbu Penter.
- Autoři: Ján Stempel, Jan Jakub Tesař
- Spolupráce: Aleš Herold
- Země: Česká republika
- Subdodavatel: TONDACH Česká republika s.r.o.
- Město: Nový Ves v Horách - Mníšek
- Datum projektu: 2014
- Realizace: 2018
- Užitná plocha: 245.00m2
- Zastavěná plocha: 198.00m2
- Plocha pozemku: 6 426.00m2
- fotografie: Filip Šlapal

