Architektura / rodinné domy

Pasivní rodinný dům ve Vraném nad Vltavou nabízí centrální "pec" s integrovanou knihovnou, krbem i linkou

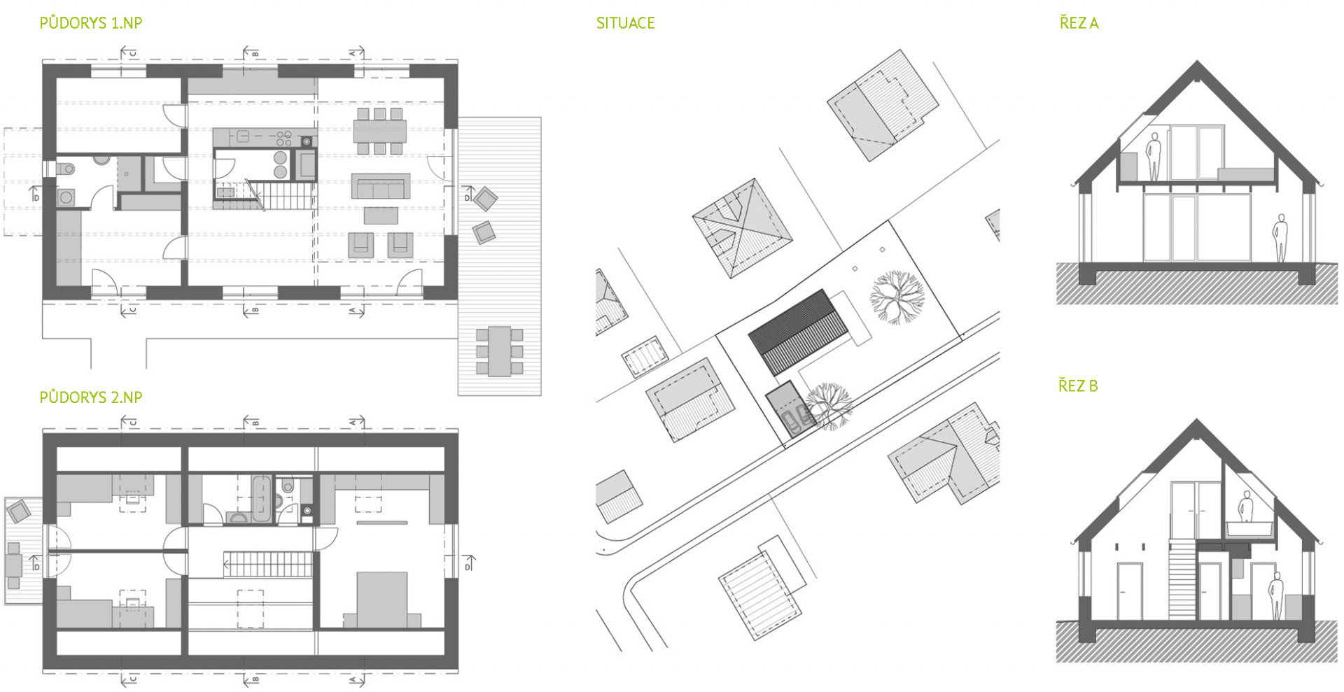
Návrh rodinného domu v obci Vrané nad Vltavou nedaleko Prahy založilo studio Kontinual na prověřených základních principech venkovských staveb, jako je například obdélníkový půdorys, sedlová střecha nebo boční vstup do domu. Orientace i tvar domu reaguje na místo samotné i novou okolní zástavbu. Propojený společný prostor obýváku, kuchyně a jídelny má přímý vstup na zahradu a najdeme v něm centrální "pec", do které je integrována kuchyňská linka, krb, knihovna i schodiště. Součástí projektu bylo také pracování zahrady, která navazuje na pojetí domu a kterou autoři popisují jako "tradiční venkovskou zahradu s moderním výrazem".

Kontinual , 23. 3. 2020

  • Autoři: Jan Medek, Pavel Pácalt
  • Ateliér: Kontinual
  • Spolupráce: Daniel Appel
  • Země: Česká republika
  • Realizace: 2015
  • Město: Vrané nad Vltavou
  • Měna: EUR
  • Datum projektu: 2013
  • Realizace: 2015
  • Užitná plocha: 154.00m2
  • Zastavěná plocha: 127.00m2
  • Zahrada: Lucie Medková
  • autor: Kontinual *
  • publikováno: * 23. 3. 2020
  • zdroj: * Autorská zpráva

Klíčová slova:

Generální partner
Hlavní partneři