
Pod Ještědem vyrostl nenápadně odvážný dům s fasádami z portugalského korku
Rodinný dům poblíž Ještědu je kontextuální, a přesto velmi netradiční. Stavba, která se otevírá velkými prosklenými plochami výhledu na Český ráj, je realizovaná jako železobetonový monolit a obklopená starými žulovými dlaždicemi. Sázka na kontrast se v realizaci ostatně uplatnila hned několikrát.
Adéla Vaculíková , 6. 10. 2022
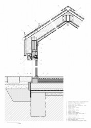
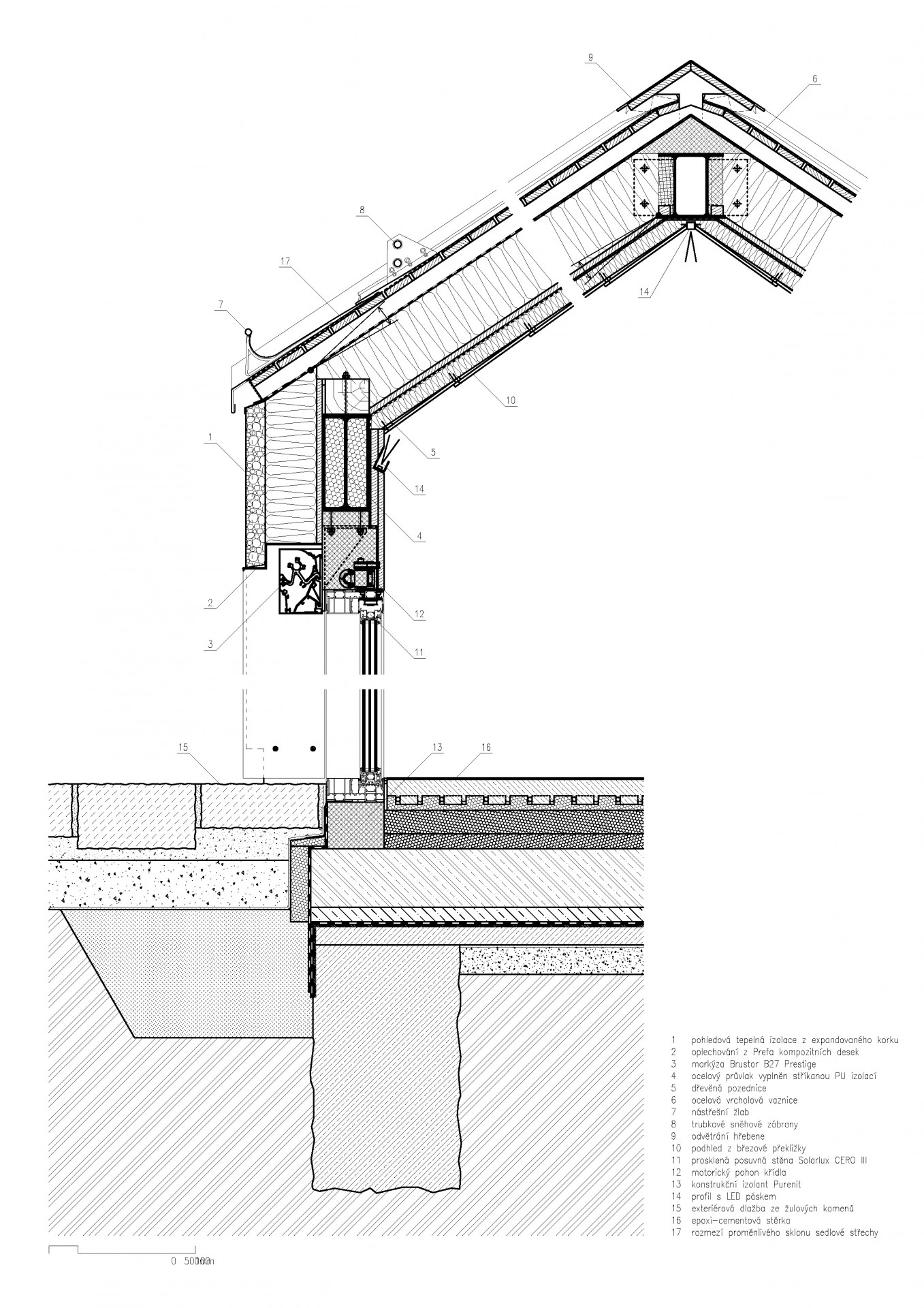
Rodinný dům od Atelieru SAD a designérky Ivety Zachariášové je nenápadný a výrazný zároveň. Jeho archetypální hmota posazená do svahu Ještědského hřbetu se skrývá za náspem silnice. Při průjezdu kolem je vidět pouze sedlová střecha s plechovou krytinou a fasáda obložená portugalským expandovaným korkem. „Tento materiál nebyl dosud v ČR takto použit,“ komentují situaci autoři.
Více k tématu
Místu, kde rodinný dům stojí, se říká „Na Rašovce“ – jelikož se jedná o svah s jižní orientací, příroda zde po zimě začíná „rašit“ výrazněji dříve než jinde. „Vše začalo objevením posledního stavebního pozemku na Rašovce před sedmi lety. Místo jsme již dříve znali, a jelikož jsme chtěli stavět co nejvýše směrem k Ještědu, vůbec jsme neváhali. Plno dalších prvků jsme již delší dobu nosili v hlavě: prosklené stěny, pohledový beton, strohý interiér, kovové prvky, zavěšený krb nebo otevřenou zahradu bez plotu,“ říkají o svém domě majitelé Iveta a Jan Zachariášovi.
Adam Jirkal a Tomáš Kubák z Atelieru SAD popisují, že chtěli dům koncipovat tak, aby do svého prostředí co nejlépe zapadl. Vedle tradiční siluety mu však vtiskli také několik ozvláštnění. Například východní štítovou stěnu nechali kompletně otevřít. Místo železobetonu, ze kterého byl dům na místě odlit jako monolit, použili sklo. Okna zasazená v subtilních profilech rafinovaně ustupují a přesah stěn a střechy tvoří přístřešek nad venkovní terasou.

Velkoformátová posuvná okna pak pokračují i na zahradní průčelí, interiér je tak neustále v kontaktu s okolní přírodou a výhledem na krajinu Českého ráje. „Výhled a propojení vnitřních prostor s krajinou byl jedním z určujících motivů při navrhování domu. Rovněž všechny další obytné místnosti přízemí, včetně koupelny, se prosklenými otvory na jižní straně otevírají krajině,“ říkají autoři.
Interiéry domu, za jejichž návrhem stojí společně s architekty z Atelieru SAD i designérka a majitelka domu v jedné osobě Iveta Zachariášová, jsou vzdušné a plné vybavení z ušlechtilých materiálů. Jádrem domu je prostorný obývací pokoj s kuchyní, jehož nejvýraznějším prvkem je otočný krb, který barevně ladí s antracitovými rámy oken. Na podlaze se nachází tmavá hnědočervená stěrka, která kontrastuje s venkovními pochozími plochami vydlážděnými starými žulovými kameny. „Podobně velkoryse byl kdysi vydlážděn celý Liberec,“ dodávají autoři.

- Autoři: Iveta Zachariášová, Adam Jirkal, Tomáš Kubák
- Ateliér: Atelier SAD
- Země: Česká republika
- Adresa:: Na Rašovce 70, Šimonovice
- Projekt: 2016-2019
- Realizace: 2020
- Zastavěná plocha: 158m2
- Plocha pozemku: 1685 m2
- Náklady: 17 000 000 Kč
- Klient: Iveta a Jan Zachariášovi