Architektura / bytové domy

Polyfunkční dům v centru Bratislavy od Architektů A B.K.P.Š. nabízí velkorysé terasy i strukturovanou fasádu

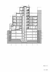
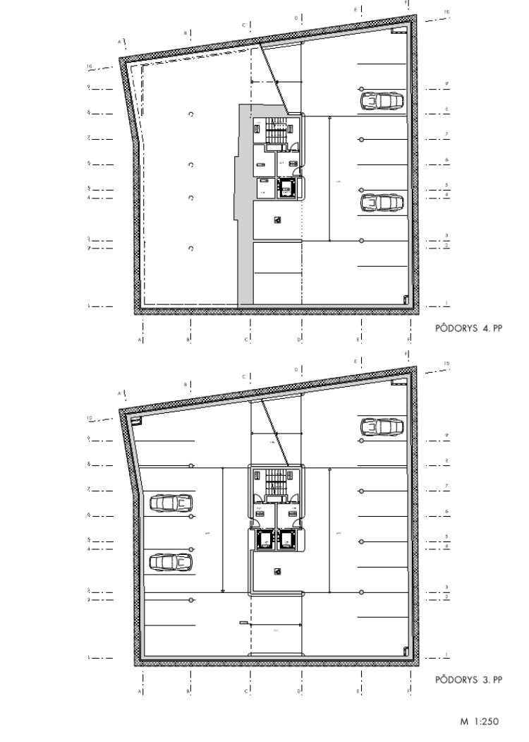
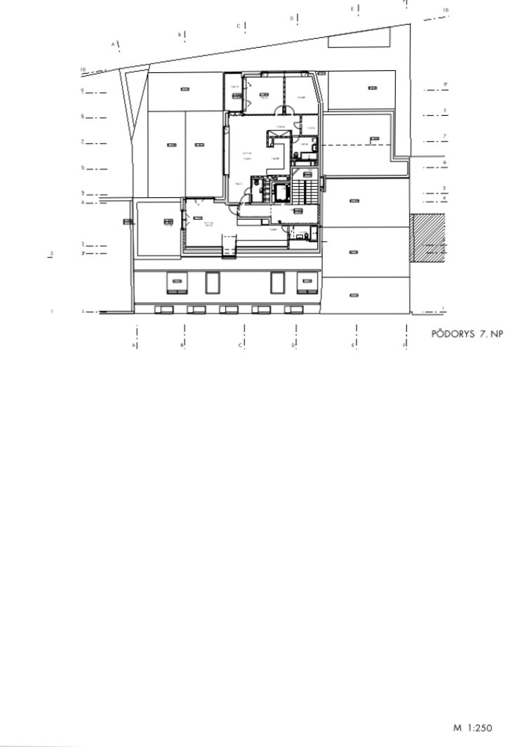
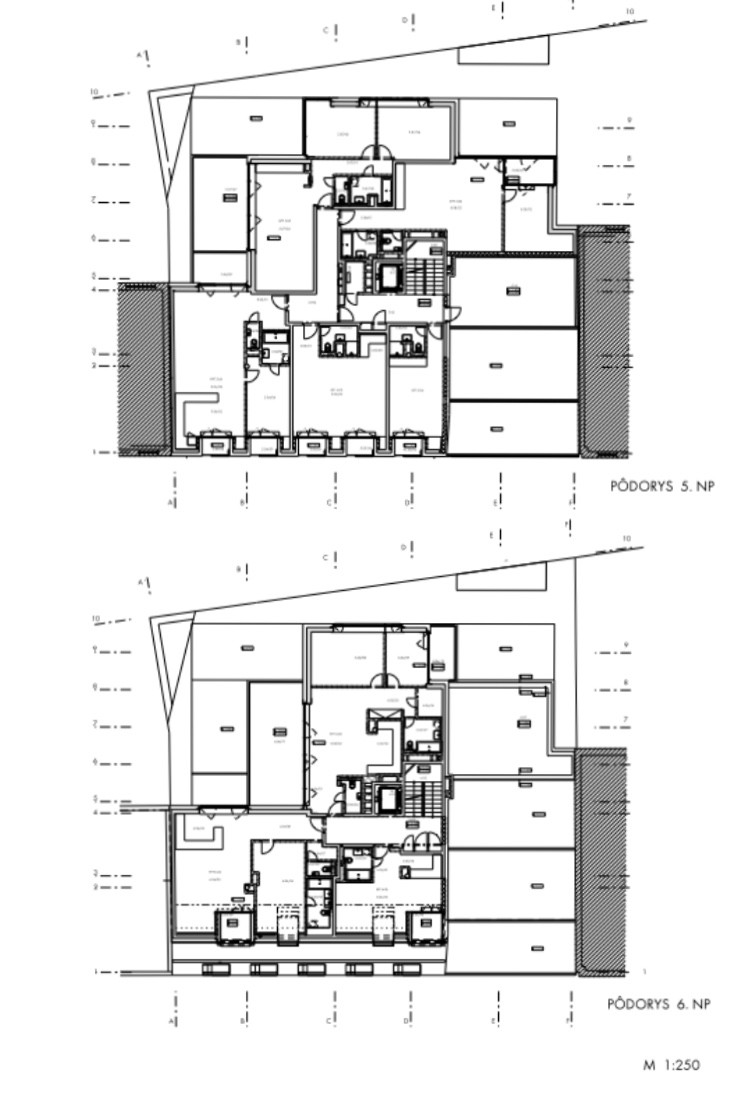
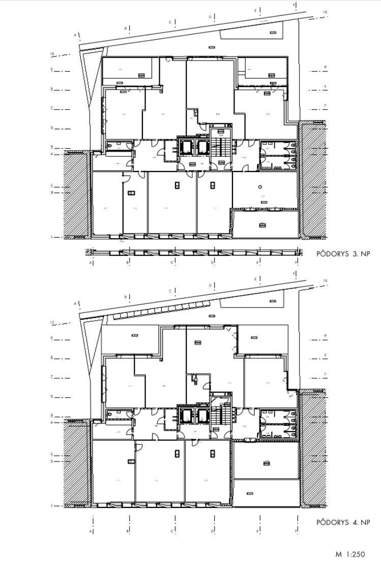
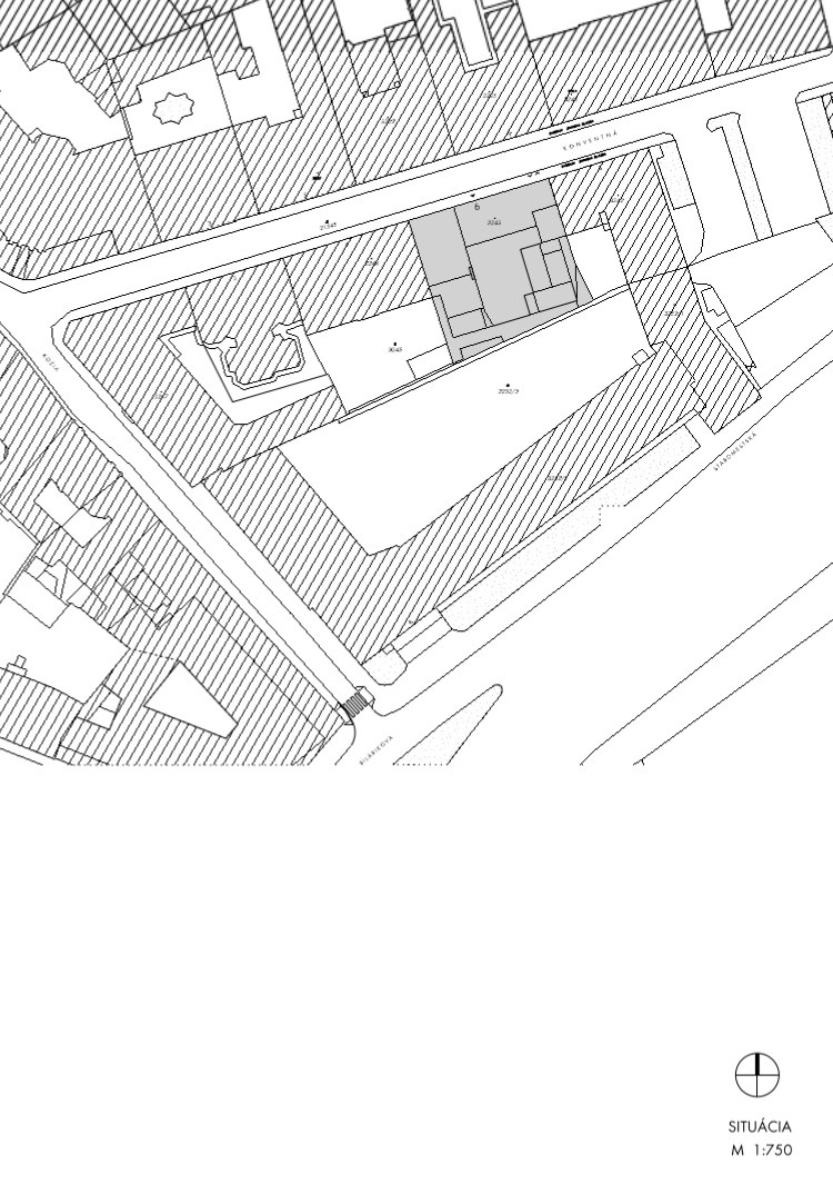
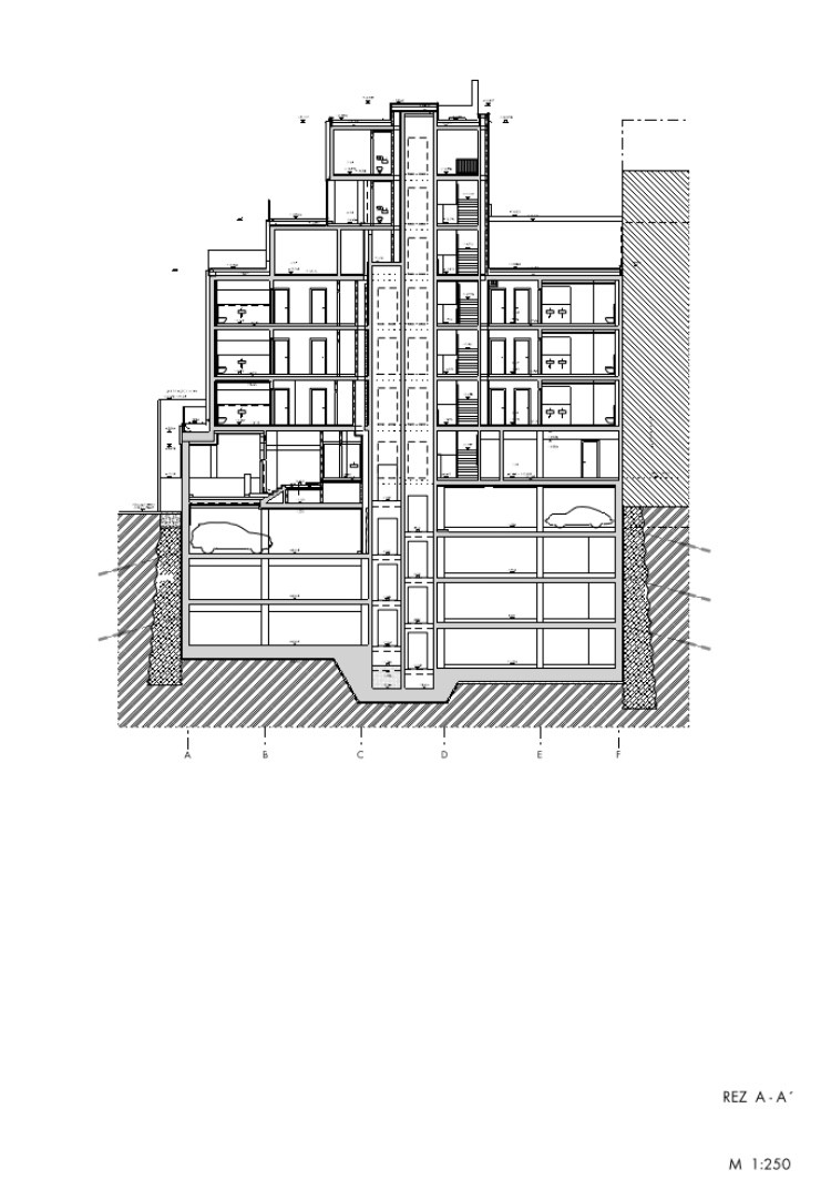
V roce 2011 vypsal soukromý investor architektonickou soutěž na řešení proluky, která se dlouhá léta nacházela v Konventné ulici v centru Bratislavy. Vyzvanou soutěž tehdy vyhrálo bratislavské studio Architekti A B.K.P.Š. Projekt se ale posléze na několik let zastavil a s jeho výstavbou se začalo až v roce 2018. Pojetí fasády polyfunkčního domu směrem do ulice reaguje na plastické ztvárnění okolní zástavby - z jedné strany novostavba navazuje na historizující dům, z druhé pak na racionálně pojatý dům z poválečného období. Podle autorů má být dům "akceptovatelným mediátorem mezi prostředím 19. století a dneškem". Fasáda domu tak získala jemný detail v podobně strukturované omítky, odstupňovaná hmota směrem do vnitrobloku pak vytváří velkorysé terasy a lodžie. Vedle bytů nabízí dům také kanceláře.

Architekti A B.K.P.Š. , 25. 9. 2020

  • Autoři: Martin Kusý, Pavol Paňák, Martin Kusý (ml.)
  • Země: Slovensko
  • Realizace: 2020
  • Město: Bratislava
  • Ulice, číslo: Konventná 6
  • Datum projektu: 2011
  • Realizace: 2020
  • Zastavěná plocha: 725.00m2
  • Plocha pozemku: 725.00m2
  • Poznámka:  
  • <p dir="ltr">Počet podzemných podlaží:</p>:       4
  • <p dir="ltr">Počet nadzemných podlaží:</p>:       7
  • <p dir="ltr">Úžitková plocha:&nbsp;</p>: 4.PP

Mohlo by vás zajímat

Generální partner
Hlavní partneři