
Razantní přestavba proměnila bratislavské kanceláře z 80. let na polyfunkční budovu
Chátrající administrativní dům na východě Bratislavy dostal novou šanci. Monofunkční budova z 80. let prošla celkovou konverzí a nově slouží bydlení, službám i práci. Zásahy byly poměrně razantní, z původní budovy zůstal stát vlastně jen železobetonový skelet.
EARCH.CZ , 7. 9. 2022
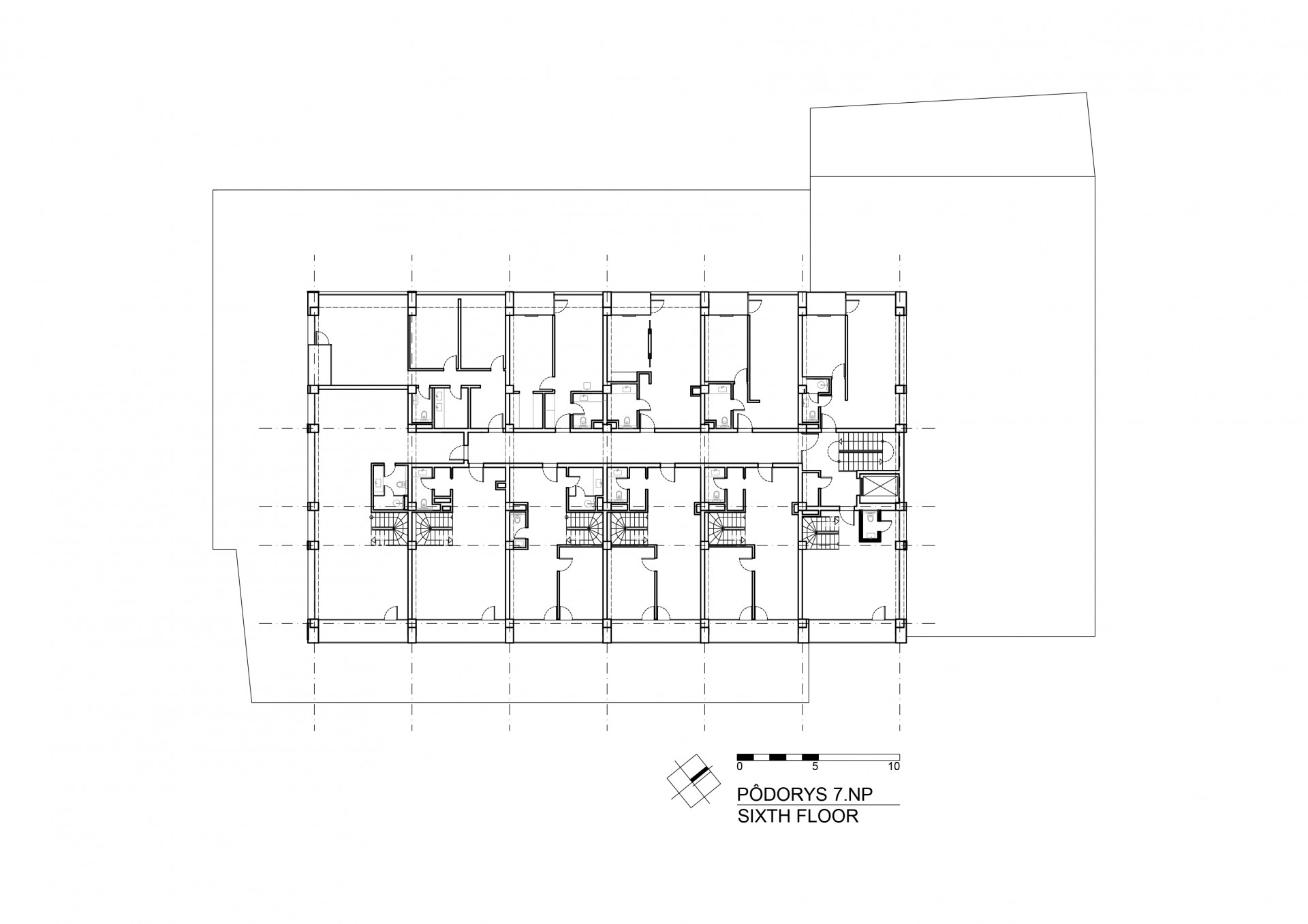
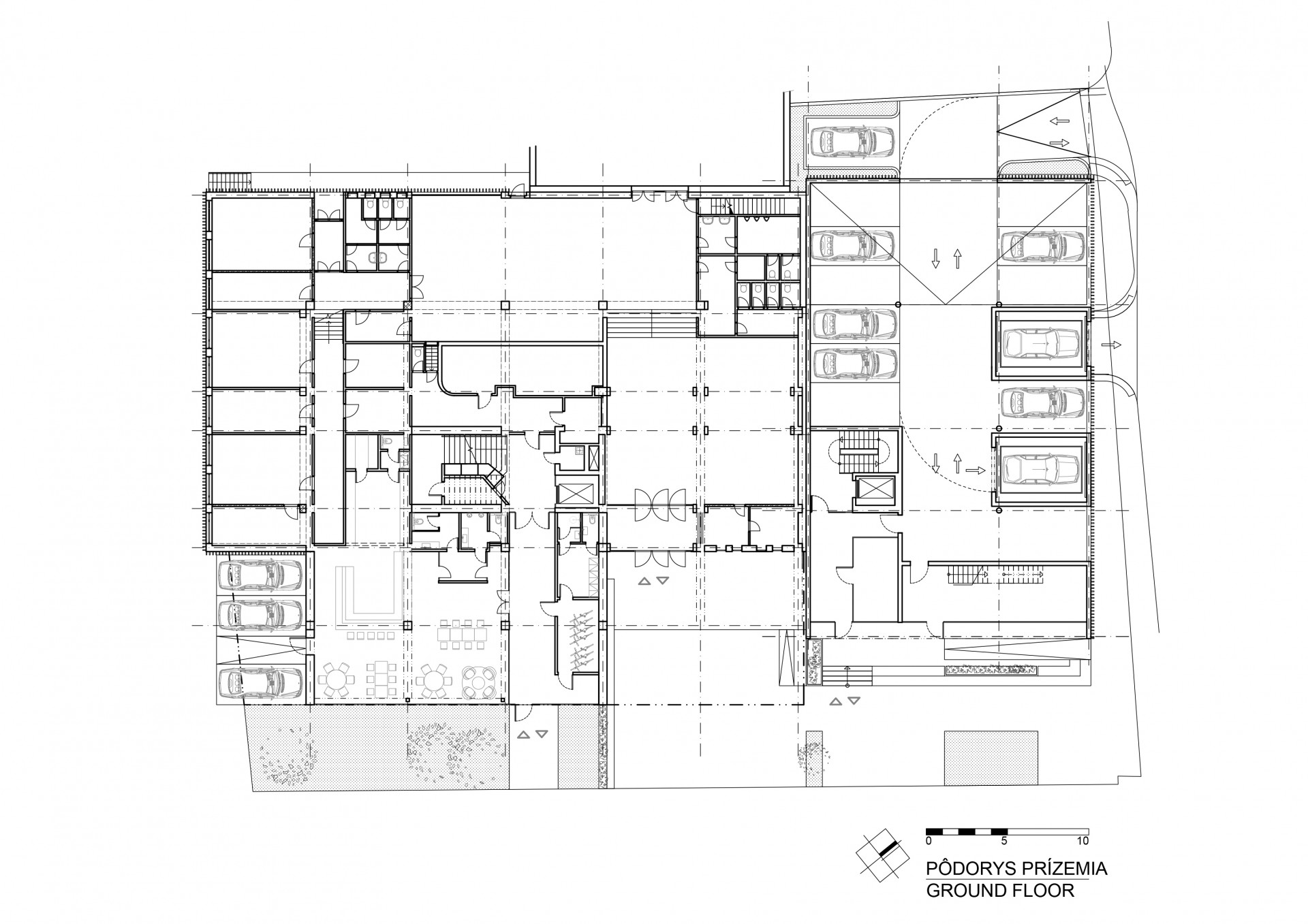
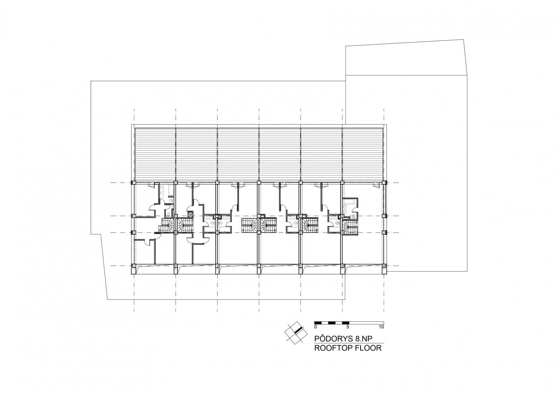
Na osmi podlažích se dnes nachází prostory pro obchody i kanceláře, většinu pater ovšem zaplnily byty. Architekti ze studia Cakov+partners k původní stavbě přidali jednopodlažní nástavbu a také dvě přístavby, které původní budovu ve spodní části obestupují. „Nová hmota domu respektuje původní urbanismus území, ve kterém je osazen. I když je budova o něco zvětšená, zapadá do prostředí citlivě, komunikuje s okolím a nenarušuje jeho původní charakter,“ říkají autoři návrhu konverze. Nové hmoty navíc navazují na původní modulární síť stavby.
Více k tématu
Dům na adrese Vajnorská 21 stojí jako solitér, ze tří stran ho přímo obklopují ulice. Architekti však chtěli do místa vnést i nějaký pestřejší veřejný prostor. „Namísto původního chodníku se vytvořil prostor, ve kterém lidé rádi pobývají – je v něm život,“ vysvětlují. Fungování malé piazzetty podporuje prosklený obchodní parter s místem pro kavárnu a pekárnu. Přízemím polyfunkčního domu se dá zároveň projít do místního kulturního střediska, které se k objektu připojuje ze zadní strany – malé náměstí je tak i jeho předpolím.

Původní pásová okna nahradila rozměrná francouzská, která přirozeně prozrazují rastr původního železobetonového skeletu. „Velká zasklení prosvětlují byty s nadstandardní světlou výškou 2, 9 metru zároveň dávají domu odlehčený vzhled,“ dodávají architekti. Díky dovnitř zapuštěným lodžiím si dům navíc zachoval kultivovaný městský vzhled, jeho fasády nic nezatěžuje ani nezakrývá. Celková koncepce také jasně říká, co se kde nachází. Na obchodní parter nasedá administrativní patro s prosklenými fasádami, za „klasickými“ okny se už nacházejí jen byty. Architekti ze studia Cakov+partners si za konverzi původně kancelářské budovy z 80. let odnesli nominaci na Cenu slovenské komory architektů CEZAAR 2022.

- Autoři: Kalin Cakov, Metodiy Monev, Ján Obušek
- Ateliér: cakov+partners
- Spolupráce: Tomáš Fojtik, Michal Kyselica, Mário Chovan, Diana Michnová
- Plocha pozemku: 4 564 m2
- Zastavěná plocha: 2 284 m2
- Užitná plocha: 6 878m2
- Město: Bratislava
- Projekt: 2016-2018
- Realizace: 2019-2021