Přízemní dům se střešní zahradou a atriem se uzavírá před okolní zástavbou
Na okraji slovenské obce Marianka v podhůří Malých Karpat vyrostl v minulém roce rodinný dům se zelenou pochozí střechou. Od nesourodé zástavby svého okolí se odlišuje nejen svým prostorovým uspořádáním, ale také propojením interiéru s exteriérem a stavebními detaily.
EARCH.CZ , 22. 4. 2021
Téměř neviditelný
Obec Marianka se v posledních letech stává místem, kam unikají obyvatelé Bratislavy za klidným bydlením v blízkosti přírody. Při návrhu přízemního rodinného domu těžil architekt Peter Moravčík z polohy pozemku stranou od ostatní nové zástavby, který se nachází na samém konci slepé ulice.
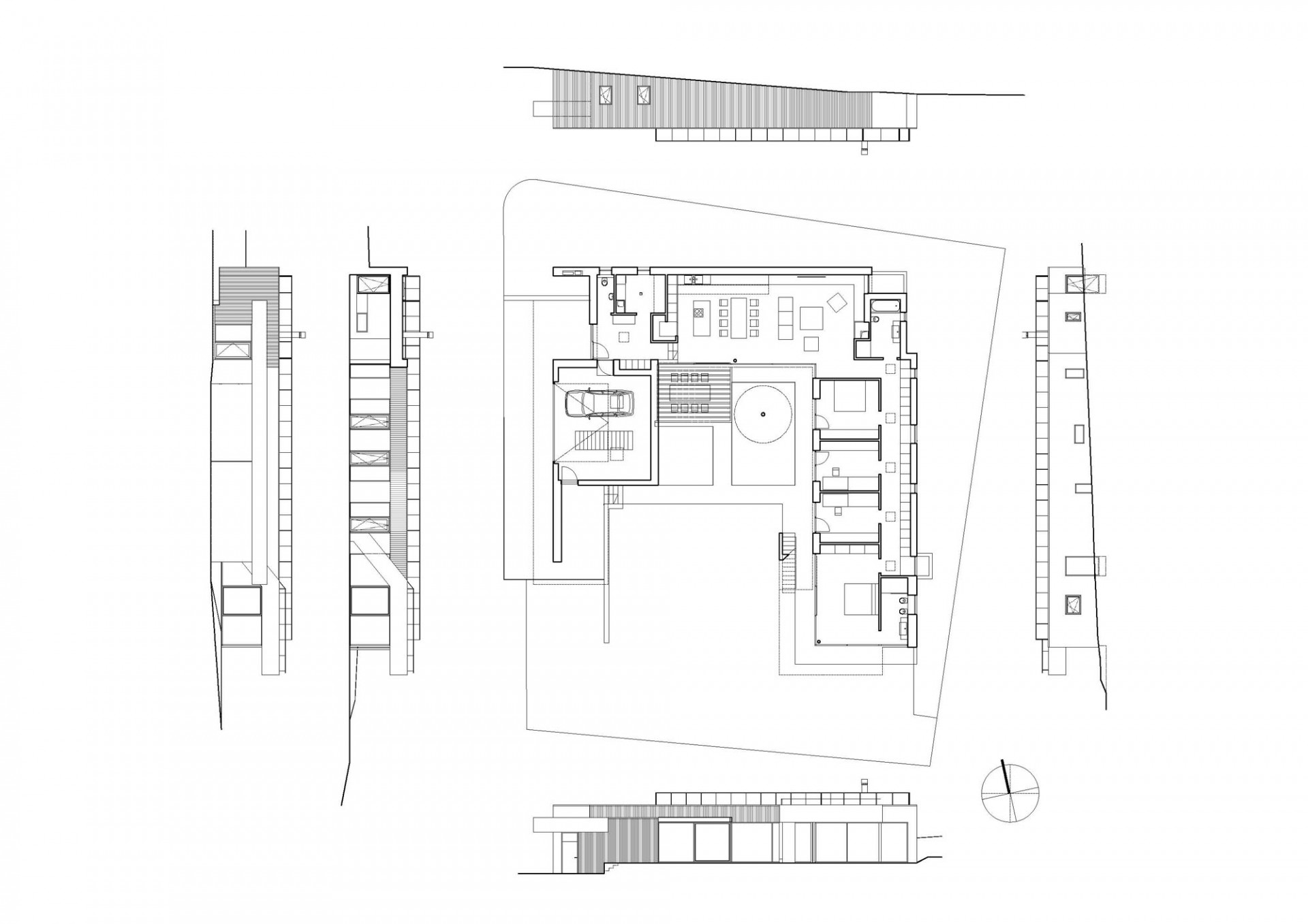
Přirozeně tak vznikla úvaha vytvořit na pozemku o ploše 1000 m2 jednopodlažní atriový dům, který bude svou severní fasádou obrácenou do ulice působit zcela uzavřeným dojmem, ale směrem k jihu se naopak otevře a svým majitelům nabídne nerušený výhled do zeleně v údolí Mariánského potoka. Architekt osadil přízemí hmoty domu do mírného svahu tak, že se dům při pohledu z ulice stává téměř neviditelným.
Více k tématu

Světlo, prostor a výhled
Jednotlivé hmoty domu jsou uspořádané do půdorysného tvaru „U“ kolem prostorného vnějšího atria. Při pobytu v tomto soukromém prostoru člověk nevnímá okolní zástavbu, pouze zeleň rozlehlé navazující zahrady a vzdálených vzrostlých stromů.
„Jednopodlažní dům má prostor rozvinout program bydlení do scénografické sestavy zábavných vizuálních vztahů a prostorových souvislostí,“ popisuje svůj přístup k návrhu domu Peter Moravčík.

Jednotlivé prostory domu jsou řazené v logickém sledu za sebou. Díky velkoplošným okenním výplním v hliníkových rámech Aluprof komunikují všechny místnosti s exteriérem společného atria. Stává se tak součástí interiéru, který je díky tomu také velkoryse prosvětlený. Dostatek přirozeného denního světla na severní straně hlavního obytného prostoru navíc zajišťuje obdélný střešní světlík. Obdobně navrhl architekt světlíky i v přístupové chodbě k pokojům.

Beton a dřevo
Použité materiály přiznal architekt v jejich přirozené podobě. Vedle sebe tak najdeme dřevěnou fasádu ze sibiřského modřínu a surový beton. Tmavý akcent tvoří fasádní obkladové desky z HPL laminátu v odstínu tmavého betonu. V interiéru se uplatňuje pohledový beton na stropě, doplněný dřevem v podobě podlahy z běleného dubu. Hlavní obytný prostor dotváří vestavěný nábytek v kombinaci čistě bílých a dýhovaných hmot rovněž z běleného dubu. Se světlou podlahou pak v místě chodby vedoucí do jednotlivých pokojů kontrastují antracitové stěny.

„Šlo o to vtáhnout černou z fasády také do interiéru. Jsem rád, že se majitelé výrazně tmavých stěn nebáli a dodrželi navržený materiálový koncept až do konce,“ dodává Moravčík. Beton použil architekt i na schodiště vedoucí na zelenou střechu. Vysoká betonová atika plynule přechází do hmoty schodiště a jako stužka obtáčí čelo východního křídla domu. Zelená střecha se má dle představ architekta Moravčíka postupně proměnit v úrodnou zahrádku s množstvím záhonů.




- Autoři: Peter Moravčík
- Spolupráce: Martin Kubica, Eva Hanzelová, Roman Jánoška, Pavol Hayden
- Země: Slovensko
- Město: Marianka
- Datum projektu: 2018
- Realizace: 2020
- Užitná plocha: 350.00m2
- Zastavěná plocha: 350.00m2
- Plocha pozemku: 1 000.00m2
- Poznámka: Foto © Tomáš Manina